Ванная комната (из дневника одной квартиры)
Небольшая предыстория.
Все лето я провела в смотринах всего и вся... (боже, как же сложно подбирать что-то себе...)
Концепция интерьера всей квартиры менялась по ходу увиденного))) ну нет, не все так плохо, но какие-то вещи, действительно, оставили отпечаток.
Так и случилось с моей ванной комнатой. Прогуливаясь между очередными рядами со стендами с плиткой, мы с дочерью увидели ЭТО...

керамогранит был представлен на стенде, как напольное покрытие... через 2 минуты мы поняли, что вот ТО, что было бы нам близко...
И тут я поняла, что я хочу сделать СВОЮ квартиру... СВОЙ мир:) пусть и немного сумасшедший... (потому что ранее я никогда бы не выбрала смесители с кристалами Swarovski)
Но тут Остапа понесло...
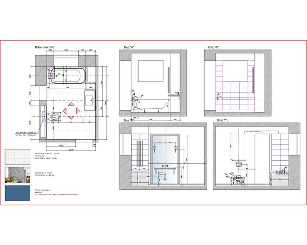
Вот такая история из необходимого оборудования получилась

Ну и развертки по стенам.

Основная часть стен будет выкрашена. Сейчас цвет выбран, но пока в нем не уверена, потому что необходимо сделать несколько выкрасок +- тон и посмотреть по месту, как он выглядит в помещении.
Пока так и уже изменениям не подлежит:)
PS К сожалению, картинки по качеству почему то не очень:( на компе нормально, а тут расплываются... надо с этим поработать...
Но если что, то спрашивайте - отвечу:)