Дан старт нашей новой жизни!
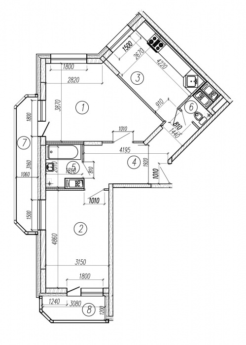
Всем привет! У нас в семье состоялось долгожданное событие - мы начали ремонт! И я решила написать здесь об этом не простом, но увлекательном этапе жизни, чтобы при следующих ремонтах учесть все ошибки) это наш первый опыт, поэтому на идеальный результат я не рассчитываю. Вот исходная планировка нашей квартиры:

Двушка, 65 кв м неправильной формы. Так как жить мы будем втроем (я, муж и наша малышка дочка) нам очень нужна была третья комната. Вот наш окончательный вариант перепланировки:

Никак не могу определиться с детской. Если кто-нибудь хочет помочь или есть какие-нибудь свежие идеи расстановки мебели в детской с удовольствием почитаю!
Сейчас в квартире разводят электрику, когда начнется чистовая отделка напишу следующий пост про стиль и оформление нашей квартиры)

Уже возвели перегородку между гостиной и мини-спальней)

