Планировка попытка №3
Обсудим проект
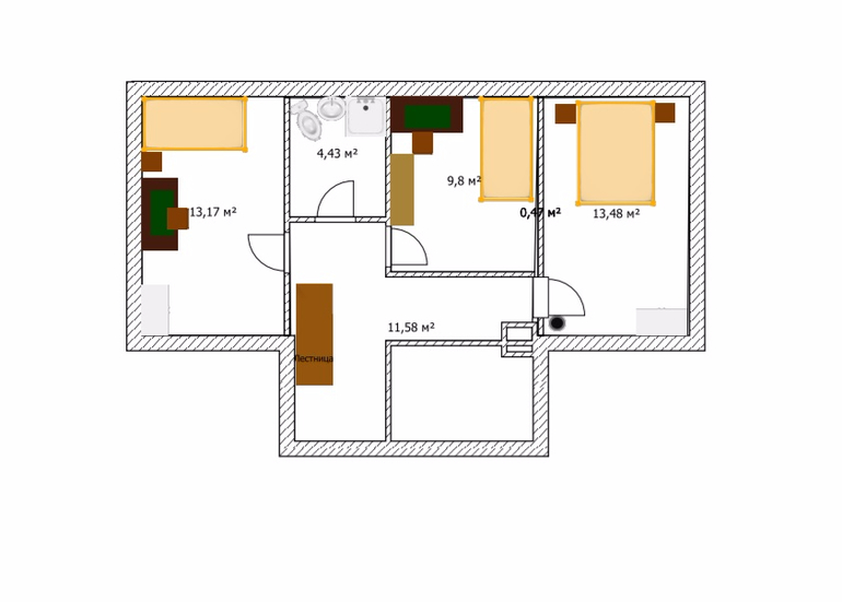
Итак попытка номер три!!! чуть доработали нашу планировку , всех наверное я уже достала)))) но все таки крыльцо с одной стороны решили сделать рубленным и туда перенести прихожую, за счет этого бойлер и кладовая не затрагивают ни кухню ни другую комнату .Девочки что еще не учла глаз замылился.... Немного под корректировала пост ... Вот от такого фасада мы отталкивались правда уже не так выходит с правым крыльцом оно будет остеклено и утеплено служить прихожей . 
Викторина 8-905-766-57-10 www.architectors.net
Заказывайте проект! Работайте с дизайнером! Так решать ничего нельзя, тем более , если вы имеете сомнения.
21.04.2017
Ответить
Светланочка
Уже почти срублен первый этаж) проект уже тоже почти готов так что в другом порядке теперь не получится )
22.04.2017
Ответить
Викторина 8-905-766-57-10 www.architectors.net
Я не говорю сейчас о другом порядке.
Вопросы планировки нужно решать со специалистом.Тем более, что проект вам делают!
Представленные выше файлы ничего общего с проектом не имеют.
Пусть ваш дизайнер ( архитектор )наносит на чертёж ваши пожелания и корректирует их, исходя из строительных норм.
Делайте визуализацию по проблемным местам . Тогда не будет вопросов .
22.04.2017
Ответить
Светланочка
начерченные чертежи делала я) А зачем мне решать вопросы по планировке со специалистом? Проект нам делают рабочий с разбревновкой. По внутренним помещениям мы сами определям где чему быть. кто кроме нас знает как нам удобнее
23.04.2017
Ответить
Евгения
я бы кухню не вдоль окна сделала, а в левый угол угловую, в правый поставить стол. мне кажется логичней будет. и места посередине больше.
3,01 этт тоже кладовочка?
04.04.2017
Ответить
Светланочка
в ванную вход из гостиной, кухню перенести можно до дверей которые в ванну планируются я их почему то удалила) ,3,01 это бойлер в него вход из ванны там стиралочка будет и всякие моющие чистящие , а 3,13 это моя мини гардеробная) вход с прихожей. На веранду вход с гостиной будет в выступе справа дверь отмечена но они все как окна выглядят) Это планируется такая полностью открытая терраса летний вариант с хорошей погодой)
05.04.2017
Ответить
Светланочка
Может быть и маловато, а что в нем хранить кроме того что хранилось в квартире))) инвентарь не в доме храниться а личные вещи уж точно влезут)
05.04.2017
Ответить
Светланочка
ну на крайний случай есть баня с мансардой большой туда что нить уталкаем если уж совсем вещей будет не пройти))) но я конечно не коплю стараюсь отдавать то что не ношу и не использую))) А так сейчас в бане живём местечка хватает единственное что пришлось много вещей в бытовке да в бане хранить
05.04.2017
Ответить