Квартира для Business People ч.2
Всем привет.
Продолжаю вводить вас в курс дела по поводу нынешнего проекта.
В санузле с лестницей мы-таки заменили на полу и самой лестнице плитку на декинг.
Но показывать уже не буду.
Сегодня на повестке дня у нас второй санузел и две спальни.
Сначала небольшое отступление.
Мне поступали вопросы по поводу того, согласую ли я с заказчиками публикацию моих работ с их интерьерами.
Отвечаю. Это делается по умолчанию, так как эти работы является моей интеллектуальной собственностью. То есть, если заказчик оговаривает со мной, что ему бы не хотелось чтобы я показывала работы с его квартирой, то я безусловно сделаю как он хочет. В этом случае, работы просто будут у меня в портфолио, отдельные посты для них я делать не стану.
Ок. Теперь по делу.
Малый санузел:


Спальня № 1:



Спальня №2:


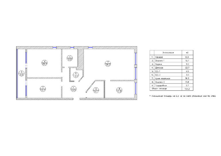
И еще разок, наша планировка:

Продолжаю вводить вас в курс дела по поводу нынешнего проекта.
В санузле с лестницей мы-таки заменили на полу и самой лестнице плитку на декинг.
Но показывать уже не буду.
Сегодня на повестке дня у нас второй санузел и две спальни.
Сначала небольшое отступление.
Мне поступали вопросы по поводу того, согласую ли я с заказчиками публикацию моих работ с их интерьерами.
Отвечаю. Это делается по умолчанию, так как эти работы является моей интеллектуальной собственностью. То есть, если заказчик оговаривает со мной, что ему бы не хотелось чтобы я показывала работы с его квартирой, то я безусловно сделаю как он хочет. В этом случае, работы просто будут у меня в портфолио, отдельные посты для них я делать не стану.
Ок. Теперь по делу.
Малый санузел:


Спальня № 1:



Спальня №2:


И еще разок, наша планировка:

Может возникнуть вопрос, почему работа над этим проектом идет так долго. Все просто. Заказчик не спешит, предпочитая спокойно обдумывать и анализировать каждое решение. Я уважаю такую позицию.
Ну и плюс отпуски, которые у всех участников сего действа выпали на сентябрь)
Мои контакты e-mail: Naamah1987@yandex.ru
Моб.: 8-905-767-13-32
AlinaSemenowa
у меня такой декинг на террасе открытой лежит около десяти лет, у дочери - не меньше двадцати. Ведет себя прекрасно, выглядит как новый, единственное что по инструкции опоры под него надо класть через 50 см, так я бы делала чаще.
http://decking-mall.ru
21.08.2018
Ответить
mamamalisha
все очень красиво получается!цвет текстиля в первой спальне запал в душу)
11.10.2013
Ответить
Анастасия
Скажите пож-та Вы какую-то конкретно кровать на визуализацию ставили или абстрактную? Ищем похожую)
09.10.2013
Ответить
Екатерина
Спальня №1 понравилась, а какая ширина данной спальни? муж просто примерно такую же идею со стелажом напротив кровати предлагал, но боюсь проход узкий будет(((
09.10.2013
Ответить
Анна дизайнер интерьера
Действительно проход остается узкий, так что стеллаж надо на заказ, не больше 20 см делать.
14.10.2013
Ответить
Алла Арт терапевт психолог
нет, а что?? нравится спальня по цветам,оформлению, стеллаж если останется на то же уровне высоты будет тоже не плохо)))
09.10.2013
Ответить
Лана
Я бы внесла небольшую поправочку: Расстояние от потолка до картины и расстояние от потолка до стеллажа я бы сделала равным. Т.е. слеллажную группу сделала бы выше. Это я про спальню.
09.10.2013
Ответить
Анна дизайнер интерьера
Ну кстати да, мне чуток резануло на визе тоже. Тогда стеллаж надо на заказ делать, а то он у нас покупной планируется.
09.10.2013
Ответить
Надежда (пристрой джинсы 27р, для девочек 5лет)
Анна, а картины на каких сайтах посоветуете поискать?
21.05.2014
Ответить
Анна дизайнер интерьера
Можно посмотреть на АртПостерГалереи. Там можно выбрать, холст, раму, способ нанесения.
21.05.2014
Ответить
