Помогите с расстановкой мебели в детской комнате
Интерьерное решение детской комнатыДобрый день!
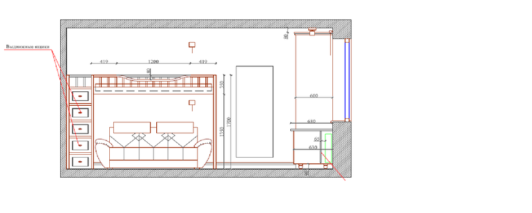
Есть такой вот план по детской и он мне нравится. Но на семейном совете было принято решение увеличить шкаф в детской для хранения вещей, ведь детки растут (мы пока все дошколята) и вещей у них только прибавляется.
Вот план:



ниже наши корректировки: слева шкаф от окна до кровати... с правой стороны под столом выдвижные ящики, сверху стелаж для книг и игрушек.

кровать сбоку предполагалась легкая и открытая, типа такой только белая:

Но теперь если поставим шкаф, не будет этой открытости.
Помогите с выбором... очень хочется, что бы было побольше места для хранения, и что бы не было громоздко.
Очень нужны ваши советы... это первая наша детская. Мебель вся будет заказываться... и нам нужно в ближайшие 2 дня определится и заказать, иначе нам ее не сделают к новому году.
А так хочется заехать в новую квартиру перед новым годом, и что бы комната деток была во всей красе.
Заранее всем спасибо!
либо это
