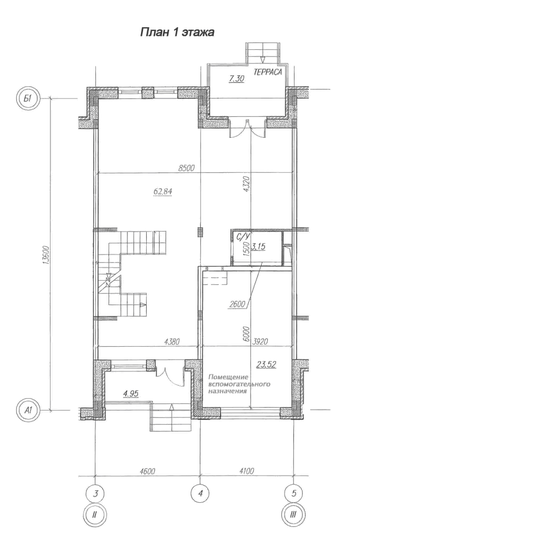
помогите распланировать пространство в таунхаусе
нужно разместить кухню-столовую-гостиную в пространстве до санузла и лестницы. помогите идеями как будет удобнее,а то у меня каша в голове !

Токарева Марина
извиняюсь, что не по существу? а где у вас таунхаус? далеко от Москвы? просто мы тоже ищем, что нибудь бюджетное...
27.11.2011
Ответить
ирина
ээээ....ну я бы не сказала,что таунхаус - бюджетный вариант , хотя конечно смотря с чем сравнивать . цена за кв метр невысокая,но за счет метража выходит раза в два дороже квартиры . наш 17 км от мкад,г. Троицк. если вы хотите побольше площади и подешевле - постройте дом . мы свой построили за 4-5 млн ,290 кв метров,сейчас он готовый стоит 18 млн рублей.
28.11.2011
Ответить
Yuliya (дизайнер интерьера)
26.11.2011
Ответить
дизайн ONLINE (бюджетно)
между кухней и гостинной небольшая перегородка, к которой с одной стороны примыкает стол, а с другой ТВ.
между кухней и гостинной небольшая перегородка, к которой с одной стороны примыкает стол, а с другой ТВ.

26.11.2011
Ответить