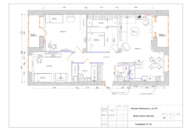
Помогите выбрать планировку из трех



Дизайнер нам сделал три варианта. Общая площадь - 100 с копейками метров. Планировка свободная, только две колонны нельзя трогать. Что выбрать - у девочек разница 4 года - делать им одну комнату или все же две - тогда у нас спальня без окон и совсем маленькая. Санузла одного хватит? Что посоветуете?
Мацнева(Рябашкина) Наталья
Без окна это плохо, у нас сейчас холл без окна, но это понятно, там никто не живет и не могу представить, как бы там жить, проветривать и вообще свет дневной нужен. Если нет вариантов, чтобы каждому по комнате с окном, тогда для девочек одну на двоих надо.
08.12.2013
Ответить
Margo
Насчет проветривания вот тоже не знаю, а свет можно сделат ьза счет стеклянных блоков в верхней части стены между спальней и гостиной.
09.12.2013
Ответить
Мацнева(Рябашкина) Наталья
Конечно это выход, но я бы все комнаты делала с окном.
09.12.2013
Ответить
Eugenia
Все спальни должны быть с окном! Это не обсуждается! Делайте посередине гостиную, как раз хорошо, вы в одной стороне, дети в другой.
08.12.2013
Ответить
Штушакутуша
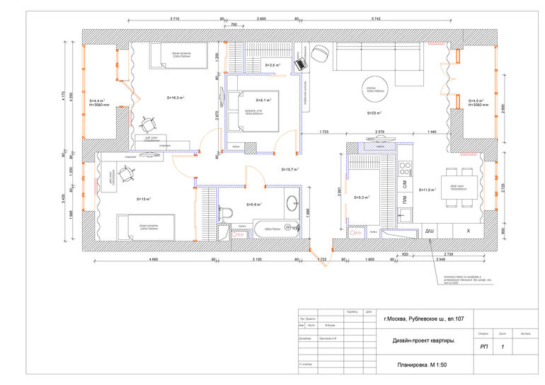
На мой взгляд 3 вариант удачнее, лучше планировка кухни и гостиной, только вместо гардеробной/кладовой в прихожей я бы сделала гостевой с/у. Я думаю основное время вы будете проводить на кухне и гостиной, поэтому окно в спальне лично мне было бы не принципиально
08.12.2013
Ответить
Татьяна Специалист по недвижимости
присоединюсь к мнению, что нужен 4 вариантвам просто необходимо 2 санузла и спальня с окном, а вот в гостиной окно не так важно.я бы порекомендовала оставить кухню и санузлы как на первом варианте, вариант спальни как на втором, а комнаты детей сделать в разных сторонах
08.12.2013
Ответить
Елена
Ольга очень правильно написала, что нужен 4 вариант)))) При такой площади можно уж отдельные комнаты всем сделать и окон хватает. Без окон комнату в вашем случае точно не стала бы делать
08.12.2013
Ответить
Ольга (архитектор)
Добрый день,Вам нужен 4 вариант, где отдельные комнаты для дочек слева, справа Ваша спальня с окном тоже. А кухню соединить с центральной частью, где будет гостиная, одного окна от кухни будет достаточно - это будет общая зона. Нельзя себя лишать дневного света, потом все скажется на здоровье и на внешнем виде.
08.12.2013
Ответить
Margo
Каким образом тогда объединить кухню и гостиную, которая будет в центре, если справа спальня?
08.12.2013
Ответить
Кенга
Первый. Девочкам скоро понадобятся отдельные комнаты. В принципе. в спальне Вы только спать собираетесь? Вы же там не едите, телевизор с утра до вечера не смотрите. Окно не принципиально. Если тяжело без окна- можно и фальш окно сделать
Да и два санузла- бесценно. Особенно через пару лет.
Да и два санузла- бесценно. Особенно через пару лет.
08.12.2013
Ответить
Анна
Однозначно первый, у девчонок пусть будет у каждой своя спальня, и обязательно 2 санузла. Хотя лет до 10 , на мой взгляд, девочкам лучше жить вместе, а уж потом расселить их по комнатам. Пока можно в одной сделать детскую спальню, а в другой кабинет
08.12.2013
Ответить
Ирина
Я бы сделала 2 комнаты дочкам, себе спальню без окон, и кухню-гостинную:), получается 1ый вариант, так?:) А вообще странно : 100 метров, а на семью из 4х человек поделить тяжко...( Либо вариант делать кухню без окна, но тогда спальня вам с окном и кушать в гостиной:)
08.12.2013
Ответить
