[Ремонт начался!]Прямой репортаж с места ремонта!
Добрый день, дамы!
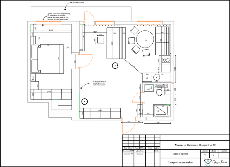
А мы снова делимся с Вами проектом объекта, на котором уже приступили к ремонту!
Проект был разработан для холостяка. Квартира небольшая, но мы уместили в ней все, что требовалось, даже немного больше :)

Сделано в VMR Design Studio







Мы остановились на варианте с кирпичом теплого цвета :)
На сегодняшний день объект выглядит вот так:






Мы будем пополнять фотографии и поднимать тему в сообществе, что бы Вы могли наблюдать за реализацией :)
www.vmrstudio.com Мы всегда рядом!
Lika
Подскажите, пожалуйста, что это за интересные длинные люстры со множеством светильников?
31.03.2015
Ответить
Мария (www. vmrstudio.com )
Доброй ночи, Лера! Это одиночные двойные светильники, которые монтируются рядом :)__www.vmrstudio.com
05.04.2015
Ответить
Лана
Только что купили такую квартиру под сдачу))) вчера ездили и ломали голову что там можно сделать))) спальню прорисовала для себя точно также и санузел тоже. Но мы решили сделать гардеробную за счет ниши в проходной комнате, потому как не знаем какие будут потребности у будущих арендаторов квартиры)И пару вопросов по проекту: Куда вы убрали полотенце сушитесь в ванной? разве в домах этой серии не газ на кухне???
14.02.2015
Ответить
Мария (www. vmrstudio.com )
Добрый день, Лана!в ванной при сносе старой коробки выяснилось, что у несущей стены (граничит которая с общим коридором) ниша. В эту нишу будет установлен полотенцесушительВ домах этой серии газ
16.02.2015
Ответить
Лана
Спасибо за ответ))) надо поискать такую же нишу, а вдруг найдется) Жаль, что такую перепланировку не узаконить никогда) Удачи вам!)
16.02.2015
Ответить
Мария (www. vmrstudio.com )
Есть примочки как можно узаконить) И мы это уже сделали)
16.02.2015
Ответить
Лана
Подскажите пожалуйста, как это возможно))) не первую квартиру покупаем, в том числе и с газом, но НИКОГДА нам не разрешали такое узаконить)
16.02.2015
Ответить
Мария (www. vmrstudio.com )
Ставите стенку из ГВЛ и дешевую дверь, придет проверка все подтвердит, потом аккуратно демонтируете)
15.03.2015
Ответить