Кухня-гостиная! Нужен совет!
Интерьерное решение кухниДевочки, имеем квартиру 3 ком. и 3-е детей. Очень хочется отдельную спальню, детей в одну комнату нельзя, т.к. старшему уже 11 лет, а мелким 3 года и 2 года. Хотим им отдать большую комнату под детскую, и объединить кухню с гостевым с/у и кладовкой. Площадь небольшая получится, да еще и стояк все портит. Подскажите стоит ли, и какие вообще варианты расставить мебель, чтобы и кухня была, и стол большой, и диван с телеком????
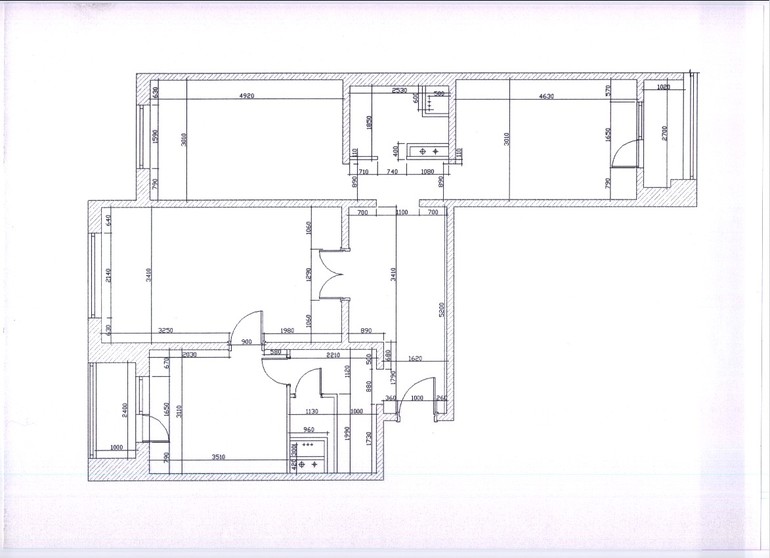
Это фото уже объединенной кухни. Ниже план квартиры полностью.

Катерина
У меня муж все мечтал о уголке, я как-то не люблю их, совок какой-то. Хотя сейчас смотрю вполне приличные стали делать. Вообще всю мазу портит стояк, ладно если бы он был по середине, а то ни туда, ни сюда ((( Это Dreshka приезжала недавно и внесла смуту в мое сознание. Я хотела перегородку делать в большой комнате, а она вот идею подкинула )))
15.02.2015
Ответить
Chertyenok
Уголок уголку рознь — факт! :) это предубеждение, у всех они свои :)) но для такой ситуации — вариант! Сидеть и есть с дивана — как Пятачок в гостях у Кролика — одни глаза над столом, если ниже, то стулья хер найдешь. Хотя сейчас есть столы на газпатроне или как там, которые встают плавно.
15.02.2015
Ответить
Chertyenok
А вообще в таких планировках делают еще так: где кухня — спальня, а в большой комнате гостиная-кухня.
15.02.2015
Ответить
Катерина
Это не согласуешь никогда. Мокрую зону нельзя над жилой комнатой делать. Да и вроде смысл чтобы детям отдать большую комнату.
15.02.2015
Ответить
Chertyenok
Ты продавать собралась? Надо будет, шланги обратно перетащишь. В кухне ТВОЯ спальня, а те 2 детям :)
15.02.2015
Ответить
Катерина
Ага, делов то шланги обратно перетащить ))) так они маленькие, весь смысл чтобы большую комнату им, те по 15 м, большая 20.
15.02.2015
Ответить
Tamika
где вход в квартиру, справа стена длиной 5 метров, а от угла коридора 3,5 метра, по ней можно поставить диван, напротив распашные двери в комнату, которая рядом с кухней, эти двери перенести ближе к углу, на их место повесить телевизор. Можно даже стену перенести вглубь комнаты, комната уменьшится, а хол — "проходная гостиная" увеличится
14.02.2015
Ответить
Tamika
Тогда стены не двигаем)))) на схеме двери в комнату, если я правильно разглядела, 1,2 метра, можно вместо них стандартную дверь поставить, она где-то 0.9 м, тогда в одном их углов простенок получается 1,3 метра — телевизор уместится. Расстояние между стенами в холле (между диваном и ТВ) 1,6 + 0.9 = 2,5 м. ТВ не большой можно повесить, нормально смотреть будет. А с другой стороны от двери можно будет стеллаж для книг или безделушек поставить..... А кухню можно просто увеличить и оставить только кухней, семья большая, место должно быть много)))))
14.02.2015
Ответить
Катерина
там на самом деле не так много места, в этом холле. А если гости... Не знаю даже... Там сейчас у нас шкаф стоит 4 метра, холл вообще кажется маленьким
14.02.2015
Ответить
Tamika
а можно несущую стену (где распашные двери в комнату) сделать широкой аркой, а комнату отделить стеной через метр-полтора от арки, дверь сделать ближе к углу, по центру ТВ... получится квадратная комната с аркой посередине))))Если гостиную совмещать с кухней, там поместится средних размеров диван и не большой стол, ширина кухни — 3 метра.......если кухня была шире, можно было стол перпендикулярно стене ставить. А с шириной 3 метра, чтобы много людей за стол усадить, его надо вдоль стены ставить
14.02.2015
Ответить
Natalia
А здорово вы придумали! Я в доме той же серии живу, ни у кого из соседей такой перепланировки не видела.Ставьте кухню по прямой, там где 3510, если мало, то с другой стороны стояка можно холодильник поставить или еще шкафчики. Напротив стол и диван. А телек на стояк повесить.
14.02.2015
Ответить
Катерина
а Вы где живете? Мы в Химках, это ПИКовские дома. Это не я придумала, а моя подруга. Я хотела большую комнату делить на спальню и гостиную. Я тоже сначала хотела диван напротив стояка, но он прям на ходу стоять будет.
14.02.2015
Ответить
Natalia
В Москве. У нас тоже ПИКовские. У Вас по расстановке мебели особого выбора нет. Вдоль окна ни диван, ни кухню не поставить, там на балкон выход. Если ставить диван по стене 3510, а кухню напротив, то все коммуникации тянуть до стояка надо. И диван будет смотреть на кухню, а стол тогда куда..Посмотрите диван без подлокотников с закругленными боковинками.
14.02.2015
Ответить