Однокомнатная квартира для троих
Авторские проекты дизайнеров.(Посты не по теме будут удаляться!)День добрый, дорогие мамочки и те, кто планирует ими стать!
Мы очень давно не публиковали на ББ наши проекты и не проводили наш уютный "онлайн- вечер консультаций". Сегодня я расскажу Вам о нашем новом проекте, а завтра стартует Вечер консультаций! :)
Дизайн-проект маленькой однокомнатной квартиры для молодой семейной пары с мальчиком 2х лет.
Заказчики хотели получить на выходе зонирование комнаты на взрослую и детскую спальни, получить рабочую зону и возможность принимать гостей у себя дома. Интерьер хотели нейтральный но интересный.
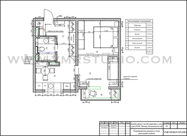
Наша команда разработала для ребят более 6ти вариантов планировочного решения и расстановки мебели, из соображений этикета мы не можем показать Вам все, но вот финальным планом с радостью поделимся.

Много картинок под катом :)
Мы объединили балкон к жилой комнате (будьте внимательны-это законно далеко не во всех домах), перенесли дверной проем в комнату и немного увеличили санузел за счет коридора ,что законно.

До перепланировки квартира выглядела так:

В качестве отделки санузла было предложено несколько вариантов. Хоть санузел и небольшой, однако нам удалость уместить тут достаточно места под хранение, а так же стиральную машину. Душ довольно просторный, его размер составил 140х75:






Заказчики остановились на последнем варианте, отсюда еще несколько ракурсов санузла:


Так же было несколько вариантов спальни:




Заказчик остановился на последнем варианте. Тут латунь в качестве детального акцента, пудровый фиолетовый цвет и зеркала, расширяющие небольшую зону спальни. Напротив кровати шкаф от стены до раздвижных перегородок.






Да, детскую мы делали на возраст от 5 лет. Было предложено два варианта кровати. В этой зоне есть места под хранения игрушек/книг и прочего, а на присоединенном балконе встроенный шкаф для детских вещей+игрушек и рабочее место.

А вот и коридор. Тут встроенные шкафы + шкаф во всю стену. Узкая консоль для ключей и прочей мелочи, которая всегда находится в карманах и сумках.

позади нас входная дверь, то есть это вид от коридора в сторону кухни.

Было несколько вариантов и кухни, но давайте рассмотрим только два наиболее схожих:


Заказчик предпочел последний вариант :)
В итоге мы получили квартиру в светлых тонах с фиолетовыми вставками и латунью, много места под хранение, а так же разделенную на две зоны комнату. Все стены под покраску, на полу ламинат теплого оттенка который строители будут укладывать под 45 градусов- это хороший прием для небольших площадей чтобы визуально немного их увеличить.
На кухне и в прихожей мы использовали зеркала так же для визуального расширения пространства :).
Рада была поделиться с Вами вот такой однокомнатной квартиры, надеюсь что кто планирует ремонт что-нибудь сможет подчерпнуть для себя из данного поста!
С радостью отвечу на Ваши вопросы!
_____________
С Уважением, VMR DESIGN STUDIO
СохранитьСохранить