Услуги архитектора-дизайнера
Услуги в БелгородеПривет, я мама и архитектор!
Архитектор-дизайнер Наталья Константинова :)
Занимаюсь индивидуальным проектированием и предлагаю свои услуги:
Проектирование зданий и сооружений (альбомы эскизных проектов).
Проекты домов и коттеджей - эскизные и рабочие чертежи с 3D-видами, авторский надзор, примерная смета материалов и строительства. Плюс - рекомендую хорошую рабочую бригаду для возведения коробки дома и кровли под ключ за приемлемые цены!
Дизайн интерьеров квартир и домов под ключ - эскизы и рабочие чертежи с 3D-изображениями интерьеров, авторский надзор, подбор оборудования и мебели, подбор материалов, освещения, подбор предметов интерьера и декора.
Ландшафтный дизайн - эскизы и рабочие чертежи, подбор растительности.
Проектирование малых архитектурных форм.
Кроме того творческий коллектив осуществляет художественные работы и авторский декор любых помещений - роспись стен, скульптура любых размеров и из любых материалов, рельефы и барельефы, индивидуальное декорирование дома авторскими картинами и предметами интерьера, индивидуальное декорирование стен и потолков гипсокартоном, подвесные потолки и декоративные элементы интерьера любых конфигураций - фантазия и исполнение богатое!
Мой телефон: 8-920-201-79-45
Возможна работа дистанционно! Высылаю готовые распечатанные альбомы проектов по почте или с курьером, либо в электронном виде готовые к печати в любой типографии :)
Ниже несколько моих проектов. Пока размещаю то что нашла из проектов за последние 4 года ;) Предупреждаю для тех у кого узкий трафик - изображений много!!!
Эскизы дизайна интерьеров зала детского кафе:


Проект коттеджа на 500 м2, по индивидуальному заказу. Эскизные чертежи и 3-D виды:
План 1-го этажа и виды




Проект индивидуального жилого дома. Эскизные 3D виды:

Дизайн интерьера квартиры на 120 м2 в ЖК "Владимирский" с устройством зимних садов в лоджиях:
План квартиры с планировкой помещений:

3D-dиды помещений:


















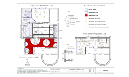
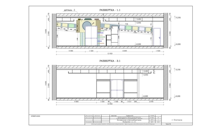
Проект планировки и дизайн интерьеров фотомагазина со студией и рабочими офисами (с примерами некоторых рабочих чертежей). В соавторстве с Дементьевым Сергеем.
План планировки помещений:

План потолков:

Развертки (1 лист):

Фотографии готовых интерьеров фотомагазина и фотостудии:











Работы творческой группы в интерьерах индивидуального коттеджа скульптора Дементьева Сергея и Художника Булавина Олега:
























К сожалению фотографий на стадии сдачи готовых интерьеров пока нет, а еще в декорирование вмешалась хозяйка дома, потому многое в конце концов (например люстры и другие светильники, шторы) оказалось не в тему - доверяйте дизайнерам! ;)
Гарантирую творческий и добросовестный подход к работе от творческой группы дизайнеров и художников с любовью к своему делу! От проекта до исполнения и сдачи!