Покритикуйте проекты
Обсудим проектПодошли к самому ответственному делу - выбору проекта будущего дома, потратили несколько месяцев, пересмотрели тысячи вариантов, и выбрали то из чего нужно выбрать))
Хотелось бы Ваших мнений и комментариев, кто что увидел в этих вариантах, как плохого, так и хорошего))
1. Для нас внешне на 5+ дом. . 150м2. Есть терраса, но минус, что без навеса

Огромная гостиная, 4 комнаты на 1м этаже - что плюс - не надо по лестнице носится. Тут все супер. Кроме отсутствия камина.. Но его можно сделать, не критично
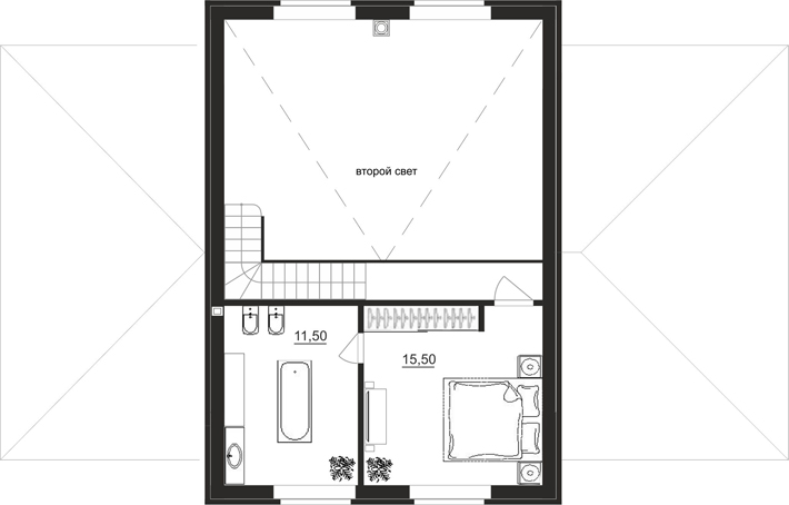
Второй этаж - второй свет - как бэ красиво, как бэ впечатляет.. но моя практичность не понимает этого - столько полезной площади пропадает зря))

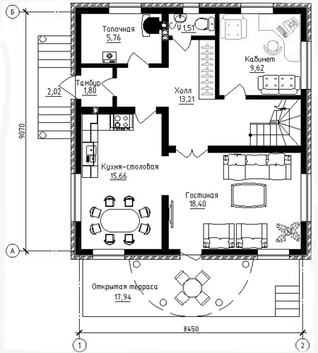
2. Внешне тоже на твердую пятерку. Площадь 173м2. Терраса не очень большая, но нам исключительно для 3-5 человек, чайку попить на улице, хватит

На первом этаже 2 комнаты - что плюс, нам на 3х точно на первое время хватит. Большая гостиная


3. Очень понравился внешне. И в-принципе всё. Площадь 160м2. Планировка самая обычная, на 1м этаже всего 1 комната. Терраса без крыши, что минус.


Ну и второй этаж тоже самый обычный - 3 комнаты

4. Ну и самый практичный вариант остался - дом всего 130м2.
Внешне на 4ку, но планировка - все самое необходимое, ничего лишнего. самый, я думаю, недорогой в строительстве будет домик. Терраса с навесом.



но это мой заклин — я знаю)))) Да и одноэтажный в плане строительства не практично. Крыша очень дорого обходится... А крыше всё равно 1 этаж или 2 
у нас двое родственников строились... Первые сделали, не обдумав, спиралевидную лестницу. Красиво, мало места занимает... зато ни одну мебель на второй этаж не поднимешь
Крупногабаритную я имею ввиду, типа диванов, кроватей.... А вторые разместили её так неудобно...
