Первые шаги. Планировка для обсуждения.
Обсудим проектВот пришли первые планировки. Ниже фото и экспликации. Принимаю советы по доработке!
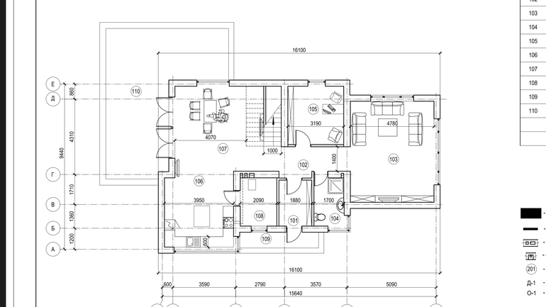
1 этаж:

Экспликация :

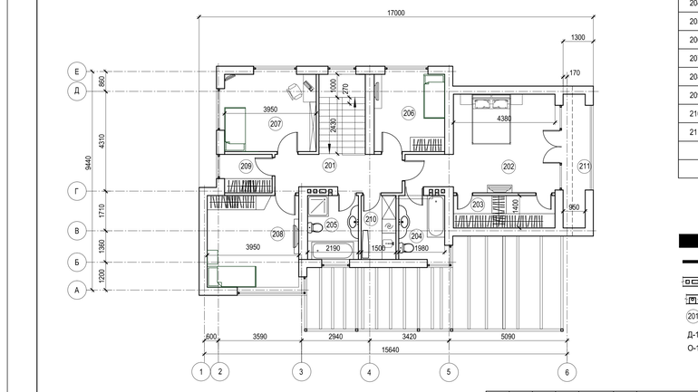
2 этаж:

Экспликация:

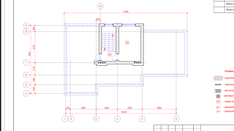
Тех. мансарда с выходом на эксплуатируемую кровлю и размещением оборудования, кладовкой:

Экспликация:

И переделки, которые хотим внести:

+ вход в котельную и из тамбура тоже будет!
Что еще нужно сделать? Спасибо заранее!
Nastya Starkova
Отличная планировка. Все очень рационально. Меня смущает балкон и лестница в столовой. Но по балкону я видела ваш опрос и поняла, что для вас принципиально его наличие :) (у сестры на даче он были открытый и закрытый и никогда не использовался, и никто из наших соседей не пользуется своими балконами, но с удивлением обнаружила, что бывает и иначе. А по лестнице в столовой шум будет "подниматься" на второй этаж, я сталкивалась с вариантом, когда лестница была в гостиной и на втором этаже шум снизу был отлично слышен. Телевизор на схеме есть, но много ли в столовой будут проводить время и смотреть его?
01.12.2015
Ответить
akvitty
Спасибо большое за отзыв! Да, балкон вызвал много сомнений, но решили рискнуть. Если что, предусмотрели возможность ликвидации его в пользу спальни.
Насчет летницы, думаю, Вы правы. Еще раз подумаем, спасибо. Телевизор в столовой для фона во время готовки больше. Ну и иногда за едой посмотреть (я не поклонница, но сама, бывает, смотрю), особенно в НГ куранты послушать))) Предусмотрим там все выходы, а уж ставить технику будем по мере надобности, думаю))
01.12.2015
Ответить
Татьяна
Добрый день! Ну,наконец-то я дождалась)))Всё здорово,просчитано с умом! И балкон предусмотрели - молодцы!!! Если вы - кофеманы,то балкочик на природе самое то))) Мне кажется - не пожалеете)) тьфу,тьфу на вас,чтобы у вас все получилось))
25.11.2015
Ответить
Марина
Не очень понятно потерянное пространство под лестницей и кишкообразный балкон наивтором этаже. Лучше увеличить на 1,5 метра балкон за счёт консольного выноса превратив его в террасу.
24.11.2015
Ответить
akvitty
Балкон для покурить с кофе и красоты. Вы правы, он узковат! К сожалению, увеличить дом в длину нельзя ни на см, только в ширину. Можно увеличить глубину балкона за счет спальни, конечно. Но если потом будем присоединять, вообще странно и глупо получится...В общем, не знаю, как лучше. Пускай остается 1,3 м в глубину, толпиться вряд ли будем.
Под лестницей место ни разу не потеряно, все использовано по проекту, вроде. Под нижним пролетом гардероб для гостевой спальни на первом этаже. А под верхним - место для установки телевизора в столовой, возможно, еще буфета встроенного, этот пролет присоединен к столовой, лестница будет легкая и красивая, добавит пространства. Это из дизайн-проекта, чтобы стал понятен внешний вид лестницы приблизительный:
24.11.2015
Ответить
Марина
Консольный вынос хотя бы на 1 метр уже сделает балкон удобным, а дом интересней.
24.11.2015
Ответить
akvitty
Снаружи он как раз гармоничен с небольшим выносом. Позволить себе удлиннение дома не можем из-за конфигурации участка, а не из-за собственных тараканов))) Просто залезем на зону запрета строительства. Это чревато.
24.11.2015
Ответить
Марина
Вообще официально прописано в документах расстояние до стены, а консоль - это как договоритесь с соседями. Точно не помню, но ро-моему про консоль ничего не пишут.
24.11.2015
Ответить
akvitty
С соседкой экспериментировать не будем, есть на то причины. Тем более наша консоль будет у нее с южной стороны, мы будем ее излишне затенять - это не дело. Заодно окончательно превратим северную гостиную в бункер. А с другой стороны у нас часть участка находится в зоне отчуждения лэп 6 кВ, закопанного под дорогой по краю участка. Там ничего нельзя строить. И яблоня, которую хочется сохранить с той стороны. Мы наоборот ужимали дом на 70 см, чтобы все нормально встало.
Нужны ли такие трудности и усложнение/удорожание конструкции для увеличения площади родительского балкона? Что там делать? И сколько потебуется усилий, чтобы утеплить эту консоль с перспективой дальнейшего присоединения к спальне? Вопросов такое решение вызывает массу.
24.11.2015
Ответить
Марина
Тогда, может, не делать его вовсе? Зачем ещё одна головная боль? Есть же крыша-терраса. Кстати, нашла у нас в закромах, проект современного дома. Было дело...когда-то ..
24.11.2015
Ответить
akvitty
Я здесь даже тему создавала, столько сомнений было. Но кроме этой лоджии нет места с крышей, куда можно выйти в плохую погоду. И где можно спрятаться от детей на свежем воздухе. Поэтому решили делать с возможностью присоединения. Ведь не сделаем - потом поедом себя есть будем))
Красивый получился дом? Построили его?
24.11.2015
Ответить
Марина
Помню, но от детей не спрячешься )) Балкон на самом деле у нас он есть, но дело опасное. Я за своих очень боюсь всегда. Хотя он тоже при нашей спальни, но дети ходят везде и туда порой одни выходят. А что им на ум придет не угадаешь. Скручиваю ручку у двери, чтобы не заходили. В общем, если бы этого балкона не было жизнь в том доме была спокойней.
А проектный домик не построили, т.к. землю, где он должен был быть отняли для олимпийской деревни сочинской.
24.11.2015
Ответить
akvitty
На двери балконной можно поставить замочек, чтобы ручку не снимать... Ну это так, лирика)) Вообще, надеюсь, что если дверь в родительский блок закрыть, дети ее не выломают)))
Проект мне скорее напоминает некую современную классику - сейчас такой стиль очень популярен! И позволяет менять интерьеры, так как сочетается сразу с несколькими стилями. Жаль, что не построили.
24.11.2015
Ответить
Марина
Стоит и замок тоже, но знаете, один закрыл, другой забыл, третий еще там что-то. Дверь в нашу комнату не закрываем от детей. Все же мне пока совесть не позволяет.
Насчет дома, то построим когда-нибудь. Просто пока не спрашивали проекты в подобном стиле.
24.11.2015
Ответить
Марина
Этот дом спроектирован для курортного проекта. Не корректно опубликовывать всю информацию, поэтому покажу один 1 этажа, для понятия конфигурации дома. Площадь дома 600 кв.м.
28.11.2015
Ответить
Елена
Спасибо.
Я ищу планировки по сторонам света. Каково Ваше мнение о Васту проектировании?
29.11.2015
Ответить
Марина
Витрувий считал, что дом нужно поворачивать на 45 градусов к сторонам света и в нем всегда будет солнце. А если про сокральную архитектуру говорить, то тут главное, чтобы архитектор был очень доволен и пребывал в нирване ;-) тогда архитектор вам спроектирует, так, как должно быть. Для каждого дома все индивидуально, все зависит от энергетики участка. Есть европейские аналоги восточных хреней - геоэниология например.
29.11.2015
Ответить
Nata
Ну кофе Вы там точно пить не будете, а вот с гидроизоляцией балкона намучаетесь.
Самая не нужная вещь в доме.... ну после джакузи и камина.
24.11.2015
Ответить
Nata
Как минимум потому, что за кофе надо сначала спуститься на первый этаж....
Опыт показывает, что балконы ни кто не использует... сначала конечно пару раз по выходят..... чаще всего их потом стеклят и получается непонятное помещение которое тоже не используется.
24.11.2015
Ответить
akvitty
А розетку под кофемашину в комнате делать некошерно?))
Если понадобится, данная лоджия легко объединяется со спальней. Просто станет спальня больше. Но как показали обсуждения, далеко не у всех балконы простаивают без толку))
24.11.2015
Ответить
Бэллочка
Хотела написать про санузел в родительской спальне, не разглядела, что он есть)))
Выход из гостиной нужен.
23.11.2015
Ответить