Коллективный разум! С чего начать?
Баня, гаражЕсть небольшой участок вытянутой формы, примерно 12*53 метров.
хотим начать строится с дальнего края от дороги, в глубине...там соседей нет, только справа и слева. В соседнем СНТ родительская дача, там сейчас и отдыхаем все, т.е. где жить место есть. В связи с чем вопрос: что лучше построить сначала баню или дом?
стоить надо начинать с дальнего края, т.к. построив что то в начале участка уже не пролезть будет вглубь...вот думаем баню построить. и опять дилемма: строить большую что бы там можно было жить, т.е. со вторым полуторным этажем, туалетом, практически баня дом, или построить попроще, одноэтажку, с планировкой чисто для удобства пользования именно как баней?

вот примерный набросок участка. у соседей дома стоят у дороги, так же как на наброске...
или все таки заморочиться с главного - с дома? и тогда ставить его в глубине...
но тогда потом вся зона отдыха и банька будут у дороги, там где основная движуха и соседские окна))
прошу вашего совета! как бы вы поступили?
баня или дом? если баня то солидная или обычная?
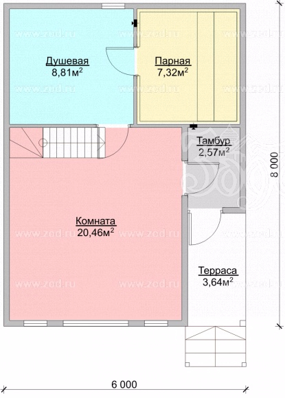
идеи черпаем на местной площадке зодчего, поэтому выложу примерные планировки бань, те что приглянулись)
банька 1
небольшая, но просторная+с верандой. очень уютная
на картинке небольшая, в реале прилично смотрится

вариант 2 (в 2 раза дороже)) баня-дом, со вторым полуторным этажем


или она же без второго этажа...
что выбрать посоветуйте!
Вы тоже можете нарисовать свой участок в масштабе, выяснить точно, где север-юг, и уже вертеть там свои будущие постройки. Ведь планировка тоже зависит от сторон света: кухню лучше на запад, спальню на восток и т.д.