Покритикуйте проект дома
Обсудим проектАрхитектор прислал окончательный вариант планировки дома, а я вся в сомненьях, правильно ли мы все расположили и продумали! Это наш первый дом, поэтому опыта совсем нет. Девочки, все ли верно и гармонично? Буду рада любым комментариям и советам!
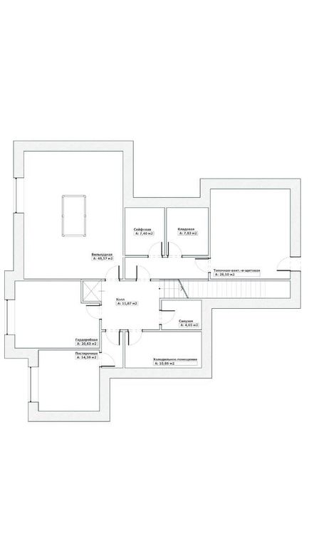
Планировки под кат Цоколь

1 этаж

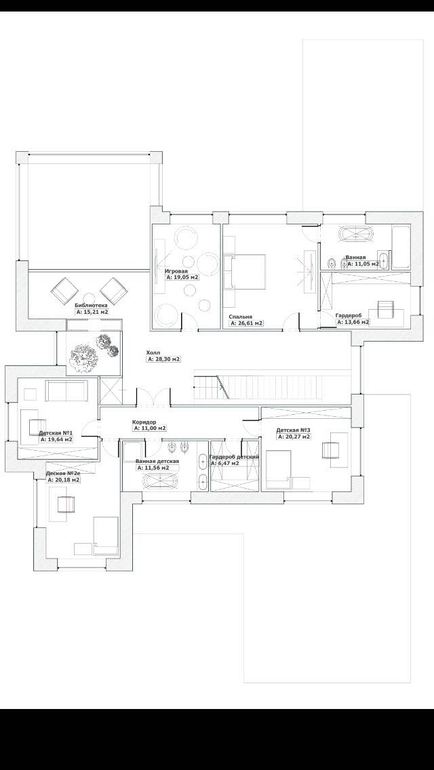
2 этаж

businka
Сложно судить о планировке, не зная вашего достатка. На мой взгляд планировка не очень продумана. Много места пустого... непонятно для чего. Гараж однозначно надо строить отдельно. Рядом с домом. И ужать его немного тоже не помешало бы. Ну и цоколь, ва напислам уже. В общем если вы с мужем не миллионеры.... я бы еще раз подумала бы над планировкой. Потому что раз в неделю уборка - этого недостаточно. При наличии 2-3 деток тем более. Лестница? Очень сомнительно.
28.07.2016
Ответить
businka
Да. И по планировке. На кухне очень хорошо иметь кладовку. Такой стратегический запас. В вашем случае надо обойти всю кухню, чтобы бы в нее попасть. Не удобно. Очень маленький туалет. Ваши гости где душ принимать будут? В вашей спальне? Или может в детском? Библиотеку я бы перенесла в кабинет. А игровую на первый этаж. Я живу в доме, вся жизнь на первом этаже, на второй уходим только на сон. Нет бойлерной?будет отдельное здание? Нет постирочной. Гардеробные сделать в каждой детской. А общую убрать.
28.07.2016
Ответить
Мария
Бойлерные, топопочная, постирочная все в цоколе, по поводу кладовки согласна, нужно ее по другому расположить. Игровую может вообще уберу, уменьшу второй этаж, где написано библиотека это второй свет идет, иного назначения этому пространству пока не придумала! Гардеробные будут в каждой комнате, их не нарисовали почему то! Общую точно убрать надо, будет всякий хлам собираться)
28.07.2016
Ответить
*Веснушка*Наталья*
На втором этаже библиотека игровая коридор хол зимний сад. На первом гараж сад кабинет. В цоколе санузел и все остальные кроме техпомещения))) в общем основная ошибка ( моё мнение и от недостроивших свой дом слышала и от тех кто не может продать громадину при переезде) - огромная площадь. Те кто пожили в таких огромных говорят что второй раз бы построили меньше. Их основное пожелание)))
25.07.2016
Ответить
*Веснушка*Наталья*
Куча комнат непонятного назначения, коридоров, санузлов. Это же всё надо не просто построить, а всю жизнь убирать, ремонтировать, отапливать. Вы рискуете не жить в доме, а жить ради дома. Этакая пожизненная кабала. Но если будет служанка и уверены в доходах пожизненных, то почему бы и нет?)))
25.07.2016
Ответить
Мария
Убирать дом будет раз в неделю помощница по хозяйству, я сама сойду его драить! А какие комнаты непонятного назначения?
25.07.2016
Ответить
Диана
Хочется спросить какая у вас семья , что вы планируете такой огромный дом? Вот реально, у нас пока состав такой же как у вас,построили дом и уже два года живем,размер 200 м2 из них 35м2 гараж на две машины,вот больше бы я точно не хотела...при чем на втором этаже у нас две лишних спальни, которые могут использоваться как гостевые или еще для детей...самая маленькая по площади 18м2, остальные от 22 до 25 м2.Мне кажется вы построите монстра.
27.07.2016
Ответить
Мария
Семья большая, я, муж, двое детей, в планах еще хотим) и мама. Плюс у нас всегда гостей много) всегда мечтала о большом доме...
27.07.2016
Ответить
Диана
ну не знаю... по моему слишком большой дом, рискуете что в некоторые комнаты никогда заходить не будете... цоколь вообще мрак,в 99% случаев им не пользуются.
28.07.2016
Ответить
Солнце
Здравствуйте. Посмотрите нормативы котельной, я поняла, что она на цокольном этаже. Про цоколь точно не знаю нормативов, знаю, что на первом этаже, если делать, то окно в ней должно быть, посмотрите в вашем случае должно быть оно или нет, а то потом проблемы могут быть при подключении газа. Лестницу внимательно изучите (размер, количество ступенек на ширину и высоту пространства, просто у многих моих знакомых в проекте нарисована одна лестница, а на деле пришлось изменять, так как не помещалась по нормальным размерам, либо уменьшать приходилось марш, либо менять форму лестницы. На мой взгляд поворотная удобнее... Как уже говорили, детскую над гаражом точно делать бы не стала.
24.07.2016
Ответить
Мария
Спасибо! Буду пересматривать лестницу и может вместо детской поставить с/у детский и кладовку...
25.07.2016
Ответить
Sveta
Сомнительная лестница. У моей одноклассницы такая (однопролётная) - идёшь-идёшь, а она все не кончается. И коридор вдоль неё длинный и узкий, ни красоты, ни функциональности. Гараж, пристроенный к дому, с одной стороны удобно, на деле все равно от выхлопов никуда не деться. Знаю семей 5, которые пристроили гаражи, сразу потратили деньги на лишнюю площадь, а не используют по назначению.
24.07.2016
Ответить
Мария
Спасибо! Я изначально не хотела гараж пристроенный, но муж уперся, надо так и все! Типа там и вентяляция будет и тд... Я тоже здесь читала отзывы девочек, что не советуют, но не переубедить его. А какую лучше лестнице? Двухскатную? И коридор сделать не такой вытянутый получается? Почему то архитекторы рекомендовали именно такую лестницу, нужно уточнять
24.07.2016
Ответить
Sveta
Муж посмотрел проект и сказал, что самый лучший выход - поменять архитекторов. У него есть такое выражение: как театр начинается с вешалки, так дом начинается с прихожей. С каким настроением человек входит в дом и что он видит при этом, с тем он и идёт дальше. Если войдя в парадную дверь, гость сразу же упирается в следующую, то через эту призму он смотрит на все остальное. Прихожая должна быть большая, красивая и светлая, а не маленький, тесный тамбур. Это с точки зрения эмоций. А с утилитарной точки зрения представьте ситуацию, когда гости приходят по очереди, а уходят все вместе и начинают толкаться задами, одеваясь и обуваясь. Это не правильно. Хороший архитектор всегда постарается преобразовать транзитную зону (коридор) в холл, иначе огромные средства, вложенные в эти квадратные метры, абсолютно не работают. К тому же выглядит это ужасно. Дом очень большой, при этом, чтобы добиться той же функциональности, можно было бы все оптимизировать (уменьшить), сэкономив кучу денег. Хотя, конечно, архитекторов можно понять. Им платят за каждый квадратный метр. Но для заказчика каждый лишний метр - это сотни тысяч в строительстве, отделке, а потом отоплении и освещении. Кроме того, лишние метры - это сжирание земельного участка.
24.07.2016
Ответить
Мария
Вы имеете ввиду про тамбур этот? Они рисовали без него, а сразу прихожую большую, но мне показалось, что с тамбуром лучше в планы чистоты и тепла. Никто там раздеваться и разуваться не будет! На счет тамбура я тоже хотела с девочками посоветоваться, нужен ли Он! Архитекторов не помермть, уже оплачен аванс. У нас 40 соток, я думаю можно и большой дом поставить , метры земля от этого не страдают, можно и разгуляться
25.07.2016
Ответить
Sveta
У наших друзей есть такой тамбур - неиспользуемое захламленное вещами помещение. Почти 10 кв.м тамбур, потом прихожая 12 кв.м (вроде бы большая, а на деле одни двери, а желательно поставить шкаф для одежды, диванчик присесть обуться), далее узкий коридор вдоль лестницы - проходное неуютное пространство. Итого 50 кв. м!! площади пропадает зря.
Про подвал выше правильно написали - это самое дорогое в строительстве дома. А назначение помещений весьма сомнительное.
И рассчитывайте свои силы. Дом очень большой. Хорошая вентиляция в гараже имеется в виду приточно-вытяжная? У мужа клиенты тоже строили огромный дом, все мало им казалось. А потом, во-первых, долго строили и все прокляли, во-вторых, на приточно-вытяжную вентиляцию уходит в месяц порядка 50 тыс. на электричество.
25.07.2016
Ответить
Мария
Вот архитектор тоже тамбур не советовала! Да, все вентяляции и стоки предусмотрены. Дам ему всю переписку почитать, пусть думает. Спасибо!
25.07.2016
Ответить
Мария
Предлагали ранее такой вариант лестницы, но опять получ здоровенный коридор

24.07.2016
Ответить
akvitty
Лестница с разворотной площадкой и удобнее, и безопаснее. Площадь дома-то позволяет любую сделать. Гараж - вообще бессмысленная вещь, ИМХО.
25.07.2016
Ответить
Мария
Гараж наш камень преткновения с мужем! Ну никак не переубедить его! У друзей гараж пристроенный и не воняет, говорит, нужно вентяляцию хорошую и все ок будет. А мне не верится, судя по отзывам
25.07.2016
Ответить
akvitty
Просто сам по себе гараж со временем превратится в склад всякого хлама! Машину лучше ставить под уличным навесом, в гараже ей плохо. Если гараж отапливать и при этом нормально проветривать, будут конские счета за отопление - просто топить улицу. Если не отапливать, то там будет очень холодно, сыро и неприятно. Гараж на 4 авто - зачем?! Под автосервис? Опять же, грязюка там будет жуткая, постоянно мыть полы, организовать систему стока грязной воды (куда будете сливать реагенты, битум и т.д. - уже решили?).
На отсутствие запахов не рассчитывайте: запази въедаются в стены, и со временем все равно будет запах.
Я бы отказалась от гаража, перенесла котельную и постирочную в основную часть дома и изьавилась от цоколя и проблем, с ним связанными! Но это ИМХО.
25.07.2016
Ответить
Мария
Покажу ему ваш ответ, может передумает! Да, все стоки и отделение предусмотрено, у нас сейчас 3 машину, растет 2 сына (маленькие пока)говорит а куда они будут ставить)), а может они с нами вообще жить не будут?! Кто знает... У нас там проблема какая то с водами, поэтому решили Цоколь делать, сначала без него смотрели
25.07.2016
Ответить
akvitty
Обычно в гараж перестаешь авто ставить уже через полгода. А через несколько лет автомобили плотно обоснуются на уличных парковках. Просто для себя определитесь: зачем Вам гараж? Муж будет там ремонтировать сам авто? Сомневаюсь. Просто ставить? Машины гниют втрое быстрее в теплом гараже. А если вопрос того, чтобы сесть в теплое авто, не проще ли поставить автозапуск и оборудовать крытую парковку с навесом до входа в дом? Зачем топить улицу?
У нас тоже сейчас 3 авто: оборудуем 4 парковочных места на улице и еще несколько гостевых за забором. Вполне достаточно!
25.07.2016
Ответить
akvitty
Ну хотя бы то, что он в 99% случаев с течением времени начинает мокнуть. Затея вовсе не дешевая. Кроме котельной, в нем мало полезной площади. Основные и вспомогательные помещения удобнее иметь на жилых этажах, с естественным освещением, нормальной влажностью. Топить лишнюю сотню-другую квадратов малоиспользуемых помещений - удовольствие сомнительное. Да и плюс дополнительный уровень в доме - чем их меньше, тем лучше. Ибо по лестницам лениво бегать, помещения простаивают. Тогда уж лифт лучше ставить, если средства в достаточном количестве))
25.07.2016
Ответить
Мария
Ясно! Спасибо! Шахта под лифт предусмотрена!) геологию когда делала, сказали Цоколь обязательно делать...
25.07.2016
Ответить
akvitty
Зачем??? Для любой почвы есть фундаменты без цоколя. У вас глина пучинистая? Или что? Смотрите свайные фундаменты, они недорогие и можно устраивать на любую глубину практически. Плита - вообще плавающий фундамент, он прекрасно стоит везде, кроме, разве что, уж совсем болота/торфа. Но на болоте и цоколь не стоит делать тем более. Для таких грунтов сваи идеальны.
26.07.2016
Ответить
ирина
У нас был гараж в старом доме и будет в новом - мне очень удобно . Хотя бы снег и лёд зимой не отскребать с машины . Он неотапливаемый - поэтому проблем с гниением авто нет . По поводу выхлопов - а что мешает завести машину и сразу открыть ворота с пульта ?я так и делала - запах весь на улицу идёт , потому что как правило все заезжают носом и выхлопная труба как раз рядом с воротами в гараж ... Не знаю Че все так против гаражей ))) а я вот навесов никогда не понимала )))
27.07.2016
Ответить
Мария
спальню над гаражом не делают(не реккомендуют), темболее детскую. Мама архитектор подсказала. Что то со спецификой вентиляции связано.
24.07.2016
Ответить
Мария
Вот и я думаю здоровенный, хотели изначально не больше 300 кв, но после квартиры так хочется простора!
24.07.2016
Ответить
Саша
И немного смущает отдельная игровая. У вас есть опыт использования такой комнаты? Я просто тоже периодически думаю вместо спальни на первом этаже сделать игровую, но по сути ребёнок всегда играет там, где я или муж) одна в игровой она сидеть не будет, потащит все свои игрушки к нам, в гостиную или кухню) Весь дом-одга сплошная игровая)) Вот и думаю, есть ли смысл в ней.
24.07.2016
Ответить
Мария
Опыта нет конечно с игровыми комнатами, тк это первый дом, который мы строим. Думала может там что -то вроде Спорт зала детского сделать. Или кабинет себе)
24.07.2016
Ответить
Саша
Вам надо точнее определиться с вашими желаниями и нуждами. Вы сейчас хотите кучу бесполезных комнат наделать, и только потом уже придумывать, для кого и для чего они. Это неправильно изначально. Не обижайтесь, это мнение со стороны)
24.07.2016
Ответить
Оставшиеся комментарии доступны после регистрации
Зарегистрируйтесь и получите полный доступ ко всем функциям сайта.