Полный отчет о строительстве моего дома
Хвастушки:)Много фото, видео и текста...
Выполняю обещание, выкладываю информацию о своем дома. В воскресенье приняли дом окончательно. Огромное спасибо Ольга. Строю дома www.kamen-dom.ru
Итак, по порядку. Договор заключили 31 мая, бытовку купили 10 июня, приступили к стройке где-то на первой неделе июля. Договор на сумму 4 035 000 руб. Дом - под отделку.
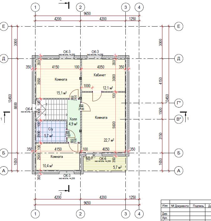
Планировка дома


Участок пришлось отсыпать, покупали дополнительный песок под фундамент и землю на участок.
Общая сумма около 200 000 руб. Завезли порядка 50 камазов.
К августу дом уже вырос



одновременно с завозкой грунта мы сделали дренаж по всему участку
Цена на него 170 000 руб. работа и материал
август фото


Решили сделать широкую отмостку вокруг дома.
Бюджет на нее 140 000
Да, рядом строятся наши друзья, у них такой же дом но немного с другой планировкой.
Стройка идет одновременно.
сентябрь:




одновременно начали делать перегородки в доме и коммуникации
вот тут по деньгам начинаю плыть... не записывала многое, за работу электрику заплатила всего 150 000 сантехнику - 250 000, это было во втором договоре на внутреннюю отделку и коммуникации. Его сумма 1 500 000 - перегородки, черновая штукатурка стен, потолки г.к шпаклевка стен и потолков.
Фото ноябрь



в январе заключили третий договор уже на отделку чистовую
без стоимости материалов только работа - 450 000 руб.
материалы чаще покупал муж в Леруа и на ближайших рынках, бюджет точный не понятен... около 500 000 я предполагаю. Результат виден на видео в самом начале поста.
И еще немного фото дома :



это фото дома друзей, у нас такая же веранда, сугробы не полезла фотографировать

это тоже не наш дом, нет у меня фото дома сзади, у нас точно так же только зеркально
По технической части. Выкладываю тех.описание из договора:

еще вспомнила, мы заменили доску террасы и балкона на лиственницу и краску купили хорошую а не пинотекс, камень покупали...это еще доп. затраты, около 200 000
Вроде все...
Спасибо, за внимание 
Итого бюджет:
под отделку - 4 0350
отмостка - 140 000
работа все коммуникации под ключ - 400 000 (электрика, сантехника, отопление, канализация, вентиляция)
материал все коммуникации - ??? не записывала около 350 000
работа и черновые материалы по отделке дома - 1100 + 450 = 1 500 000
чистовые материалы - ???? около 500 000
наши отдельные хотелки:
еще за монолитную лестницу мы отдельно платили 120 000
грунт, краска, лиственница, камень, дренаж около 500 000
Недавно с супругом выкладывали зону для костра а там в далеке баня недостроенная виднеется))) все в лесу.