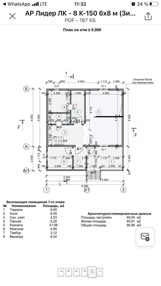
План коттеджа
Обсудим проектМы нарисовали вот такой план дачи,сезон весна-лето-осень,но хочется мнений со стороны,что-то возможно лучше переделать.
Семья 4 человека,гости без ночевки(гостевая-кабинет чисто летний вариант,без отопления). Планируется каркасник на ленточном фундаменте.Не могу удалить картинку №1.Добавлю окнчательный вариант(синяя картинка).


Лучший ответ
Катя
На мой взгляд тамбур неудобный. Одни двери, обувь оставить толком негде. Кухня и санузел далеко друг от друга, коммуникации нелегко тянуть будет. А где стиралку поставить? Санузел, если это ещё и бойлерная, маленький. Там же водонагреватель висит, насосы, фильтры для воды, гидроаккомулятор и т. Д... Вся жизнь все равно проходит на первом этаже, второй только ночевать чаще всего. Поставьте какой-то шкаф-комод с одеждой, чтобы постоянно на верх не бегать
23.03.2021
Ответить
Катерина
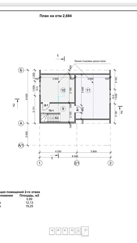
На 4 человек 1 микро-санузел на 1 этаж? Да вы задолбаетесь бегать на 1 этаж... Ну и завалите свою гостиную трусами-носками-полотенцами-халатами.
хотя бы микро санузел на 2 этаже предусмотрите (душ+унитаз).
И если будете там только в плюсовую температуру, можно без тамбура.
23.03.2021
Ответить
Лилия
Ну по комнатам вроде нормально всё, меня смущает что нет окон в холле, будет темно, и расположение окон где кухня гостиная и второй этаж, разные выходы, где солнце то будет. Продумайте. Мы при планировке дома тщательно их планировали. Как вырыли фундамент, немного под корректировали одно окно убрали, они не несло никакой функциональной нагрузки, а два по комнатам добавили.
23.03.2021
Ответить
Галина
Увидела надпись лидер -лк и подумала что это проект Терема))). Потом присмотрелась к плану и поняла что планировка другая. Ну а если без шуток. Можно с этим проектом в Кузьминки сходить. Вдруг возьмутся построить дом по вашему индивидуальному плану. Потому что самим строить дом это риск большой. А перестраивания всегда негативно отражаются на семейном бюджете.
28.04.2021
Ответить
Мария
Галина, Да это Терем переделанный по нашим "хотелкам" сейчас проект доработали, их проектировщики поправили исходя из технических особенностей(крыша,стены),строить решили с Теремом в мае
28.04.2021
Ответить
Kulik
Отопительное оборудование запрещено размещать в мокрых помещениях. (это по поводу котла в сан узле) тамбур, зачем? Тамбур это помещение для перехода из холодной зоны в тёплую. В тамбур вы оставляете всю грязь и сырость, у вас из тамбура дверь в гостевую. А основной вход через гостиную. Нужен ли вообще тамбур? Как - то он не на своём месте. То ли гостевая не на своём. В общем я хочу сказать, что дом имеет 2 входа и они рядом. Это глупо. 2 входа имеет смысл делать если они рассредоточены.
23.03.2021
Ответить
Мария
Yana , вход 1 через тамбур, в гостиной просто окно на веранду.насчет котла надо что-то решать, мужу сказала.Перенести дверь в гостевую не получается из-за лестницы,она будет редко использоваться и только летом
24.03.2021
Ответить
Елена
Зачем вам гостевая, сделайте там кладовку, ну и не увидела, где у вас оборудование будет стоять?
23.03.2021
Ответить
Мария
Елена, котел имеете ввиду? муж планировал в туалете,гостевая для редких гостей,чтобы было где переодеться,вещи положить, очень наставивает бабушка, по мне чем такая недокомната лучше в душевой купальник одеть для похода на пруд,но вот уперлась.
23.03.2021
Ответить
Nata
2,5*2,5 - ну ни как 9,7 кв м гостевая не получается
В тамбуре помещается не более 1 человека за раз.... ну и .....
как мебель будете заносить? Через окна?
Отсутствует туалет на втором этаже.... это прямо беее
23.03.2021
Ответить
Мария
Nata, туалет на 2-м этаже муж не хочет(не любит шум канализации бесит это его), насчет метража там неправильно, по точным рассчетам 6,24 м я бы ее вообще не делала,тогда и тамбур нормальный получается, спасибо за комментарий
23.03.2021
Ответить