Покритикуй проект дома
Обсудим проектДобрый день! Девчонки, подскажите свежим и опытным взглядом! Хотим дом, задолбались рисовать схемы, переругались уже с мужем не раз. Пожелания - 3 комнаты, кухня-гостиная ( не огромная, в идеале 25-30м), 2 санузла, котельная. Площадь 110-120 м. Конечно хотелось бы и кабинет маленький мужу, но никак не вписывается кабинет с окном.
Предлагаю мужу кабинет и туалет на входе местами поменять.
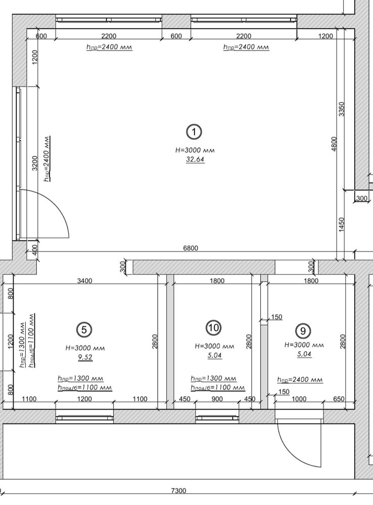
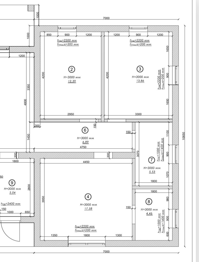
Что смущает в этом проекте - коридор вот где комнаты. Не особо нравится. И дом квадратный, хотя это мой личный загон.
А может у кого есть хорошие варианты одноэтажного дома 110-120 м ? С радостью посмотрим
Лучший ответ
IRENALa
Вот нормальный проект.
Он на 145 м2. Если убрать зону с сауной (уменьшить длину дома на 2-2,2 м) и котельную перенести на место крыльца, а вход - сразу в прихожую, как раз 120-125 м2 получится.
Тут хорошо, что родительская зона - отдельный блок. И кабинет вам.
И кладовка небольшая. И закутков-коридоров нет.
(2й санузел - там где написано «прачечная»)
Вот нормальный проект.
Он на 145 м2. Если убрать зону с сауной (уменьшить длину дома на 2-2,2 м) и котельную перенести на место крыльца, а вход - сразу в прихожую, как раз 120-125 м2 получится.
Тут хорошо, что родительская зона - отдельный блок. И кабинет вам.
И кладовка небольшая. И закутков-коридоров нет.
(2й санузел - там где написано «прачечная»)
25.04.2023
Ответить
Elena
При планировки дома так же учитывают коммуникации, стороны света, расположение на участке и соседи.
26.04.2023
Ответить
Евгения
Elena, соседей с 2 сторон пока нет, огород в огород и не будет, там лес. Коммуникации что знали, учли. Расположение на участке - скажем так, прикинули
26.04.2023
Ответить
Марина
Сделать дом квадратным, добавить окно сбоку гостинной. в части где добавиться сделать кабинет, на месте где сейчас кабинет - гардеробную обустроить
25.04.2023
Ответить
IRENALa
Марина, плюсую. Самое логичное решение.
вообще не понимаю, как можно дом без кладовок/гардеробных планировать, тем более с такими малюсенькими комнатами.
25.04.2023
Ответить
Наталья
Мы с мужем над проектом дома сидели в общем месяца 4.
Вы должны понимать, что удобно должно быть вам. Сложно критиковать т.к у всех свои потребности.
С моей точки зрения в этом проекте мне непонятно расположение кабинет, его размер и вообще форма холла не очень удачная.
Сама форма дома тоже странная, почему не квадрат?
Мы сразу еще вписывали гардеробную. Не представляю наш дом без нее.
Кухня - не понятно какие там размеры и насколько удачно туда встанет кухонный гарнитур. Я так понимаю туда планируется кухня буквой П.
Я бы еще думала. Мы начали осенью проект делать, закончили весной. И наш первый вариант с окончательным ничего общего не имел.
25.04.2023
Ответить
Евгения
Наталья, кухню хочу такого плана
Именно форма холла нам и не нравится.
Мы тоже год назад все начали, потом свернули вообще. Сейчас опять решили строить дом. От первых проектов ничего общего уже нет. Но и выбрать не можем
Именно форма холла нам и не нравится.
Мы тоже год назад все начали, потом свернули вообще. Сейчас опять решили строить дом. От первых проектов ничего общего уже нет. Но и выбрать не можем
25.04.2023
Ответить
Анастасия
А почему не поменять ванную и кабинет? Уж всяко ванная без окна - это нормально
25.04.2023
Ответить
Dasa
Вот план моего дома 110м, посмотрите, может натолкнет на мысли какие :)
Тут есть все, что вы перечислили)
Тут есть все, что вы перечислили)
15.05.2023
Ответить
Евгения
Dasa, мне очень нравится)))
А можно попросить у вас размеры дома и комнат. А если есть фото снаружи, буду очень благодарна
15.05.2023
Ответить
Ульяна
А почему не хотите 2-этажный?вот где можно было бы развернуться! И все аместить. И чисто мой загон - не люблю спать близко к земле, комфортнее повыше, как минимум на 2 этаже.
09.05.2023
Ответить
Ульяна
Евгения, у нас на дачах проходной двор, не успел проснуться - уже кто то из соседских детей в окно стучит зовёт гулять. Или вечером кто то из мужниных, проходя мимо, зашёл на огонёк /бокал. Меня все этот раздражает страшно - нигде не скрыться обязательно в окно 1 этажа меня кто - то видит. На втором этаже мне гораздо комфортнее. Но у нас там детские.
10.05.2023
Ответить
Марина
Напишите в поиске в гугде проект дома 110 кв.м и смотрите, что по душе. Так же можно на авито посмотреть предложения от застройщиков, они там часто план дома выкладывают. Я бы так сделала.
25.04.2023
Ответить
Ренатик
Сколько всего площадь дома?) И что это за программа где можно планировку построить, хочу поиграть)
25.04.2023
Ответить
Жаворонкова Анна
А чем вам не нравится квадратный дом? и не хотите ли вы поменять ванну с кабинетом? Так получится кабинет с окном, а в ванне окно не обязательно, и в ванне можно поставить принудительную вытяжку
25.04.2023
Ответить
Евгения
Жаворонкова Анна, это уперся муж. Ему обязательно надо ванну с окном, иначе сырость и плесень и тд.
25.04.2023
Ответить
Больше фото в моем дневнике можете посмотреть, я освещала всю стройку :)))))
Евгения,