Помогите определиться с проектом небольшого дома

Лучший ответ

Котельная под потенциальный газ обязательно нужна отдельная. Причём там есть нормативы по площади и объему.
15.01.2024
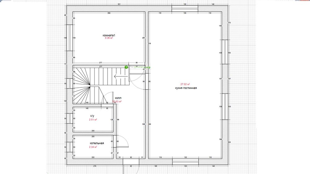
В первом варианте меня смущает длинный и узкий коридор. Зешел, а куда вещи? Под двумашевую лестницу тоже маловато заложили. Второй вариант куда интереснее. Если из гардероба делать комнату, то как раз подлестничное пространство уйдет под шкаф. В тамбуре есть небольшая нисша под вещи, или у котельной можно отжать площадь под вещи а вход в нее сделать из прихожей как вариант. Для меня вообще очень важна организация пространства. Поэтому первое о чем я думала это где будут шкафы:) Еще совет и рекомендация, прежде чем утверждать проект наймите дизайнера, не дорогого который будет вам рисовать стиль, а чисто расстановку по мебели. Потому что потом будет обидно если 3-5 см будет не хватать например для стандартного дивана/кровати или еще чего.(Я с таким столкнулась просто). На мой взгляд еще обязательно надо террасу и выход из нее... у вас дом на участке будет посередине? или с краю близко к забору. Если посередине то выход прям не будет лишним 100% через весь дом ходить загребетесь. У меня вообще три выхода/входа, ни разу не пожалела, за каждый с мужем сражалась. Основной, на задний двор с огорода и с террасы.
04.03.2024
Лестница у вас большая, можно попробовать или одномаршевую или винтовую. При таком дефиците пространства, ставьте газовый котел в кухню. Это разрешено, в газовая котельная в 2 метра не проходит по норме. И если у вас уже плита залита, то как вы будете приделывать эркер? Дорогое удовольствие. Тогда уж английский эркер делать.
18.01.2024
Марина, эркера не будет, просто прямая стена. Я именно планировку эту хотела обсудить. Что есть не большая комната-гардеробная - в неё врезать окно и будет небольшая гостевая. Но она под лестницей, и меня это смущает...
18.01.2024
Анна, присоединять пространство под лестничный чулан к комнате это правильно, но лестница на плане срезана на высоте метр. Там только ползком. Реальная площадь комнаты, где можно встать, будет примерно 8,5.
18.01.2024
Марина, спасибо. я понимаю что 10 м там не будет конечно) но хоть какие то шкафчики под лестницу и небольшая кровать - уложить ребёнка на обед спать, сам прилечь). Будет ли этот газ или нет неизвестно. В первом варианте вообще не куда 5м котельную воткнуть, но есть комната. Вот и голову сломала, мало ли нужна будет котельная - тогда вариант с эркером нам подходит. А если его не будет?! То может и на первом остановится.... Голова кругом 😫
19.01.2024
Анна, про котел я вам сказала, вешать на кухне. Дома маленький, котел у вас будет небольшой.
19.01.2024
Марина, котел на кухню конечно рассматриваем. И в итоге какая пларовка на ваш взгляд "убобнее"???
19.01.2024
Анна, второй перспективнее, но требует доработки. Котельная выкидывается в кухню, гардеробную выровнять и превратить в спальную, санузел сдвинуть, останется место для мини гардеробной при входе.
19.01.2024
Марина, спасибо. Хоть кто то со мной побеседовал))
19.01.2024
Анна, пожалуйста. Вообще-то мы не только болтаем, но и проекты делаем и строим 😄
19.01.2024
Марина, разве котельная не в кубометрах измеряется? там 5 куов надо вроде. при высоте потолков 2,6 уже норм
21.01.2024
Никто не бородавочник, от 15 куб.м. Да и зачем им в итак маленьком доме, где каждый метр на вес золота, ещё и котельная.
22.01.2024
Нам в дом из сип-панелей посоветовали пластиковую дверь. Т.к. металлическая (по опыту строителей) промерзает
22.01.2024
Олень!k@, с терморазрывом надо брать, тогда не будет
23.01.2024
а вы не хотите вокруг дома пристроить террасу на сваях? мне в моем доме очень не хватает большой террасы, чтоб по ней ходить можно было. типа такого Изображение на лестнице я б не экономила, надо максимально пологую делать и если получится с прямыми ступенями, а не забежными. пока молодые конечно пофик, но лет через ...дцать будет проблемой, да и когда внуки появятся забежные ступени очень опасны. вот нарисовала, может понравится такая планировка. если котёл будет на кухне, то можно использовать как кладовку или увеличить санузел. и под лестницей кладовка - их много не бывает. Изображение и ещё совет, рисуйте планировку сразу с мебелью, где что будете оасставлять, например ширины кухни 2,4 метра как раз достаточно для П-образной гкухни, а оставшиеся 20 сантиметров например можно ещё куда-то потратить.
22.01.2024
Никто не бородавочник, да, террасу на сваях мы и хотели. Она нужна обязательно - те же гости летом. и Я хотела один вход в дом с террасы в прихожку, ну грубо говоря как на картинке один вход и все. Единственное меня смучает 2 входа, на всех картинках по 2, и дома каркасники построенные рядом небольшие по площади,но тоже 2 входа. Это что обязательно нужно??? Выход из гостинной на террасу - да удобно, шашлык занести и т.д. но то и дело будут шататься в эту дверь и песок тащить в дом ))) то песок, грязь в коридоре, а то сразу в гостинную. Я прям согласна с вами полностью что мебель +- заранее продумать. Думаю по тихонечку, вот сюда пришла за советом "бывалых".
22.01.2024
Анна, я бы сделала 2 двери, одну в случае чего можно держать закрытой и открывать только если точно знаете что никто не будет бегать в обуви с террасы на террасу ) у нас кстати друзья сделали ещё и из котельной дверь на улицу. и зимой используют её как тамбур, чтоб дом не выхолаживать. заходят через котельную. но у них они большая, нормально 2 двери помещаются. только это все конечно сильно удорожает, доп двери
22.01.2024
Никто не бородавочник, про удорожание согласна. у родственников примерно такой дом, только на метр больше. 2 двери и дверь из гостинной вся стеклянная- грубо говоря нет стены все из стекла....... капец как бедная хозяйка за ней ухаживает)) это же капец. то и дело ее тереть надо. но она очень довольна, у них всегда чисто, и такое количество стекла ее не смучает
22.01.2024
Анна, ой нет, для меня это страшный страх, стеклянные двери) у меня металлическая, с небольшим окошком, чтоб было видно что там происходит
22.01.2024
8 на 8 два этажа-это нормальный дом! Не маленький ни разу. На 4х в самый раз. На фундаменте все кажется маленьким.
20.01.2024
Мария, фундамент вообще малышом кажется... Но что есть то есть
20.01.2024
Анна, я на своем фундаменте чуть не плакала. Казалось что очень маленький дом получается. Как только пошла коробка-стало просторнее, в конце так вообще кажется, что можно было и меньше делать! Так что на фундамент не ориентируйтесь, его восприятие обманчиво.
20.01.2024
Мария, хорошо бы было так ))) очень надеюсь
22.01.2024
Могу посоветовать хорошую строительную компанию, которая поможет в выборе планировки и строительства И лестница сожрёт пространство и будет с ней только дороже Сама обращалась туда, очень помогли со всеми вопросами и документами Номер +7 920 797-98-69 Ольга
16.01.2024
Как вариант, на вашем первом плане сделайте гостевую комнату напротив котельной и санузла, а остальное пространство оставьте без стен, на месте гостевой на вашем плане можно сделать кухню и остальное место под столовую-гостиную
15.01.2024
Жаворонкова Анна, спасибо я кстати даже и не думала так........
15.01.2024
О планировке домов тогда и сейчас Посоветоваться о реконструкции дома