Дом мечты 2 ч.

Лучший ответ

Не знаю, почему все так любят делать отдельные гардеробные. На практике гораздо удобнее большие встроенные шкафы на всю стену. Все эти клетушки надо проветривать, иначе - привет плесень.
08.08.2024
Anežka, именно по этому и я сказала на счет этой клеточки, то это херня, а не гардеробная. Лучше в спальне шкаф крутой поставить, а эта кладовка будет выполнять функцию кладовки))
08.08.2024
Anežka, мне при планировании дома прямо вот везде хотелось этих гардеробных, архитектор даже спросил « что вам сделали шкафы»😂, получилась одна, в спальне, сейчас я думаю, зачем ? Что я там буду хранить, 3 джинс, 5 футболок и 2 толстовки? Ладно хоть у мужа шмотья побольше))
08.08.2024
Проект функциональный, дом просторный, места всем хватит, хотя мне было бы удобнее на террасу выходить из кухни, а не из гостиной, чтобы через все помещение не тащить посуду и еду, если захочется там накрыть стол. И я бы спальню сделала больше, а санузел наоборот уменьшила, су2 объединила с постирочной, так как в постирочную неудобно ходить. Но это мое видение. А сколько всего квадратных метров получается?
14.08.2024
Ася, знаете , как то терасса именно с той стороны рассматривалась и никак по другому . У брата такая же планировка и в гостиной и критичного за 5 лет не заметили ) На счет ванной согласна . На метр можно было бы уменьшить в пользу спальни , но об этом подумали после разводки сантехники . На счет постмпочной предлагала мужу изначально . Категорически не захотел , ну и ладно )
16.08.2024
Ася, по квадратам 203 по моему . Всегда путаю 213 или 203
16.08.2024
тогда дверь в кладовую лучше сделать в коридоре
08.08.2024
Жёванный Крот с эбонитовой палкой, именно так я и написала ) С комнаты мне эта дверь ни к чему
08.08.2024
Это дом для постоянного проживания?
08.08.2024
Помни, верно
08.08.2024
Кто это всё мыть и убирать будет))))а так да здорово,мы сейчас сами тоже занялясь стройкой. А у Вас в гараж прямо с комнат выход будет и отопливаться будет?
08.08.2024
Алёна , будем все вместе мыть 😅 В гараж вход между котельной и постирочной. От комнат между ними несущая стена , плюс звукоизоляция дополнительно будет . У мужа машина спортивная , по этому сразу перестраховываемся) Отапливаться все будет через теплый пол , в гараже думаем еще . Пока склоняемся так же к теплому полу
08.08.2024
Veronika, ну-ну, все будут мыть.
08.08.2024
Помни, Надежда умирает последней)
08.08.2024
Veronika, круто!
09.08.2024
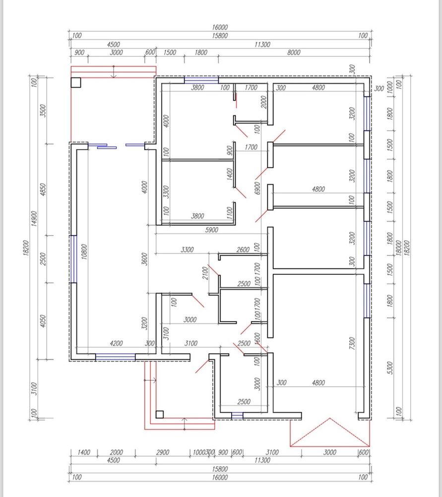
Этаж один? А вообще я ничего не поняла, где мокрые зоны, кухня, ванная? Их обычно выделяют, где гостинная?
08.08.2024
Помни, да, один . Это скин из согласования проекта , по этому ничего еще не выделено . Вот тут подписала) Изображение
08.08.2024
Veronika, вот, теперь поняла. Я думала что на месте кухни гараж, а на месте гаража кухня-гостинная. 🤣
08.08.2024
Помни, глядя на план , могу сказать да, логично , что гараж был бы отдельно ))
08.08.2024
Всё класс! Но я бы задолбалась мыть😂😂😂. Отдельно нужна комната для уборщицы
08.08.2024
Anastasiya, я надеюсь девочки подрастут и будут помогать 🤣 Ну а так да, хочешь большой дом - люби и большие тряпки 🙈
08.08.2024
Veronika, гараж из дома вообще клёвая вещь... мы дом покупали и искали именно с таким гаражом. Зимой оценили на все 100%
08.08.2024
Anastasiya, надеюсь и мы заценим ) но в любом случае , даже если он будет использоваться как склад ( именно так все почему то пишут ), то мне еще больше плюс 😁
08.08.2024
Veronika, У нас гараж 10×4 ниче и машины влазят и стеллажи стгят с хранением... зато дома минимализм:)
08.08.2024
Anastasiya, мы планируем большую машину покупать для семейства, по этому делали с запасом . Да и у мужа свои планы на гараж
08.08.2024
Veronika, прожив в доме 3 мес я хочу строить новый дом,, меньше😁 не понимаю, почему я была такой самонадеянной( несущие стены уже есть, я понимаю? У меня только про окна комментарии, но видимо неактуально уже)
08.08.2024
Елена , да, вся коробка уже стоит ) А что по окнам ? В любом случае интересно , даже если не актуально 😌
08.08.2024
Veronika, я бы сделала стеклянную стену слева, или окно на 2/3 и гостиную чуть шире на 5 метров хотя бы, а в длину сократила бы чуть, поменяла местами спальню и санузел, чтобы был с окном .
08.08.2024
Елена , в ширину мы увеличили сторону где детские и гараж на 80 см , больше не позволяет ширина участка к сожалению . В гостиной мне не хватило ширины ну может на 1 м, не больше ) У нас у брата гостиная примерно такая, чуть шире , вроде нормально . Окно специально в зоне стола, там красивые закаты и хотели именно тут окно . По спальне , пусть лучше она будет с окном , чем санузел . Там я планирую все же больше находится 🤭
08.08.2024
Veronika, с шириной участка понимаю, у нас узкий, из типовых проектов вообще ни один не подошел. Не-не, спальню с окном конечно😁 я имела ввиду гостиную расширить, но по длине сократить, чтобы уместилось окно, но понятно уже, что так нельзя, чем то приходится жертвовать( в длинной кухне - гостиной конечно удобнее разбивать на зоны, у меня квадратная, не очень, но тоже вынуждено обрубили по длине .
08.08.2024
Дом мечты 1 ч. Стройке 1 год 4 месяца. Переезд?