Дачный домик
СтройкаДобрый день!
Нужна аргументированная критика предварительного наброска одноэтажной дачи. По-моему получились какие-то "микроклетушки".
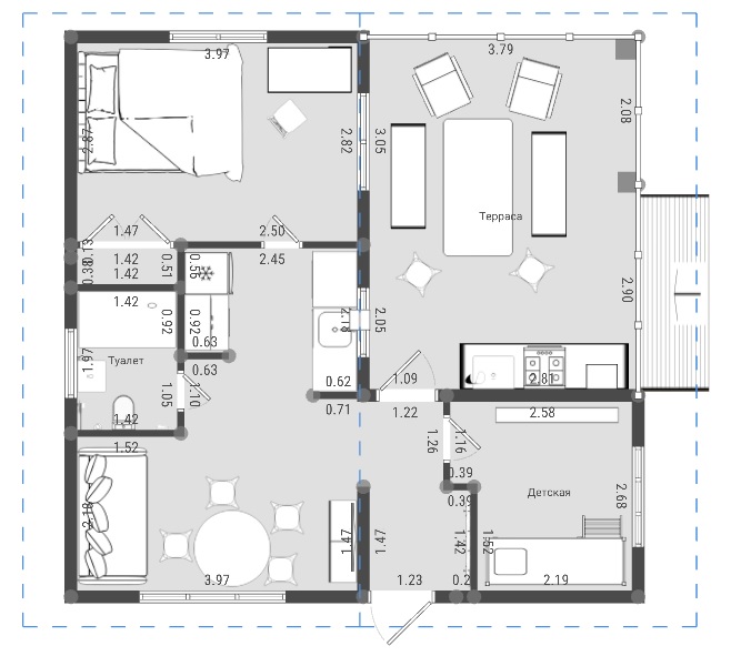
Нужна терраса с летней кухней, ещё кухня-гостиная в доме, и одна спальня. В эскизе аж две микро-комнатки получились. Всё под одной крышей. Фундамент 8х8 метров (из-за размера плит перекрытий).

Оля (я скоро мамой стану снова)
Я считаю что 8/8 это хороший размер для дома. Вместе террасы надо делать комнату. Террасу вынести под отдельную крышу.
25.08.2018
Ответить
Oksana
Спасибо! Мы как раз на этом с мужем и остановились. Именно так и будем делать! 😄😄😄😄😄
26.08.2018
Ответить
Оля (я скоро мамой стану снова)
Просто мы поставили 6/8 в два этажа. А теперь настраиваем. Дети. Гости. Кухня должна быть большой. На ней все и ютятся.
26.08.2018
Ответить
Mary Jane
Давайте лучше попробуем плясать от того, что Вы хотите в этих помещениях делать?
и в какой сезон?
Сколько народу обычно в доме? (дети взрослые?).
В доме постоянные электричество, газ, вода? или чего-то нет например?
25.06.2018
Ответить
Oksana
Только летом. Я и трое младших детей. Периодически ещё: муж, старший сын и наши друзья/подруги (наездами). Газ в баллонах, вода пока только техническая три раза в неделю (поэтому будем на чердаке еврокуб устанавливать), электричество есть (заявлено до 15 кв., но на деле примерно 5 кв.).
Большую часть дня вне дома: на террасе или на участке. :-))))
25.06.2018
Ответить
Mary Jane
Вообще не пойму тогда зачем кухня и внутри и снаружи.
У меня тоже планы на дачу только летом, поэтому я могу понять, что например пока дети бегают, а взрослые готовят, хочется их контролировать. И большая часть дома тоже на террасе и участке.
Я хочу санузел максимально с кухней вплотную совместить, чтоб вести одну трубу общую например ( на воду на кухне и на туалет)..
Спальную взрослую с кухней и туалетом поменяла бы в этом случае местами.Возможно не феншуйно относительно сторон света (где у вас что кстати? север юг и так далее).(Я предполагаю, что терраса на юг должна выходить (сама в этих делах еще пока теоретик), лучше правда тогда планировку так и развернуть, чтоб было нагляднее.
Второе дело , что например вы в любую погоду летом на даче (ну то есть на случай, если пошел дождь детям надо играть где-то в помещении. Где это предполагается?
и по сну.Все дети спят отдельно или например младший с вами, а девчонки отдельно? как по спальням планируете распределяться?
25.06.2018
Ответить
Oksana
Дача будет в жарком климате. Поэтому терраса на северо-запад будет выходить. Нужна прохлада :-))) Преобладающий ветер летом: северный и северо-восточный. Как размещаться.... Тут тоже загвоздка.... Дочкам двухярусную кровать, сына с собой. Остальных в гостиной на раскладной диван и раскладушку. Муж хочет высокий чердак (не мансарду) и там спальное место. А две мини-кухни нам действительно необходимы :-) это мы из собственного опыта знаем. И вот хотелось их расположить максимально близко друг к другу, чтобы собирать стоки в одну трубу. А муж говорит, что не проблема -может сделать две трубы в два разных небольших септика.
25.06.2018
Ответить
Ларёк
Детская у входа, сапогами топать, дверьми хлопать....
На террасе бильярдный стол?..))) Места вообще нет, как подойти к краю, смотреть по сторонам и наслаждаться?
Какие-то две микрокухни? Как с террасы сходить в холодильник за водой или льлом? Слишком зигзагообразный маршрут...
Чтобы пройти с улицы в туаоет, тоже далеко забираться. Из кровати так же(
Спать, устав от вечеринки, будучи видным гостям и вечеринке через окно тоже как-то не удобно...
У нас сруб 7,5*7,5+ балкон: кухня-гостиная с камином 28м2, спальня, санузел. Детской только нет, но поместилась бы. На все помещения всего 2 двери.
25.06.2018
Ответить
Oksana
На террасе большой обеденный стол и лавки-кресла-стулья-табуретки (короче, всё, на чем можно сидеть
).
).
25.06.2018
Ответить
Ларёк
Если Вам так удобно, то ему там место, я просто не люблю посиделок за столом, у нас маленький столик-гвоздик и кресла, шведская стенка для ребенка, вроде все
25.06.2018
Ответить