как грамотно расставить мебель в спальне
Вопросы и ответыдевчонки! всю голову сломала, честное слово! делаю ремонт в квартире (однушке), квартира для меня и ребенка. Никак не придумаю как расставить мебель в спальне. Хочу зонировать комнату - сделать мою зону и детскую. Но как зонировать... может ширму раздвижную или как это правильно сделать. Подскажите мне плиз;)
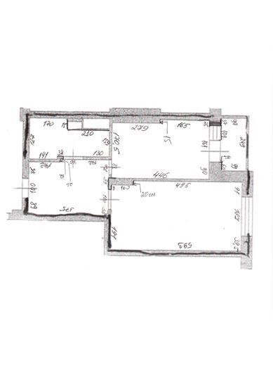
Вот план (к сожалению от руки, пдф картинки не выкладываются, если кто поможет, могу на мейл выслать). Обязательно хочу себе кровать, хотя бы полуторную, но кровать;)

Елена архитектор
Я бы для себя, сделала так. Перегородки, отделяющие спальню и детскую, а также двери - со стеклом.

10.01.2012
Ответить
Staffochka
обалдееееть! я честно сказать в приятном шоке))) как все красиво и грамотно и главное - это 2 комнатки, пусть и маленькие. Вы молодец!!! мне такое и в голову не приходило)
10.01.2012
Ответить
Олеся Максименко
прости, у тебя не очень понятно по чертежу где-какая комната, а то я бы с удовольствием пораставляла, обожаю это делать!!!!
10.01.2012
Ответить
Staffochka
комната та, которая с окном (окно 187см). если хочешь, я тебе на мейл отправлю в pdf варианте=)
10.01.2012
Ответить
Олеся Максименко
ага, понятно, не надо не загружайся, я так лучше на листочке чертежик сделаю, себе также планировала... тогда напишу только ты сейчас напиши что точно ты хтела бы туда поставить, а что ни желаешь видеть там ни в коем случае, а то у тебя мебель наверно уже в наличии есть с определенными размерами, а то я нафантазирую, мебель, а её ещё купить надо будет!?!?!?
10.01.2012
Ответить
Staffochka
да, для себя я уже спланировала вроде как) потом покажу что получилось. Значит так... Две зоны: моя и сына. В его зоне комодик, кроватка и столик и ящик для игрушек, в моей зоне: кровать, тумбочка прикроватная (не знаю 2 или одна) и шкафчик наверно глубиной в 40см (не больше), ну и телевизор (или проектор, я пока еще думаю). вот и все наверно=)
10.01.2012
Ответить
Олеся Максименко
Понятно, попозже сяду,и что нибудь надумаю... такой вопросик, зону детскую к окну или проходную, или без разницы???
10.01.2012
Ответить
Staffochka
нет, квартира в новостройке, даже стяжки на полу нет. Так что дел предстоит ооочень много. Да, вариант очень хороший=) я с архитекторами консультировалась, но такой красоты мне никто не предлагал)
10.01.2012
Ответить
Ольга&Визажист
Новые высотки))) у меня туда недавно знакомая переехала)) ремонт с июня до декабря делали)) сегодня с ней разговаривала, говорит квартира холодные(((( точнее одна комната у них углом выходит на улицу и стена ледяная
10.01.2012
Ответить
Олеся Максименко
я тоже ширму хочу, двухстороннюю, типа с одной стороны - рисунок детский, а с нашей - фото какое нибудь природы, но говорят они дорогие...
10.01.2012
Ответить
Staffochka
да, дорогие, но просто ширма мне как-то не нравится, я где-то раздвижные видела от пола до потолка, днем светло и хорошо, а на ночь уголок свой появляется. Уже честно сказать замучилась искать и думать как и что расставить, хлопоты приятные, но как всегда все в деньги упирается
10.01.2012
Ответить
Олеся Максименко
да раздвижные это круто!! но надо тогда с хорошим механизмом искать, чтобы "ездила", хоть и стоять будут больше, но зато и не сломаются быстро, а то у меня шкаф- купешка вон постоянно верь выходит с "полозьев"
10.01.2012
Ответить