Двухъярусная кровать или кресло?
Вопросы и ответыПривет всем. Я не совсем девушка, вернее совсем не девушка.. но вот решил зарегестрироваться, и задать вопрос о спальном месте для детей :) У нас пополнение будет вот-вот, первой дочке 2,7 второй вроде будет мальчик, но там не совсем ясно..
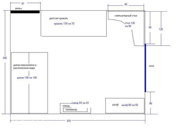
Квартирка у нас маленькая, вынуждены ютиться в одной комнате, собственно по-этому я хочу двухъярусную кровать, жена как-то побаивается и говорит что нужны ещё какие-то полки для вещей..
Сейчас расположение примерно такое(простите за грубый рисунок, я не художник)):

Жена хочет купить кресло-кровать или диванчик детский(правда ума не приложу куда она хочет его впихнуть?!) и оставить ту кроватку которая есть(там много ящиков для вещей)).
Я планирую что-то подобное:

кровать примерно такая(только чтоб бортики были на первом ярусе тоже):

или такая:

Правда не знаю как это будет выглядеть в реальности, комнатка у нас реально очень маленькая..
Посоветуйте что-нибудь девченки, всю голову сломал уже.
ремонт ещё не делали правда.
если ставить двухъярусную, то соответсвенно детскую кровать убирать надо.