Помогите с расстановкой и дизайном
Интерьерное решение детской комнаты
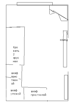
ЕСть план комнаты
ширина 2.6. длина 5.5
Сейчас обои светло бежевые как жатые. с золотыми полосками .
хочется половину комнаты сделать для мальчишек,
..может есть идея.. как зонировать
Комната не большая 12 кв. метров.. для меня и детей
.................сделала ремонт..теперь все хочу по новой сделать
Кровать2 ярусая(купила в икеи- большая не устраивает(( их...мооо очень огромная, 2 метра на метр.. это черезчур,
ВОт не могу понять .или 2 маленькие кровати покупать или ..
от дивана пока избавилась, хочу теперь светло кремовый кожанный диван...и разделить комнаты на 2 зоны, одну спокойную и яркую ...
Посоветуйте пожалуйста.
Хочется в светлой гамме....
теперь придется избавляться и от углового шкафа... или оставить? ..цвет светлый дуб((
голова уже кругом, в субботу придут пол делат... начало положено
кровать белого цвета, далее шкафы как на фотографии только одни шкафы без полок и комода цвет