Помогите с расстановкой мебели в гостинной
Интерьерное решение гостинойЕсть гостинная 16 кв.м, окно выходит на север, сейчас там собираемся делать ремонт

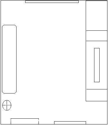
заходим в дверь - напротив большое окно. Справа будет стоять угловой диван рядом у стены комод. Паралельно окну журнальный столик. напротив дивана модульная стенка.
Как считаете расположение мебели не нагромождает комнату? Может подскажите что-нибудь?
Галина23
А вам удобно, когда диван у окна? У нас примерно такой же набор мебели и комната похожа, только в зеркальном отражении. У нас диван стоит( если по-вашему) в левом нижнем углу, а стенка напротив, комод по стене с диваном.
28.09.2012
Ответить
Paragraf
сейчас у нас как у вас))) хотела по другому. ниже дан другой вариант, это девочки посоветывали не делать т.к. не очень удобно когда диван напротив входа
28.09.2012
Ответить
Paragraf
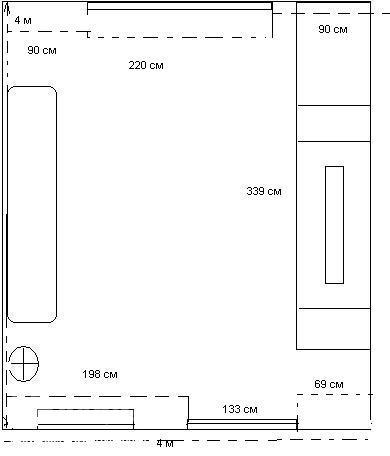
комната 4*4м. Окно 220 см (слева и справа от окна одинаковое расстояние). Дверь 133 см- двухстворчатая, открывается не в комнату (справа от двери до стены 69 см, слева 198 см). Шкаф модульный уже есть он 339 см длиной и в ширину 39 см (возле окна двухстворчатый ) Вот точно такой как на картинке
Диван, комод и бра еще не купили, даже еще по цвету не определилась. Хочу чтоб диван был длинный.
Комната, как я писала выше находится на северной стороне - света не очень много.
Двери стоят такие
Хотела на пол ламинат цвет
или такой
С обоями вообще не могу определиться - одного цвета или совместить два цвета.
В общем прошу помощи. ПОМОГИТЕ!!!!
Диван, комод и бра еще не купили, даже еще по цвету не определилась. Хочу чтоб диван был длинный.
Комната, как я писала выше находится на северной стороне - света не очень много.
Двери стоят такие
Хотела на пол ламинат цвет
или такой
С обоями вообще не могу определиться - одного цвета или совместить два цвета.
В общем прошу помощи. ПОМОГИТЕ!!!!
28.09.2012
Ответить
Paragraf
может быть тогда как то так диван не углавой и возле него торшер
комод что-то типа такого




27.09.2012
Ответить
Катя
Неудобно мне кажется, что диван напротив входа. Как-то не расслабишься. ИМХО. Надо диван по левой стене ставить, а стенку по правой. Столик я бы поставила к дивану, а с комодом непонятно как быть, потому что представления нет, как он выглядит. Насколько он большой? Высокий или нет? Может есть примерное фото?
27.09.2012
Ответить
Ляночка
мне кажется надо диван поставить с лева от двери, потом комод, а с противоположной стопроны модульную стенку.
27.09.2012
Ответить