Плитка и ламинат
Интерьерное решение гостинойПодскажите как гармонично соединить плитку и ламинат?
прихожая точно плитка, зона отдыха - ламинат... обеденная зона под вопросом ...

ламинат однополосная доска цвет выбеленный дуб

плитку еще не выбрали..
Леонид
Есть несколько вариантов исполнения.
С помощью порога и без него, с молдингом, применением строительной пены, силикона, герметика и пробкового компенсатора
Здесь более подробно расписано http://www.plitka-keramicheskaya.ru/?p=1662
03.11.2015
Ответить
Светлана
застилите всё виниловой плиткой и влаги не боится и теплая и масса расцветок и размеров. Почитайте на сайте Пол Дома.РФ
22.10.2012
Ответить
Yuliya (дизайнер интерьера)
Вот в первом вар-те радиус более "крутой", во втором более сглаженный, и вар-ты по освещению, в первом центральная люстра над зоной отдыха, два висячих над обеденной зоной, и точки над рабочей зоной. И во втором центр. над зоной отдыха, тоже люстра над обеденной и точки по радиусу плитки (тогда рабочая зона будет освещаться подсветкой которая под навесными шкафчиками)

21.10.2012
Ответить
Котёна
Супер!!!!Наверно первый реальнее сделать, так как у нас уже электрика уже проведена, а именно предусмотрена подсветка на гарнитур , 2 центральных люстры и еще по периметру 3 бра...
а еще я думала шкаф в прихожей разместить вдоль стены с телевизором.... а напротив поставить узкую скамечку чтобы удобно было детям обувь одевать, но мне кажется он не помешает общей картике)))
А можно я у вас еще спрошу про обои ?
у нас маленькая спальня 3,6*3 м ... по мебели там ничего не планирую.. кровать , маленький комод и ТВ... никаких шкафов не будет.... хочу белую спальню и очень понравились вот эти обои
обои белые с перламутровым рисунком ( на картинке слева).. при этом без света он смотрится так как на фото, а при попадании света он его отражает .
смущает что рисунок собран в клетку где-то 25*25 как на картинке справа... не могу понять какой эффект будет от этих обоев в маленькой комнате? мучаюсь выбирая между однотонными и этими...
обои белые с перламутровым рисунком ( на картинке слева).. при этом без света он смотрится так как на фото, а при попадании света он его отражает .
смущает что рисунок собран в клетку где-то 25*25 как на картинке справа... не могу понять какой эффект будет от этих обоев в маленькой комнате? мучаюсь выбирая между однотонными и этими...
22.10.2012
Ответить
Yuliya (дизайнер интерьера)
Знаете, клетка меня не смущает, ничего что маленькая комната, Но!!! если не на все стены, а только та стена которая у изголовья, а остальные три однотонные!! Мне впринципе не очень нравятся эти обои, особенно на картинке где девушка стоит, вообще они там не выглядят белыми, прям какой-то металлик........наверное вживую они выглядят по-другому, но судя по картинке впечатление такое((
Я бы вам посоветовала какой-то более нежный рисунок, например какие-то такие вензелечки
только белые, как вы и хотите...И , опять же, это только у изголовья, а остальные однотонные, чтоб не перегружать комнату.... На такую стену и картинки можно потом повесить, будет красиво, и бра , ......а на обои с "клеткой" картины допустим уже не так легко повесить, рисунок будет "бить"..
А сам спальный гарнитур уже выбрали???
только белые, как вы и хотите...И , опять же, это только у изголовья, а остальные однотонные, чтоб не перегружать комнату.... На такую стену и картинки можно потом повесить, будет красиво, и бра , ......а на обои с "клеткой" картины допустим уже не так легко повесить, рисунок будет "бить"..
А сам спальный гарнитур уже выбрали???
22.10.2012
Ответить
Котёна
нет еще... просто решили что он будет белым ...максимум слоновой кости...
22.10.2012
Ответить
Светлана
есть керамоганит по виду и размеру как ламинат - очень удобно совмещать, закрывается порожком
21.10.2012
Ответить
Yuliya (дизайнер интерьера)
Я бы плитку из прихожей пустила и на рабочую зону в кухне, что-то типа того
как-то делала аналогичную планировку, если увидите, то плитка из кухни переходит в прихожую, практично получается.
Или вот еще :
только здесь черная и бежевая плитка, но представьте что вместо беж. плитки ламинат.

как-то делала аналогичную планировку, если увидите, то плитка из кухни переходит в прихожую, практично получается.
Или вот еще :
только здесь черная и бежевая плитка, но представьте что вместо беж. плитки ламинат.
21.10.2012
Ответить
Yuliya (дизайнер интерьера)
Ну можно еще ее же пустить под TV, только чтобы например мебель (тумба под телеком) заканчивалась там же где и плитка, или какие-то навесные полки на этой стене чтоб были на уровне (по вертикали ) с плиткой......вобщем чтоб она была не сама по себе, а с чем-то завязана...

21.10.2012
Ответить
Котёна
Спасибо огромное !
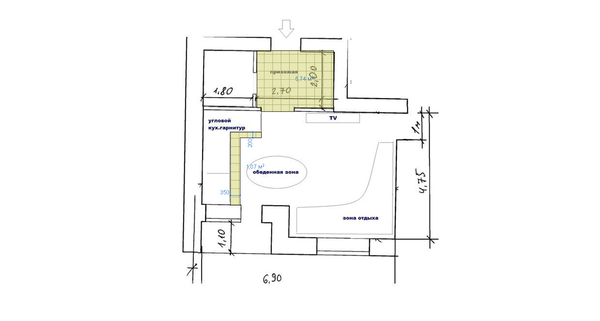
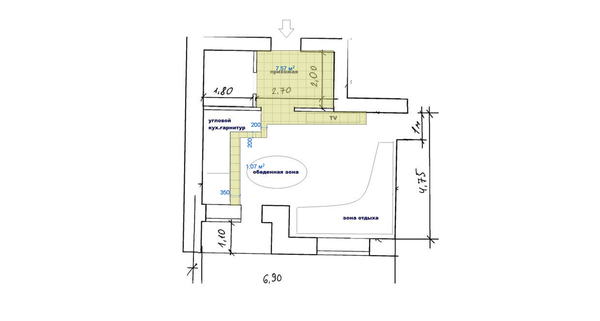
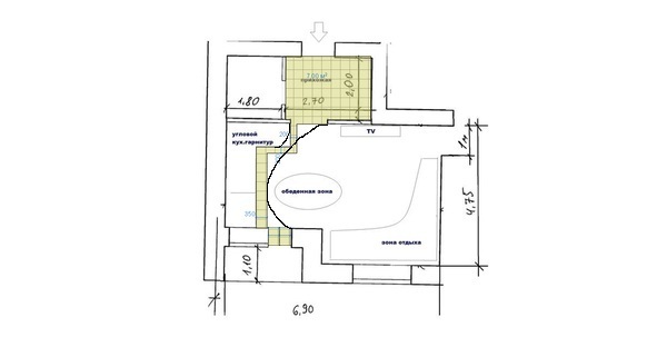
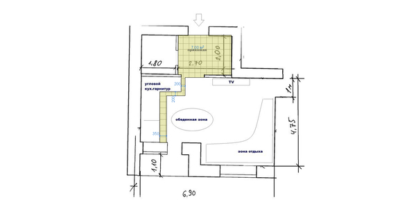
а как вы думаете если сделать кух-гарнитур закругленным и сделать вот такую линию стыка . нормально будет? и как тогда лучше быложить плитку (в клетку, ромбиком) и ламинат (от окна или по диагонали)?
21.10.2012
Ответить
Yuliya (дизайнер интерьера)
кух. гарнитур можно закругленным, но если делать такую линию, то ее надо завязать с потолком, чтобы было гармонично, а иначе эта линия будет не в тему....
И если делать такую линию, то ее надо прорисовать красиво,
плитку лучше ровно, клетку, а ламинат красиво будет по диагонали, направление от входа в угол дивана.
21.10.2012
Ответить
Котёна
с потолком наверно не получится ... решили просто натяжной сделать белый глянец...
а прописовать красиво это как? думала самая глубокая точка должна быть по центру гарнитура... или надо ведь гарнитур на одном расстоянии очертить?
и еще как думаете если пол однополосный выбеленный дуб http://www.babyblog.ru/community/post/housedesign/1702378 то
- плитку лучше в тон или все же контрасную?
- и можно ли брать крупный размер например 45*45 или 60*60... или всеже лучше 30*30 ?
21.10.2012
Ответить
Yuliya (дизайнер интерьера)
Ну дело в том что это же не просто радиус, а кривая, лучше если она с перекликается с линией потолка......я думала, что например то что слева от этой линии будет опуск небольшой, т.е. на кухне и в прихожей в том числе, а то что справа, в гостиной уже натяжной...тогда по краю линии можно светильнички врезать, ..........
Думаю плитку красивее контрастную, но смотря какая у вас вообще идея, может вы все хотите в светлых тонах......и какого цвета сам гарнитур и т.д.....но всегда конечно в интерьере красиво вылядит если он построен на контрасте: темное-светлое, матовое-глянцевое и т.д.
Насчет размера плитки - оптимальный всегда 45*45, но крупный тоже смотрится красиво, но надо смотреть на картину вцелом, потому что может именно в вашем интерьере лучше будет 45...
21.10.2012
Ответить
Yuliya (дизайнер интерьера)
вот например все радиусы как-то друг друга поддерживают....





21.10.2012
Ответить
Котёна
шикарно!!! но дорого (((( и потолки у нас всего 2,5...
на след. неделе замерщики придут, попробую узнать цену вопроса ))) а вдруг )))
21.10.2012
Ответить
Yuliya (дизайнер интерьера)
А не обязательно делать подсветку, можно просто опустить потолок , тем самым зонировать пространство : рабочую зону, обеденную, зону отдыха...
21.10.2012
Ответить
Котёна
Конечно уровни и подсветка это будет очень красиво... но у нас это в разы дороже ((( так что надо ее подумать-просчитать )))))
вообще все хотела выдержать вот в такой цветовой гамме
из материала пока определились с полами и обоями
гарнитур хочу светлый или скомбинировать с каким-то оттенком на панно ( зелень, сирень)
получается пол лучше взять темный?
или все же достаточно уйти на пару тонов?
Как думаете есть ли смысл делать деко того же формата что и плитка?или лучше на такую маленькую площадь только однотон?
из материала пока определились с полами и обоями
гарнитур хочу светлый или скомбинировать с каким-то оттенком на панно ( зелень, сирень)
получается пол лучше взять темный?
или все же достаточно уйти на пару тонов?
Как думаете есть ли смысл делать деко того же формата что и плитка?или лучше на такую маленькую площадь только однотон?
21.10.2012
Ответить
Yuliya (дизайнер интерьера)
Да, если в такой цветовой гамме, то лучше на пару тонов темнее ламината, не коричневую конечно(если зелень или сирень в гарнитуре) Мне кажется пусть лучше одинаковая плитка,без декора, чтоб не перемудрить)))))
21.10.2012
Ответить
Yuliya (дизайнер интерьера)
Пожалуйста!!!))))) Рада, если мои комментарии пригодились)))
21.10.2012
Ответить
МарковкинаМама
есть специальный гибкий порожек-соединитель для соединения как раз плитки и ламината
21.10.2012
Ответить
Котёна
Спасибо! Про порог знаю... Я не могу понять как красиво сделать выклейку и где лучше сделать границу...
21.10.2012
Ответить
МарковкинаМама
недавно прямо где-то на ББ видела такой вопрос. сейчас поищу, там прямо и край такой неровный был, красиво было сделано, необычно!
21.10.2012
Ответить
МарковкинаМама
http://www.babyblog.ru/community/post/housedesign/1698858
вот
фото порожка и как он сделан - В КОММЕНТАРИЯХ к посту
границу между коридором и гостиной полюбому мне кажется делать в проеме дверном
у нас стык линолеумов двух посмещений тоже закрыт специальным порожком железным таким под цвет дверной коробки
21.10.2012
Ответить
Котёна
о спасибо вдвойне!!! я как раз искала эту девушку!!! у нее такой интересный ремонт!!!
21.10.2012
Ответить
