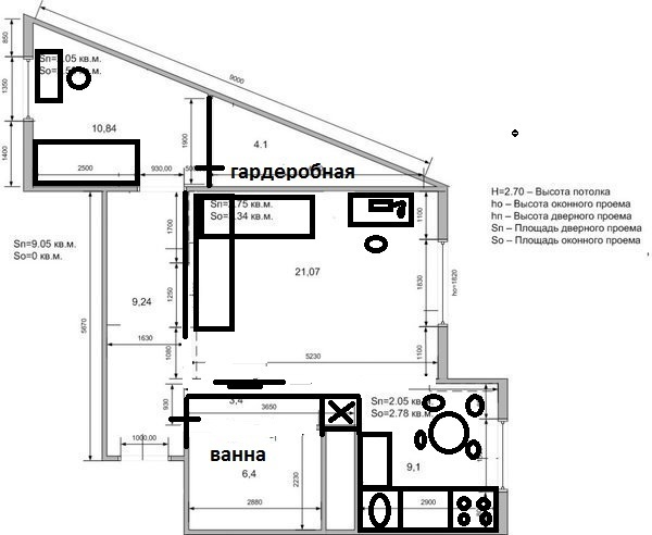
квартира с треугольной комнатой
Интерьерное решение спальниЗдравтсвуйте! Помогите пожалуйста с дизайном. купили двушку 66 кв.м. с интересной планировкой. теперь не можем определиться с дизайном. Хотим из треугольной комноты сделать детскую спальню. ПОМОГИТЕ ПОЖАЛУЙСТА СОВЕТОМ!!!! ЗАРАНЕЕ ОГРОМНОЕ СПАСИБО!
Марина
У нас похожая квартира, только трёшка! И размер треуголной комнаты 20 м, а угол-кладовка - 5,5. В угллу между кладовкой и стеной комнаты планируем сделать угловой камин, А во второй неправильный угол (возле окна), будем делать на заказ шкаф угловой, параллельно противоположной стене, чтобы немного исправить форму комнаты, но у нас проём между окном и стеной побольше, у нас брольшой шкаф получится!!
И вам тоже можно слевва от входа кровать поставить, у окна столик или парту, в уголочке встроенный шкаф, а по остальной стене, спортивный уголок, полочки. И тогда из угла (4,1) можно тоже кладовку сделть.
13.02.2013
Ответить
Fanny
Анна,
В треугольной комнате можно поставить кровать, письменный стол, турник.
Какой возраст у ребенка?
С уважением,
Ольга
White & Black Design Studio
г. Москва
моб. т: 8916-525-33-84
e-mail: olga.chernenko@wb-design.ru
http://www.wb-design.ru/
20.12.2012
Ответить
Еленочка
Ну очень интересная планировочка....! Мы тоже такую трешку смотрели...там кухня и зал - треугольные...Причем заявленный метраж куда-то пропадает в этих сплошных углах...В-общем, мы оказались не креативными...взяли вторичку с обычными прямоугольными коммнатами.
Удачи вам в вашем начинании! руки бы оторвать таким архитекторам
20.12.2012
Ответить
Вика(декор и картины)
У нас квартира треугольник-многоугольник от детского треугольника если можно так сказать отделили острый угол в гардеробную.получилась трапецевидная комната.периодически делала перестановки детской мебели и делаю.там где острый угол можете сделать гардеробную ребенку. У нас практически так же в детской как и у вас.только окно по другому.
19.12.2012
Ответить
Ира
Здравствуйте!
Я архитектор-дизайнер во втором поколении. Опыт работы 9 лет.
С моими работами Вы можете ознакомиться на сайте http://daniel-divari.com
Выполняю весь спектр работ - от эскиза до сдачи проекта в эксплуатацию.
О составе проекта и процессе проектирования подробно расписано на сайте:
http://daniel-divari.com/content/services/2/36
http://daniel-divari.com/content/services/11/45
Ценовая политика у меня гибкая, в зависимости от Ваших требований и пожеланий.
К каждому клиенту у меня индивидуальный подход.
Если Вы заинтересованы - пишите или звоните.
--
e-mail: info@daniel-divari.com
моб: +7 (925) 844 82 52
19.12.2012
Ответить
Bussya
сколько вашему ребенку? если школьник, кровать поставьте около стены 2500см слева от входа, около окна стол и света много и пространство останется
19.12.2012
Ответить
Ariadna
Еслиб я такое чудо сотворила, мне на работе руки бы отрубили) вам нужно перегородки перенести чтобы 2 комнаты с прямыми углами получились
19.12.2012
Ответить
Оставшиеся комментарии доступны после регистрации
Зарегистрируйтесь и получите полный доступ ко всем функциям сайта.
стол можно сделать под заказ угловым с полочками, чтобы зря место не пропадало