Комната на четверых.
Интерьерное решение детской комнатыПривет вам,девочки!
Есть тут обладательницы однушки? как разместиться вчетвером в 1 комнате? . 2 кроватки и диван занимают лишком много места.+ рабочее пространство и шкаф.+ игрушки. Долго думаю, скорее всего летом переделаем немного квартиру. У нас кухня 11 метров.Объединим с балконом. туда либо стол с копом либо детскую. Кухню уменьшим вдвое.Сейчас то все равно мелкий спать рядом будет.
Как лучше организовать спальные места? Может быть есть какие то варианты кроваток с нуля. Что бы и совсем для малыша и старшая( которая сама еще очень маленькая) не высоко была?
Раскажите как у вас. Буду рада фотографиям
Антонина
Может я опоздала, но расскажу как у наших друзей однушка переделана в двушку - кухня переделана в детскую, а в комнату - чаще они с нишей - кухню в нишу и отделяем от спальни столом типа барной стойки., у них правда угловой диван а не кровать - 3 в одном и кухня и гостинная и спальня
получается дети не мешают родителям, родители не мешают детям ( у них кухня была 10 м)
15.03.2013
Ответить
Юлия
Вариант хороший, только вот воду нельзя выводить в помещение вроде бы..но даже если можно то очень сложно((
15.03.2013
Ответить
Антонина
ниче сложного просто из ванной проводятся трубы как раз в ту нишу (у вас там кладовка) а в корридоре трубы как бы под небольшим подиумом типа ступеньки.
незнаю насчет нельзя или можно, но не обязательно соседей оповещать))
15.03.2013
Ответить
АнкА
Мы будем скоро вчетвером в однушке :) Сейчас начали ремонт, в комнате будут 2 кровати детские, наш раздвижной диван, горка под телевизор, мой туалетный столик и пеленальник. Под кабинет утеплен балкон. Все шкафы - купе в коридор (будет 3). На кухне доп спальное место - на всяк пожарный. Если интересно - могу планировку скинуть, фото будет к концу апреля
02.03.2013
Ответить
Наталия (грузоперевозки)
Вот так живем, откуда фоткала там угловой диван. Фото старые сейчас в детской уютнее, вместо коробок с неразобранными вещеми комод с игрушками.


25.02.2013
Ответить
Юлия Комьюнити менеджер
Нужен план комнаты с расставленной мебелью и размерами комнаты, что бы что-то советовать.
Ну и для детей двухярусную кровать или рассмотреть откидывающиеся кровати, кресло-кровать, диван-кровать.
25.02.2013
Ответить
Елена
Добрый день , Юлия !не подскажите проверенные фабрики откидывающих кроваток , очень хочу для своей дочки преобрести !заранее большое Вам спасибо!!!
у автора поста прошу прощения , что влезла
13.03.2013
Ответить
Елена
В "Полосатой лошади" найдется много интересных решений вашей проблемы...
www.sellfabrika.ru
размер можно изменить на нужный именно вам, если заинтересовало, отвечу налюбой вопрос 8 916 254 73 01


28.02.2013
Ответить
Юлёк
тоже предстоит ремонт в однушке....пока из всех вариантов для себя выбрала что-то вроде этого
только вместо спальни будет детская
только вместо спальни будет детская
24.02.2013
Ответить
Катерина
спальня для сна предназначена, а в темноте лучше спится)))))) Мы специально перегородку поставили чтобы кровать от окна отгородить......у нас такая же планировка как на картинке, только мы комнату не напопалам поделили, а только место для кровати отделили (1,60 м) 

24.02.2013
Ответить
Юлия Комьюнити менеджер
Если гостинную и спальню отделить раздвижными перегородками, то она не будет темной. Или даже стеклянными перегородками со шторой. Но мне больше нравится 1-й вариант.
25.02.2013
Ответить
Юлия Комьюнити менеджер
Детская должна быть с окном и светлая! Ребенок должен дышать.Комнату лучше разделить раздвижными перегородками и часть окна пойдет на детскую, часть на комнату, а днем ее раздвигать.Можно еще попробовать перенести детскую в кухню, а кухню так же раздвижными перегородками отделить от спальни.
25.02.2013
Ответить
валерия
Да никого не волнует как там детям дышать будет! Сами в хороших условиях вырасли и поэтому и не думают о плохом, а дети с неврологией и нехваткой еислорода
05.10.2017
Ответить
Наташенька
Мы вчетвером живем. У нас с мужем 2-спальная кровать, у сына Икеевская Гулливер. У дочки пока люлька. Весной на дачу отвезем ее и купим 2-ую кроватку (как у сына).
Диван в прихожей стоит. Моноблок висит над обеденным столом, вечером я за ним сижу когда дети уже спят или фильмы с него с мужем смотрим. У мужа планшет, он с него в интернете сидит.
24.02.2013
Ответить
Алена
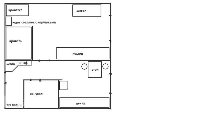
Мы тоже в однушке вчетвером ))) У нас с мужем кровать (не люблю на диванах спать), у старшей диван (временный, скоро обычную кровать поставим) и мы его никогда не складываем, младшая в детской кроватке спит. У стены рядом с кроватью старшей стоит стеллаж с игрушками и книжками. В углу маленький компьютерный стол, но мы за ним не сидим никогда, а с ноутом на кухне размещаемся. Еще два шкафа небольших - один мой с одеждой и один книжный. И два комодика - побольше для вещей старшей, поменьше -для мелкой. Это все в комнате. А на кухне столик и стульчик рабочий для старшей (рисовать-лепить), стул для кормления младшей, стиралка, обеденный стол и сам кухонный гарнитур. Еще в коридоре большой шкаф для одежды. Вото как-то так разместились )))
24.02.2013
Ответить