Помогите с планом кухни!!! нестандарт...
Интерьерное решение кухниВсех-всех поздравляю с нашим женским праздником!!!
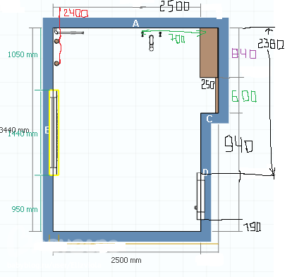
Уже год читаю ББ, летом зависала на ветке с детскими комнатами, а сейчас дошел черед до кухни...Прошу помощи в расстановке мебели на кухне.Вроде бы кухня не оч.маленькая, но кмк дело осложняется нишей, которая образуется между несущей частью и венткоробом(то что ближе к двери), а также наличием газа.
Вобщем мой моск отказался работать, как можно, используя нишу, разместить все.
Дано - семья 4 человека, 3 взр.1 ребенок 4 года, планируем в недалеком будущем еще ляльку. Хочется немного отделить обеденную зону от зоны кухни, т.е. кухню сделать угловую, соответственно по стенам где коммуникации, и где ниша. А стол поставить по другой стене.
Холодильник будет невстроенный(уже есть, 60, высота 190). Стиралки на кухне не будет. По остальным пожеланиям - будем ставить ПММ 45см, варка газовая, духовка электро, все встройка. Микра отдельная.
Хочется максимально оптимизировать низ кухни - т.е. выдвижные ящики обязательно. Вытяжку встроенную наверное будем брать.
Помогите пожалуйста!!!!!





