А согласовывать ли?

Добрый день! Наткнулась на вашу запись и очень заинтересовало . Какой итог ? Дело в том , что мы тоже собрались у кухни кусочек к туалету присоединить . И проем дверной в несущей стене подвинуть на 50 см. Вы смогли утвердить ?
27.12.2015
Мы утверждать не стали. Кусочек кухни, и я думаю не проблема. а вот проем передвинуть вообще незаконно. Нам не разрешили увеличить на 10 см проем в несущей стене. Управдом кипиш подняла. Мы бумагу подписывали об ответственности
27.12.2015
Спасибо за ответ
27.12.2015
Странные вы) вначале нагородили без разрешения архитектора и инжинире, а потом спрашиваетк!) если вы своими действиями привели дом в аварийное состояние-отсудить могут! К вам уже приходил инжинер проверять послеремонтное состояние?
05.04.2013
У нас очень опытный дизайнер, так что аварийное состояние практически исключено. Сейчас ищем экспертов, которые могут подтвердить. Ремонт в начальной стадии .так что оценивать еще нечего  
05.04.2013
Тогда не понимаю смысл вашего вопроса) на чем этот монолит держится) раз у вас опытный дизайнер))возможно это риторический вопрос...
05.04.2013
Хочется перестраховаться))
05.04.2013
Ого намудрили!Наверно красота будет не земная)))
05.04.2013
Даааа!!!! Я в предвкушении! И отменять перепланировку нельзя, тогда весь смысл проекта теряется. Я обязательно потом выложу фото до, проект фото после))
05.04.2013
Очень интересно!
05.04.2013
Конструктора всегда делают монолит с запасом прочности, ак что не рухнет думаю, а вообще конечно караул, если в вашем доме все так сделают то жить в доме опасно будет!) а про монолит не очень поняла, вы говорите что на балконе небыло монолита а были кирпичи.
05.04.2013
У нас по вертикали 10 этажей, многие сделали ремонт и через окна видно, что не сносили стену. На балконе не было монолита, это я про другую стенку)
05.04.2013
То что присоединились часть кухни не страшно, главное жилые комнаты нельзя. Это вам согласуют. Можно даже санузлы переносить в другое место но делать подъем под с/ у чтоб отток был по трубам.про монолит, правильно ли поняла что в стене вместо одного проема в метр шириной, у вас 2 теперь и тот что уже был вы его увеличили? Ух вот это действительно косяк! А все остальное норм, а монолит не согласуют думаю, хотя сейчас за деньги все возможно
05.04.2013
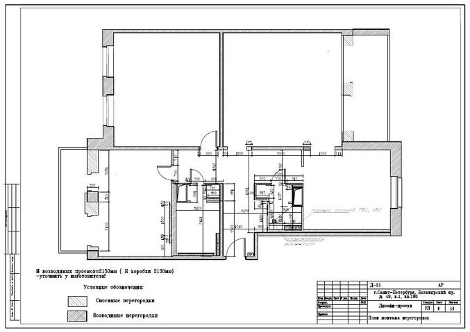
К сожалению, то не цветной вариант, но может понятно, балкон слева - там стеклянная перегородка, балкон справа колонна, ее сохраняем. санузлы увеличены по вент каналы, на плане нет этого .но левый санузел немного двигаем в сторону кухни. и напротив левого санузла стена с гостиной .на см 30 левый проем увеличиваем, правый умееньшаем на 30 см .чтобы они симметричны были
05.04.2013
Только с монолитом косяк а так все реально и не так уж криминально, конечно сейчас надо согласовывать даже перегородку сносим/ возводим, но это просто формальность, главное это несущие конструкции которые могут нанести потери в устойчивости и прочности здания, но если вас таких передельщиков не много не страшно.
05.04.2013
Спасибо, успокоили! Я так понимаю, реально согласование необходимо для дальнейшей продажи квартиры ну и для собственного спокойствия?И блин, я лево-право перепутала!)) левый балкон с коллонной, правый - стекл перегородка. Правый санузел расширяем в сторону кухни и напротив же него монолитная стена, которая прете опекает изменения
05.04.2013
Что перепутали я поняла))) только подумала что вы лицом к выходу стоите и поэтому у меня лево а у вас право. Сложно согласовать монолит тк вы не просто проем расширили а еще и один добавили...а так не вижу никаких сложностей в остальном
05.04.2013
Нет-нет, там по плану 2 проема, мы один расширяем, другой уменьшаем 
05.04.2013
Тогда не страшно думаю, согласовать можно ) так что описали вы все гораздо хуже а на деле все и не так криминально. Люди и не такое проделывают)
05.04.2013
согласование для продажи больше не нужно, теперь БТИ не требуют )))
09.07.2013
Про перепланировку, помогите пожалуйста. Вырезать мусоропровод - куда сначала бечь?