Планировка однушки. Как лучше сделать?...
Перепланировки стен. Согласование перепланировки квартир и нежилых помещений.Всем добрый день!
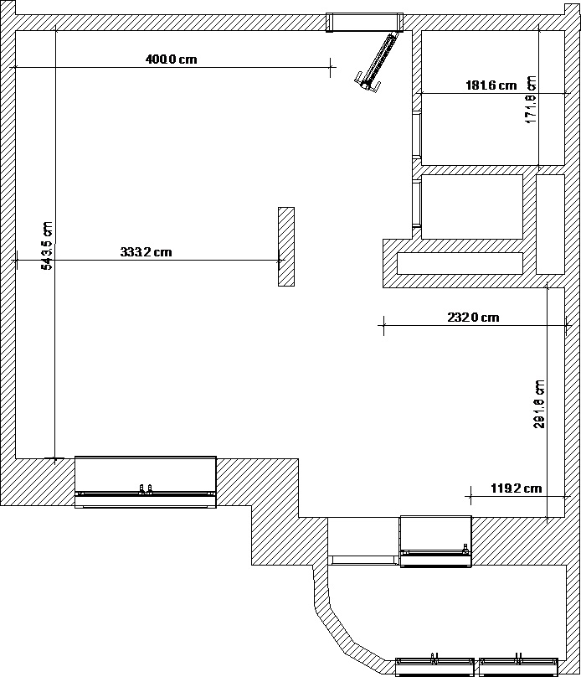
Есть однушка в новостройке. Вот план:

В центре столб, длиной 1 метр, который сносить нельзя. Остальное - конструяч себе на здоровье, сколько душе угодно!
Кухня - чуть больше 11 кв. м, комната 18 кв.м.
Буду жить там с ребенком дошкольного возраста. Планирую пожить в этой квартире максимум года 3-4. Не больше... То есть, ребенок будет еще маленький, когда оттуда запланирую съехать, и планировку нужно делать не на большую перспективу.
Есть несколько вариантов. Никак не могу выбрать саму концепцию, чтобы дальше уже разрабатывать ее и детализировать.
Скажу сразу, цветовое решение и наполнение пока не определяла. Сначала хотела бы разобраться со стенами, перегородками и дверями.
Будет точно детская кроватка для ребенка 3-7 лет (скорей всего, небольшой комплекс с ящиками для игрушек и столом), будет диван мне любимой, будет большой шкаф-купе, где буду хранить все барахло. Причем хочу сделать один большой склад, а не много-много маленьких шкафчиков, размазанных по всей квартире. И хочу оставить побольше места на полу для игр ребенка.
Итак, вариант раз:

Сделать отдельную глухую комнатушку с принудительной вентиляцией и использовать ее как спальню для себя и ребенка или, если появится мужчина, только для ребенка, а самим перебраться в гостиную, совмещенную с кухней (диван раскладывается). Тем самым имеем большую студию с автономной комнатой, куда можно закинуть детку на время сна, когда самой не спиццо или нужно поработать.
Видела такую планировку у знакомых (муж с женой и ребенок). Но не очень уверена, удобно ли будет мне в такой жить.
Вариант два:

Сдедать хорошую такую гардеробную комнату и запихать туда ФСЁ! А на остальной площади - детская кроватка и мой диванчик. Тоже сделать студию, а если нужно отгородиться от ребенка, то поставить раздвижную дверь из трех секций, которая бы убиралась за столб. Ну или на крайний случай повесить занавеску шумо и свето непроницаемую (поговаривают, такие существуют).
Вариант три:

Сделать дверь перед столбом, а границу с комнатой сдвинуть в сторону комнаты. Тем самым ребенок будет полностью изолированный, в нишу можно будет поставить шкаф и скамью для приема пищи или работы за компом. Площадь кухни увеличивается. Но не нравится то, что открыт из коридора вид на спальное место. И еще, если я готовлю, то буду бегать периодически в комнату и смотреть, чем занят деть. То есть, он не перед глазами...
Вариант четыре:

Похож на вариант два, тоже с раздвижной дверью (просто в программе ее не нарисовать, поэтому нарисовала вот такую распашную, но ее точно ставить не буду, некуда распахиваться, будет именно раздвижная), только не делать гардеробную комнату, а ограничиться шкафом-купе поглубже, чтобы туда можно было вместить побольше всего.
Преимущества такого варианта в том, что я могу уединиться на кухне тогда, когда захочу. Просто закрыв дверь. Ребенок и я спим на свету. Когда я на кухне, ребенок в пределах моей видимости. Но с другой стороны, если я захочу перед сном телек посмотреть или повязать, то либо сидеть на кухне, либо сидеть в наушниках. Да и детка будет отвлекаться, что телек горит...
Либо внутри комнаты сделать какую-нибудь перегородку чисто символическую?
Не знаю, какой вариант выбрать... Буду рада любым советам! Чем ближе к ремонту, тем больше вопросов...