Возможно кто то сталкивался и есть примеры, фото, картинки
Интерьерное решение кухниПриобретаем двушку, и у меня возникла идея возникла, в большой комнате сделать гостиную с кухней , а в освободившемся помещении (где должна была быть кухня) сделать спальню. Вот интересны идеи в жизни кухни-гостиной без снесения стен. Заранее спасибо .
А это и есть та большая комната. 
ЮЛИЯ
А мы будем делпть так http://www.babyblog.ru/community/post/housedesign/1716831
18.09.2013
Ответить
Livi
У родителей большая трешка 100м. Нас 2 детей. Родители объединили зал с коридором и сделали там кухню, те гостиная проходная стала, но зато появилось 3 отдельных спальни, одна из них - бывшая кухня.Мы не живем с родителями. но когда приезжаем со своими семьями или только наш ребенок в гости, а это бывает часто, то у каждого есть своя комната со своим шкафом, вещами и никто не спит в гостиной Очень удобно.Но, если вы в будущем планируете расширять жилплощадь, то лучше так не делать.Хотя, мои родители согласовали эту перепланировку, кстати;) Вариант который вам предложила девушка с изменением кухни в кухню+гостиную я считаю оптимальным
14.08.2013
Ответить
Алена
Лучше лишнюю сумму от ремонта (если что останется) отложите на трешку, отпуск и другие более полезные вещи. Коммуникации придется тянуть+насос+пол нужно поднимать, рано или поздно трубы засорятся, хотя если сами долго не планируете жить в ней, то все проблемы лягут на плечи нового владельца. Не рекомендую.
13.08.2013
Ответить
Софи
Вот такая . Как Вы уже поняли , кухню с гостиной хотим сделать в большой зел. комнате.
13.08.2013
Ответить
Bussya
как вариант оставить мокрые зоны на зоне бывшей прихожей. а вы точно не хотите стены двигать, можно было бы вам спальню с гардеробной сделать и не тянуть коммуникации.
как вариант оставить мокрые зоны на зоне бывшей прихожей. а вы точно не хотите стены двигать, можно было бы вам спальню с гардеробной сделать и не тянуть коммуникации.
13.08.2013
Ответить
Алина
Вам не разрешат такую перепланировку!!! Кухню, ванну и санузлы нельзя располагать над жилыми комнатами. Даже если сделаете, заставят переделывать.
13.08.2013
Ответить
♥ღ♥Машулькин ♥ღ♥
у нас тут на бб две девушки так делали и показывали результат.
13.08.2013
Ответить
Виктория
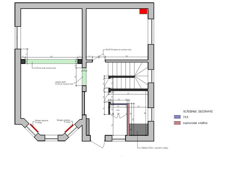
Мы так делаем сейчас, предлагаю мой план перепланировки, вдруг пригодится)) Единственный нюанс - у нас частный дом и газовая колонка (она показана красным квадратом, там раньше была кухня), Решили ее не переносить из этой комнаты - в шкаф поместим. Но, чтобы перенести газовую плиту - пришлось перевести весь зал в нежилое.
Мы так делаем сейчас, предлагаю мой план перепланировки, вдруг пригодится)) Единственный нюанс - у нас частный дом и газовая колонка (она показана красным квадратом, там раньше была кухня), Решили ее не переносить из этой комнаты - в шкаф поместим. Но, чтобы перенести газовую плиту - пришлось перевести весь зал в нежилое.
13.08.2013
Ответить
Виктория
Слева большая комната - это и есть кухня-гостиная. Зона гостиной с эркером
13.08.2013
Ответить
Авочка (декор из дерева)
Мокрые зоны переносить нельзя. Если только вы будуте всю жизнь с незаконной перепланировкой. Продать такую квартиру вы вряд ли сможете.
13.08.2013
Ответить
Марина
Это- незаконно. Сама так планировала, пока не начиталась про последствия. Представьте соседей снизу-они (в спальне) слышат всю Вашу кухонную деятельность-я б тоже решала этот вопрос)))))
13.08.2013
Ответить
Софи
По поводу слышимости, мы например не слышим кухонную деятельность у соседей сверху , так же живем в новостройке. А кто то слышит над своей кухней соседей?
13.08.2013
Ответить
Марина
Я слышу, Софи. И поэтому вопросом звукоизоляции занимались серьзно.Приехав в квартиру,зашла к соседям, они сказали, что слышимость потрясающая, надо изолировать и пол и потолок.
14.08.2013
Ответить
Kate
А Вы слышите кухонную деятельность соседей снизу, сверху? Никогда не слышала...
13.08.2013
Ответить
Марина
Я-слышу. Поэтому представила, что после переноса ,встав в 6 утра,буду готовить завтраки,собирать мужа,детей,включая телевизор,миксер, буду мешать тем, кто в это время еще спит в своих спальнях над и подо мной! Или наоборот, мы уже будем отдыхать, а кто-то отбивнухи делать! Или у них пол выложен керамогранитом, и постоянно что-то на пол летит,стулья громыхают...У меня такая же планировка(П 111м). После долгих мучений мы решили оставить все,как есть. Кухня большая,наши гости поместятся, девочкам отдаем большую комнату-к ним будут приходить подруги, нам с мужем-спальня.
14.08.2013
Ответить
Kate
Если такая слышимость, то , наверное, слышно будет не только кухонную деятельность, но и спальную! Уж лучше миксер!
14.08.2013
Ответить
Марина
Люди принимают пищу 2-4 раза, в два раза больше уходит время на готовку(читай-топтание у плиты и мойки),потом уборка,а еще посиделки... А интимная жизнь..,ну если не медовый месяц молодоженов, то -2-3 раза в неделю по пол часа))))
15.08.2013
Ответить
Kate
Да Боже ж мой, если у Вас слышны и прием пищи , и топтания у плиты, и уборка, и посиделки, так надо звукоизоляцию делать в первую очередь. И неважно, что будет над вами, под вами, кухня или спальня. А если над вашей спальней детскую сделают и будут детские крики , а если там молодежь шумная, так что ж теперь строго над спальней делать спальню, над гостиной гостиную? В общем, звук здесь не аргумент!!!
15.08.2013
Ответить
Софи
Ну я правда не разу не слышала над нами соседей, хотя и жила в разных домах. Теперь даже стала ,реально, прислушиваться, а вдруг и правда слышно, но нет.
15.08.2013
Ответить
Екатерина
У меня подруга так делала... Купили однушку в строящемся доме, и она еще на этапе строительства договорились с рабочими, чтобы ей канализацию в комнату провели, а в кухне они сделали спальню. Кстати продали ее без проблем потом. Может возникнуть проблема только если по ипотеке продавать. Только вытяжка нужна хорошая!!!
13.08.2013
Ответить
Оставшиеся комментарии доступны после регистрации
Зарегистрируйтесь и получите полный доступ ко всем функциям сайта.

