2 к хрущевка на 2 этаже
Перепланировки стен. Согласование перепланировки квартир и нежилых помещений.Посоветуйте по вариантам, семья 3 человека, 2 взрослых,1 ребенок
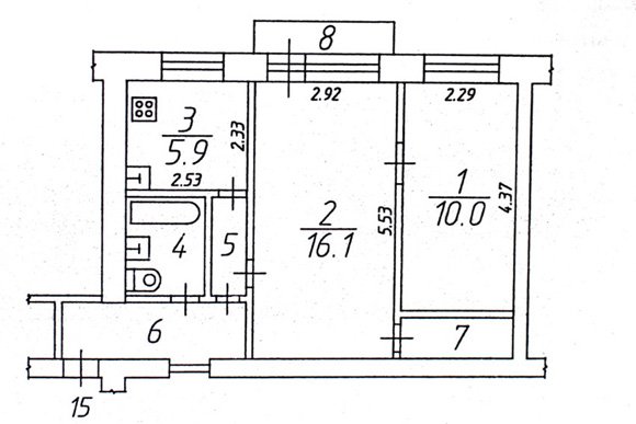
изначально хотели так как на рисунке.
">
( данный момент ни одной стены внутри квартиры нет!). гипсокартонщик через неделю придет. Вот и я терзаюсь и метаюсь(
с одной стороны очень хочется спальню себе, с другой с ребенком , которому 2 года и он растет - совмесстная спальня глупость, тем более метраж квартиры не позволяет иметь большую спальню, (общая площадб квартиры 45 квадратов) маленькие клетушки без окон кроить не хочетс (хотя пыталась. Но это как в басне "а можешь 7 шапок из одной овечьей шкуры сшить"? .. ну вы поняли. Очень я грежу камином. прям очен-очень (электро , разумеется. Ну или био.. ну или декоративным)
сегодня осенила меня мысль, когда я просматривала фото гардеробных (изначально из спални шла внушительная кладовка, по плану БТИ)
">
а не сделать ли гардеробную.. -тоже мечта (на месте где была кладовка и на месте где должна была бы быть кровать...)
. Вообщем , посоветовались с мужем и решили, что совместное проживание в одной спальне с дочей через год максимум закончится. И мы переедем в зал. Вот и подумали, а может сразу?))) сделать большую гардеробную, за счет спальни.Только вход из нее будет из зала (раздвижная дверь). У дочки будет своя небольшая комнатка с окном (9-10м). А себе в зале поставим оч хороший диван и откажемся от шкафов))))) места будет... мммм)))) и кухня рядом и кино посмотреть и ванна под боком))) Что думаете?
стало 
