Как правильно расставить мебель?
Интерьерное решение гостинойДевочки, посоветуйте, как лучше расставить мебель в зоне кухня-гостинная-прихожая, чтобы удобно и практично))
Заранее спасибо!!!

дизайн ONLINE (бюджетно)
да, присоединяюсь к вопросу: назначение комнат, кто будет жить, коммуникации и основные пожелания - без этого вам вряд ли понравится, то, что предложат.
08.09.2013
Ответить
Татьяна (дизайнер)
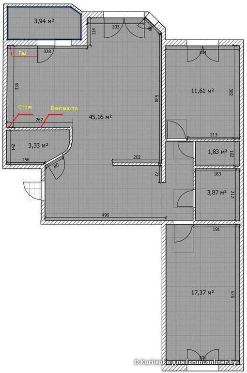
А где у вас стояк хол. и гор. воды, фан. труба, вент. каналы? Какие стены не являются несущими и что вы хотели получить от всего помещения по функционалу ( ск-ко человек, ск-ко комнат, быт. техника и проч).
08.09.2013
Ответить
Natysik
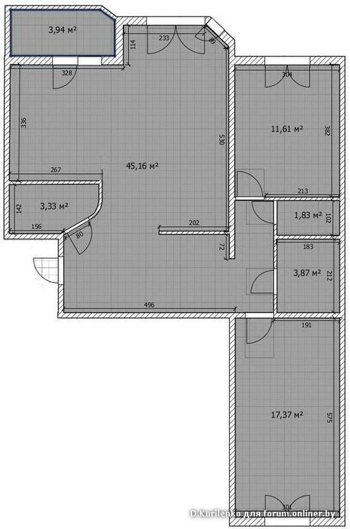
На фото указала где стояк с водой, газ и вентшахта. Квартира находится на 9 этаже (последний), окна выходят на северную сторону. Приобрели эту квартиру в новостройке с уже сделанной перепланировкой, особо ничего уже ломать неохота, нужно что-то придумать с уже готовой планировкой. Семья состоит из 4-х человек, детей двое (девочки 1 и 3 года). Зону гостинной не знаем как обустроить, чтобы было удобно. Из мебели нужна кухня, обеденный стол, мягкая мебель, телевизор, вообщем загромаждать ничего не хочется. 

08.09.2013
Ответить
