СОВМЕЩАТЬ ИЛИ НЕТ?
Всё о полах , стенах, потолках и материалах для нихКак вы думаете, стоит совмещать сан.узел или нет. Если да, то какую дверь закладывать туалета или ванны? 
Марина
Если совмещать санузел, то закладывать ближнюю ко входу дверь, чтобы можно было разойтись людям при входе.А вообще, я бы отодвинула немного стену гардероба от входа, чтобы можно было туда поставить либо комод, либо шкаф для обуви, либо стул. В общем, чтобы можно было кинуть вещи или обувь при входе сразу.
11.09.2013
Ответить
Ольга
Оставить дверь туалета и совместить, у меня тоже так, выходишь из ванной и в грязь,хотя я ору на всех, чтоб обувь убирали, и вытираю, не удобно так.
10.09.2013
Ответить
Забава
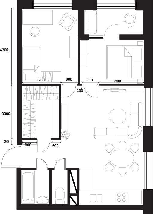
и почему народу так нравится выходить из ванной перешагивая через обувь и коврик для обуви?)))) я бы оставила дверь, которая в туалете сейчас.Пы.сы: планировка классная, это вы так нарисовали или застройщик предлагает?
09.09.2013
Ответить
Селия
У нас квартира свободной планировки, рисовали сами, благодаря усилию ББ и бесплатной консультации дизайнера в Экспострое
09.09.2013
Ответить
Наталья
35 лет прожила с совмещенным су - не страшно. Вот как 6 лет имеем новострой с 2 мя отдельными су ( хозяйский и гостевой) , и что вы думаете, куда ходят на толчок все живущие в квартире? в отдельный или в общий?? Так еще и в очередь встают и это при свободно втором сортире..---Про дверь, не одна и не вторая .делайте новую( мб по средине там где сейчас стена) , под новую растановку старайтесь сохранить 4 угла тк можно и манину впихнуть и вещи повесить не на проходе .
08.09.2013
Ответить
Маруська
как человек,поживший с раздельными и со совмещенными я за совмещенный, заложить дверь в туалет, напротив унитаза войдет стиралка. перегородку до конца не сносить,оставить стенку,чтоб отделяла унитаз от раковины. можно вообще там шторку повесить для особо стеснительных особ))))
08.09.2013
Ответить
Юлия
если ванна позволяет, я бы поставила еще один унитаз)))) У нас знакомые так сделали, сразу решилась проблема с читающими в туалете членами семьи))))
08.09.2013
Ответить
дизайн ONLINE (бюджетно)
лучше оставить дверь напротив унитаза. в таком случае можно поставить , например, угловую ванную. а вообще лучше сразу распланировать все: где стиралка, ванная/душевая, умывальник и место для хранения. Или еще унитаз и биде - все ваши предпочтения, а потом уже планировать какую дверь оставить удобнеееще размеры учитывать для всего и чтобы доступ к стиралке той же был удобный. Ну и плюс куда, что удобнее прокладывать из коммуникаций.
08.09.2013
Ответить
Добрый Вечер)
я ы однозначно совмещала и оставляла дверь напротив гардеробной. Разделся-сразу зашел.
08.09.2013
Ответить
Светлана
Если совместить и заложить дверь туалета, то в угол прекрасно встанет стиралка. Я всю жизнь прожила с совмещенным (в семье 5 взрослых чел) и проблем не было. Чтобы "не спичило пока кто-то в ванне" надо спрашивать перед мытьем "кому в туалет?" и спокойно мыться =) Но если вы вместо ванны планируете душевую кабину и стиралка поместиться в ванне - то тогда можно и не совмещать.
08.09.2013
Ответить
Оставшиеся комментарии доступны после регистрации
Зарегистрируйтесь и получите полный доступ ко всем функциям сайта.