Гостиная-детская
Интерьерное решение гостинойИмеем однушку,комната 21.6,как в ней расположить и детский уголок,и гостиную и все остальное. 
Может у кого есть какие идеи или есть квартиры похожего типа?
Наталья Гончарова (архитектор)
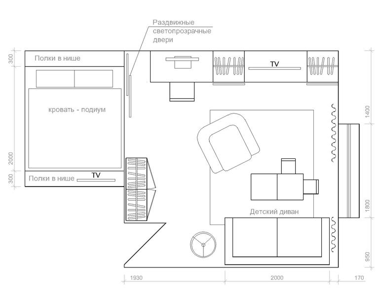
Вот вам вариант, где зоны спланированы иначе. Кровать на подиуме имеет полки в изголовье и изножье - полноценное спальное место для родителей, которое можно спрятать за раздвижными перегородками,если пришли гости. Там найдется место для второго TV. Все-таки каждый день раскладывать диван очень утомительно, обычно он стоит разложенным и занимает всю комнату. Детская зона у окна.
10.09.2013
Ответить
Natalka
У нас очень часто бывают гости и мы своей компанией сидим в этой комнате,не очень удобно получиться сидеть на детском диванчике!лучше все таки нишу выделить для ребенка как отдельный уголок
10.09.2013
Ответить
Фуксия
У нас такого типа комната, даже меньше) Фотку скинуть не могу сейчас, правда) Сложно посоветовать, как именно сделать - зависит от мебели, какую вы выберете...Вот здесь я как-то писала пост, там есть фотки "взрослой" части)http://www.babyblog.ru/community/post/housedesign/1719617А детская часть отделена шторой блэкаут на вечер/ночь, а так -общая комната..Единственное - как такой гостиной у нас нет, так как мы решили ставить кровать, а не диван.
10.09.2013
Ответить
дизайн ONLINE (бюджетно)
Вот, набросала по-быстренькому пример. (мебель почти вся из икеи). Только в детской зоне я бы советовала обои другие, чтобы дополнительно подчеркнуть назначение "комнатки") еще туда обязательно нужно свет дополнительный. Если вы планируете ремонт то можно еще потолок обыграть, чтобы вписать шторку легкую между зонами комнаты. на окно можно римскую штору сделать, а не обычный тюль и гардину.Если нужно, обращайтесь. Работаю удаленно. 

Вот, набросала по-быстренькому пример. (мебель почти вся из икеи). Только в детской зоне я бы советовала обои другие, чтобы дополнительно подчеркнуть назначение "комнатки") еще туда обязательно нужно свет дополнительный. Если вы планируете ремонт то можно еще потолок обыграть, чтобы вписать шторку легкую между зонами комнаты. на окно можно римскую штору сделать, а не обычный тюль и гардину.Если нужно, обращайтесь. Работаю удаленно. 


10.09.2013
Ответить
Natalka
Ого,спасибки за такоооой ответ,мне нравиться.У нас угловой комп.стол,но мне кажеться он больше места занимает и я хочу его заменить на прямой.
10.09.2013
Ответить
дизайн ONLINE (бюджетно)
ну часто угловой стол имеет размер около 100 на 100, а у стандартного глубина 60
10.09.2013
Ответить
Oksana
Стенку-горку + компьютерный стол однозначно надо поменять местами с угловым диваном! 

10.09.2013
Ответить
