Как всё уместить в санузел
Интерьерное решение ванной комнатыПривет, девочки! В конце следующей недели начинаем ремонт. Прошу помощи с расстановкой
Всю голову сломала как лучше расположить все нужное в санузле (может он и не самый маленький 4,2, но...все равно кажется маленьким)
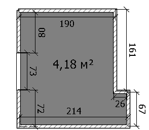
План санузла

Где углубление 26х67см - там трубы, будет люк. Счетчики на высоте 73 см от пола
Что необходимо разместить:
1.ванна - хотелось бы не 150, а хотя бы 160 см
2.унитаз обычный, неподвесной
3.раковина (не самую маленькую)
4.стиральная машина (хочу большую кг на 6-7)
ну и если возможно еще и какую-нибудь колонну впихнуть только за
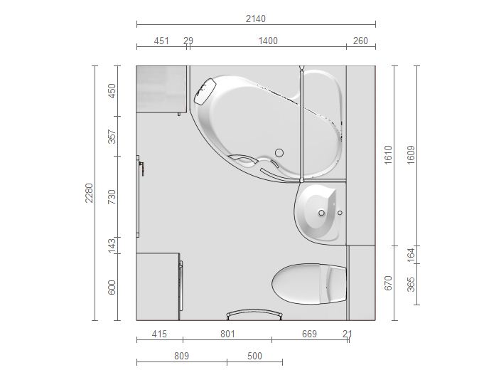
У меня вот два варианта:


Второй вариант наверное удачнее? Может кто еще какой вариант подскажет?
А если во втором варианте между раковиной и унитазом колонну впихнуть - только загромождение получится?
Заранее спасибо всем не прошедшим мимо!

