HELP!!!!!!!
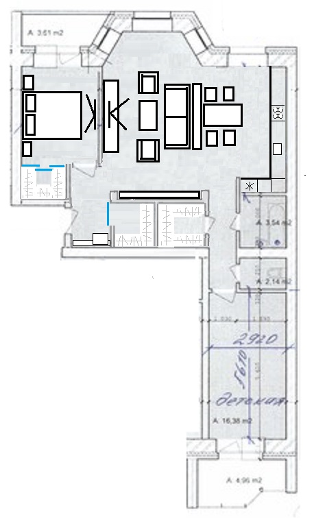
Перепланировки стен. Согласование перепланировки квартир и нежилых помещений.Ну вот и у меня появилась квартирка, только правда планировка не очень нравится, особенно коридор у меня вызывает ужас- длинный высота 2,7 м шахту напоминает. На форуме похожих нет. Хотелось бы получить советы как сделать квартирку с изюминкой . Живем 2 взрослых и лапочка дочка. Мечтаю о большой гостиной с кухней но не могу зонировать пространство ничего в голову не идет. Снятся уже эти перегородки......
Aleksandra www.aleks-design.ru
На мой взгляд решение лежит на поверхности. Как и в большинстве подобных случаев я всегда перестраиваю линии движения от входа, изолирую прихожую и заставляю работать коридор. Не нужно бояться общего пространства кухни-гостиной. Смело открывайте красоту и воздух! Не нужно никаких проёмов и перегородок! Убирайте перегородку полностью. Стиль не играет роли. В классике и провансе масса примеров красивого решения общих пространств и зонирования. Плюс на забываем поработать с потолком и освещением. 

22.10.2013
Ответить
Aleksandra www.aleks-design.ru
Однозначно нужно делать перепланировку. Коридор не работает, кишка вытянутая.Евгения, есть возможность показать план в лучшем качестве? Со стояками и обозначениями несущих? Уж очень хотелось бы, чтобы несущих не было, но скорее всего перегородка у вас одна единственная - между коридором и комнатой с эркером. Очень похоже на П-44М, но не оно. Что за тип дома?
21.10.2013
Ответить
Евгения
Дом кирпичный,перегородки из кирпича не несущие,сейчас отсканирую план и рукой подправлю 

22.10.2013
Ответить
Евгения
Хочется коридор полноценный с системой хранения, но не хочется перегружать, и самая главная проблема совместить кухню с гостиной , т.к стиль квартиры классика с элементами прованса в голову не идет форма этой перегородки или проема.Вот так вот заезжать в квартиру в декабре, а ремонт ёще не начат нет идей, и страшно ошибиться ,т.к. был уже неудачный ремонт в нашей практике,а здесь чистый лист пространство для творчества поэтому и HELP!!!!!
22.10.2013
Ответить
Анна
не меняйте ничего, у вас классная планировка. коридор не узкий, вдоль всей стены шкафы выставите, можно даже зеркальные, глубина 45 см вполне!а у входа банкеточку с зеркалом - супер будет
18.10.2013
Ответить
Lika
Я бы не стала делать перепланировку. Вдоль длиной стены в коридоре поставила бы шкафы купе до потолка, а на стены около входа в большую комнату повесила бы большие зеркала. Размеров не видно, но кухня вроде бы и так большая.
17.10.2013
Ответить
Алла Арт терапевт психолог
Обращайтесь,можно сделать перепланировку,чтобы не было длиного коридора.
17.10.2013
Ответить
Наталья
И у нас похожая планировка, только комнаты поменьше, так мы перенесли стену из коридора в ту комнату, которая по середине, у нас гостиная, и получили большое место в прихожей для втроенного шкафа с зеркалами и еще один шкаф поставили в дальнем коридорчике напротив санузла...Очень удобно...Но хочется ещё и объединить кухню с гостиной, но у нас гости бывают...как-то не очень гостям на кухни спать...так что это только планы...
17.10.2013
Ответить
Викторинка
У нас планировка похожа, балкон один только. И у нас стена между кухней и гостинной несущая, поэтому убать ее не удасться, вам нужно начать с проектого института или бюро, что есть поблизости. Там для начала скажут, что можно убирать - переносить и т.д. Там уж и думать будете. Мы убрали стену между коридором и гостинной.
17.10.2013
Ответить
Людмила
а лифт у вас в доме есть? на плане вроде бы нет. у нас на кухне очень слышно как он движется, я бы у входа спальню делать не стала, ну или звукоизоляция в помощь.
17.10.2013
Ответить
Светик
Тут конечно на любителя, но я бы:- снесла перегородку между кухней и гостинной. - вход в ближнюю спальню сделала бы из гостинной. - Коридор расширила бы за счет гостинной и спальни. Так бы получилась еще кладовочка. и место для встроенного шкафа в спальне.Коридор ( в любом случае) можно разделить на 2 зоны цветом или отделкой. Так он буде не казаться таким длинным. . Если получится, то нарисую и пришлю.
Качество работы - жуть. Размеры подберешь сама( если захочешь). Там где 1. можно либо гардеробную со входом из спальни или встроеный шкаф, опять же со спальни. Там где буква к. Или вообще не делать стену, просто закуток на кухне будет. или кладовочку или увеличить размер ванной комнаты. Теперь коридор будет больше и в одну из стен, лучше ту что примыкает к соседям, можно сделать сплошной встоеный шкаф - прихожку. С зеркальной поверхностью. За счет него коридор еще шире будет казаться и светлее.
Качество работы - жуть. Размеры подберешь сама( если захочешь). Там где 1. можно либо гардеробную со входом из спальни или встроеный шкаф, опять же со спальни. Там где буква к. Или вообще не делать стену, просто закуток на кухне будет. или кладовочку или увеличить размер ванной комнаты. Теперь коридор будет больше и в одну из стен, лучше ту что примыкает к соседям, можно сделать сплошной встоеный шкаф - прихожку. С зеркальной поверхностью. За счет него коридор еще шире будет казаться и светлее.
17.10.2013
Ответить
Евгения
Большое спасибо за варианты, просто насчет шкафа я думала в коридоре ,но т.к стиль гостинной прованс, не знаю какие фасады сделать на нем ,что бы инородным не казался
17.10.2013
Ответить
Светик
Если шкаф вдоль соседской стены, то значит прямо напротив дверей в гостинную. Все будет отражаться. Если сделать филенки в белом цвете, а еще лучше в состареном белом( прованс), зеркальная поверхность с легким узором по краям или углам. То все будет в полной гармонии с г остинной.
18.10.2013
Ответить
Людмила
У меня похожая планировка квартиры, нас четверо, только 74 кв.м. и коридор 1,5*5,4 примерно. Я не стала организовывать системы хранения в комнатах и вынесла все в коридор. Короче вдоль стены у меня встройка до потолка. У входной двери небольшая ниша что позволило сделать прихожую более квадратной, там встал шкаф с раздвижными дверями его глубина 70 см. Напротив зала с распашными дверями и ящиками глубина 50 см. И последний будет книжный, он пока самодельный еще не добрались туда. Плюсы подобного решения больше свободного пространства в комнатах. На ширину коридора остается 1 метр, что тоже вполне достаточно (но когда купили крупную мягкую мебель еле занесли в зал... оказалось что диван почти не разбирается... :( это на заметку) В инете видела еще одно решение (если кухня у входа как и у меня то есть два стояка подводки воды в квартире), сносят стену между залом и кухней объединяют, переносят дверной проем из зала в самый угол комнаты и делают гардеробную в коридоре вход в неё из коридора возле входа или наоборот напротив санузла. Минус подобного решения чтобы пройти в спальню нужно пройти через зал. (но много ли у вас гостей посетят личные комнаты?... может этот вариант и удобен) Соседи под нами снесли стены: между залом и кухней и всю коридорную до спален. Громадное помещение конечно получилось. Минусы: спальни маленькие вещи хранить вообще негде, дети у них разнополые, и так вышло что старший сын теперь живет в зале кухне... Фотки еще не знаю как загружать, я не так давно на сайте, но если будет нужно попытаюсь скинуть.
17.10.2013
Ответить
Оставшиеся комментарии доступны после регистрации
Зарегистрируйтесь и получите полный доступ ко всем функциям сайта.