Совет нужен. Нужна перепланировка
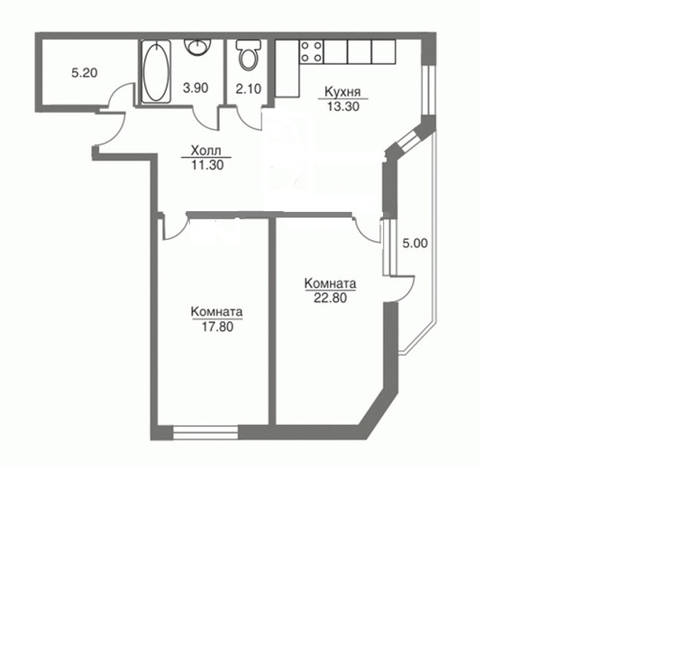
Дизайн-проекты нежилых помещенийВот что мы имеем почти. Нужна перепланировка. Хочу сделать две спальни ( большая детская обязательно и маленькая спальня) и общая зона с зоной кухни. Мыслей пока нет холл большой но как им правильно. Воспользоваться???? 
Вера (дизайн интерьера vera-vasilenko.ru)
О, мы кажется с вами соседи по дому ))Рассматривали мы такую же квартиру как вариант, но купили другую в итоге, тоже двушку.Однозначно себе ту, которая с балконом и в глухом конце отгородить гардеробную. А стенка, которую вы собираетесь двигать - точно не несущая? я бы тогда уже кухню-гостиную объединяла с холлом как-то так: 

05.11.2013
Ответить
Викулина
И идея с нардеробной отличная, про это я не подумала. А в остальном. Стену Вы перенесли тк я и зотела.
06.11.2013
Ответить
Викулина
И исходя из вашей схемы , можно объеденить с/у. И дверь поставить напротив раковины, тогда освобождается еще стена и туда телек , повесить можно, немного сместив к вентел. Коробу.
06.11.2013
Ответить
Галочка
У Вас отличная квартира: очень классная планировка. И есть где разгуляться фантазии))) Я тоже за объединение холла с зоной кухни-гостиной. Пусть лучше спальня поменьше будет, а деткам комнату побольше. Хотя еще на освещенность надо бы обратить внимание.
06.11.2013
Ответить
Вера (дизайн интерьера vera-vasilenko.ru)
освещенность 100% лучше там, где балкона нет. балкон затемняет всегда
06.11.2013
Ответить
Галочка
Я бы для детской более светлую комнату выбрала однозначно! А в спальне много света и не нужно))) Интим все-таки
!
!
06.11.2013
Ответить
Лиза
Межкомнатные стены как я понимаю не несущие?Можно вот так, комнаты остаются не проходными:
Но,я бы ничего не меняла, планировка оч хорошая
Но,я бы ничего не меняла, планировка оч хорошая
05.11.2013
Ответить
Штушакутуша
Если вы сдвинете стену между кухней и комнатой, то в комнату можно будет войти только через кухню, если это детская, то это очень неудобно, да и в спальне тоже. И прежде чем переносить стены, уточните где несущие стены. Дом панельный?
05.11.2013
Ответить
Викулина
1. Хочу сравнять комнаты по одной стене, тем самым увеличить зону кухни. 2. В кухне узкое окно выходящее на балкон заменить на дверь.3. Возможно убрать балконную дверь в комнате. Вопрос: Какую из комнат отдать детям, по площади будут примерно одинаковы, но одна " вдоль" другая " поперечная".
05.11.2013
Ответить
Любаша
Отличная планировка. Кухня большая,комнаты тоже. Я бы ничего не меняла )))
05.11.2013
Ответить
Викулина
Общая зона, тусовать в спальне не люблю, а хочу именно спальню и кровать. Принципиальный момент
06.11.2013
Ответить
катя
если душа требует большого пространства для кухни-гостиной, то почему бы и не сдвинуть? тогда получится детская и спальня, только для вас. А в общей комнате-кухне все смогут собираться вместе по вечерам. Мне нравится.
05.11.2013
Ответить
