Кухня-Студия
Девочки, вот решила тоже поделиться с вами своими нароботками. Значит так: имеем таунхаус "голый", после нового года начинаем делать ремонт. Вроде бы уже свои нароботки я утвердила с мужем и родными, но очень хочу послушать еще ваше мнение, может я что-то упустила, может что-то дельное подскажите, интересно узнать ваше мнение. Выкладывать буду постепенно, начну с первой и наверно для меня самой главной комнаты Кухня-Студия. Имеем 22,5кв.м.
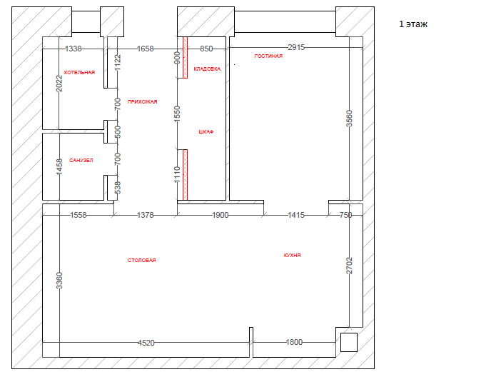
План комнты:

Мои нароботки:
Хочу кухонную мебель по максимому растворить в пространстве.





Что скажите?
Диана
по моему стол слишком близко к дивану -сидеть будет неудобно , а представьте гости придут, два ТВ в одном пространстве тоже лишнее, вы их одновременно все равно не сможете смотреть , планировка кухни хорошая , черная столешница-на любителя...я бы не стала кухню делать буквой П, сделайте ее г-образной в сторону двери, если колонн мало , то можно и на линейку одну вынести, у вас там 4.2 м , это более чем достаточно даже просто для линейной кухни, тогда у вас больше места останется для обеденного стола , его можно будет чуть сместить от дивана в сторону кухни.Это всего лишь мое мнение , с которым вы можете не согласиться , я спорить не буду !Не воспринимайте как руководство к действию.
16.12.2013
Ответить
Анна
Спасибо большое за мнение, со столом подумает, а тв все-таки решили два, конечно их одновременно никто не будет включать))) кухонный тв нужен лично мне при готовки для развлечения)))
16.12.2013
Ответить
Olga.Willem.wrkt
Скажите Анна, Вы использовали программу Planoplan? Она удобна в использовании, ее надо скачивать?
14.12.2013
Ответить
Анна
не особо, но я пока лучше ничего не нашла, поэтому пока пользуюсь ей, но я еще в поиске))))
14.12.2013
Ответить
Olga.Willem.wrkt
Э-э-х. А я вот мучаюсь в поисках нормальной программы с широким выбором ткани и декора. Не получается сделать нормальный проект с шебби-шик (ну или хотя бы с английским стилем) сделать 

14.12.2013
Ответить
Анна
еще вроде 3д макс рекомендуют, тоже хочу попробывать. Да, выбор тканей и декора здесь не особо велик, но все-таки получше чем планета 5Д например)))
14.12.2013
Ответить
Olga.Willem.wrkt
Спасибо, попробую.Вообще современные программы для любителей годны как раз для минимализма, а для декора наверное профессиональные программы.
14.12.2013
Ответить
Екатерина
3д макс для профи, в нем метод научного тыка не поможет. Для построений попроще архикад, потом в иллюстраторе можно любые фактуры натянуть. Но это все проф. программы и нужен опыт)
14.12.2013
Ответить
Olga.Willem.wrkt
Интересное решение, насколько я понимаю это сочетание цвета ореха с белым, плюс сливочного цвета диван. С точки зрения пропорциональности цветового решения - гармонично, жаль детализации мало (близких планов). В столовой зоне предполагается 2 места ?Вы ранее использовали зеркальные черные поверхности в быту?
14.12.2013
Ответить
Анна
ДВ, попробую сделать еще фото поближе. Хотелось бы там уместиль 4 места. Черную зеркальную поверхность не использовала, думаете совсем не практично?
14.12.2013
Ответить
Olga.Willem.wrkt
Я жуткий поклонник минимализма, плюс мое новое увлечение - обожаю шебби шик. Так вот, в части минимализма черные поверхности идеальны, но после того как я купила черный стеклянный стол я уже замучилась с ним. В пространстве где много света любая незначительная пыль на зеркальной поверхности выглядит ужасно. Ежедневное протирание стола в гостиной я не предполагала, купила специальную жидкость (вроде как пылеотталкивающую), но я не в восторге от результата ) ..... следовательно ежедневное протирание супер-тряпочкой. Воздуховоды постоянно нагнетают воздух, идет постоянное движение воздуха в квартире, пыль постоянно, даже после уборки.Плюс моя, казалось бы уже взрослая, дочь не может способствовать поддержанию чистоты, сложные пятна от рагу, забытого чая и т.д. В результате современный интересный черный стеклянный стол в гостиной закрыт банальной скатертью, под которой (противоударная, очень плотная ) клеенка, до полного взросления дочери и перевоспитания мужа ))))). Черная зеркальная поверхность на плите в сочетании с нечистоплотными родными доводит меня до безумия (шутка), но после работы вторая каторга за плитой это слишком. Это неполный список моих неудачных приобретений, так на момент приобретения я думаю и сужу по себе, почему-то забывая что не все в квартире за собой убирают "сразу и качественно ".Поэтому сомнения и трудности не жалея выкладываю вам. Может вы избежите этих проблем. Хотя, может девочки что посоветуют. Ведь у вас загородный дом, значит пыли будет больше (по опыту загородного дома родителей сужу-три этажа убирать это просто мрак - 1-й ежедневно, 2-й и 3 -1 раз в неделю). Попробуйте взять просто темную поверхность венге на кухню.Соседи по лестнице тоже купили черный глянцевый шкаф в комнату дочери, с гламурными стразами. Пойду попозже к ним, узнаю как они упралвяются.
14.12.2013
Ответить
Анна
Ооой, спасибо большое за такой развернутый совет))) Согласна с вами, наверно лучше взять искуственный камень матовый, вот такой нравится
а на счет техники даже и не знаю, а какая еще бывает?))) бывает матовая? надо посмотреть ассортимент)
а на счет техники даже и не знаю, а какая еще бывает?))) бывает матовая? надо посмотреть ассортимент)
14.12.2013
Ответить
Olga.Willem.wrkt
С удовольствием. Вот этот вариант мне очень понравился, возьму себе на заметку, тоже собираемся с мужем менять столешницу на другую, хотя после ремонта прошло 4 года. На счет техники не знаю, сделайте отдельную тему по поводу удачного использования зеркальной поверхности, может у кого-то и был положительный опыт.
14.12.2013
Ответить
Olga.Willem.wrkt
Спасибо, теперь многое видно. Если не будет ярких источников света над черными поверхностями, либо они будут индивидуальными (а у вас я их не вижу) например отдельный над варочной панелью, над раковиной и т.д., то вроде ничего. Кстати, приобрели мы кожаный диван. В целом лучше, чем с материалом, но на нем мне было холодно, особенно осенью (когда не включили отопление), мужу неудобно ногам, неприятно. В результате докупали плед, специально для дивана )))))))))
14.12.2013
Ответить
Анна
Не, кожаный мы не хотим, тканный однозначно, имеем кошку-вредителя, капец будет кожаному дивану)))
14.12.2013
Ответить
Татьяна Специалист по недвижимости
хорошо, только не поняла у вас два тв в помещении? что за темные прямоугольники над столом и напротив дивана? газовый котел в шкафу? а что на этот счет газовщики думают? для помещения с котлом нужна определенная кубатура и она явно больше шкафчика
14.12.2013
Ответить
Анна
ДВ, да два ТВ, недавно я пришла к этой мысли что наверно нужно два, например если я готовлю или кушаем за столом не видно будет тот который в гостинной зоне, думаете второй лишний будет? Газовый котел в шкафу который около кондиционера, на счет газовщиков точно не знаю, но муж вроде говорит что можно убрать, у нас котел с принудительной вытяжкой на улицу, вроде говорят что такие можно убирать ящик.
14.12.2013
Ответить
Татьяна Специалист по недвижимости
Когда вы будете готовить, то вам ни тот ни другой телевизор будет смотреть не удобно, а сидя за столом только сидящий напротив будет видеть тв в зоне кухни. Все котлы с принудительной вытяжкой, но ему нужен постоянный доступ воздуха. у вас по проекту котел здесь был?
14.12.2013
Ответить
Анна
Проект делали под нас, где мы решили, там и установили котел, с условием конечно внешней стены. А у него и воздух принудительно по трубке засасывается. А про ТВ надо конечно подумать может выездной кронштейн?
14.12.2013
Ответить
Татьяна Специалист по недвижимости
какая у вас площадь первого этажа? у нас котел в котельной стоит, нам сказали что обязательно должно быть окно в ней и определенная кубатура и все равно мы сделали меньше, в стена есть решетка для притока воздуха, а когда уходим всегда дверь открываем.Да кронштейн то конечно поможет, вот только он вам так реально нужен? у нас по плану в кухне-столовой тоже тв должен быть, но так получилось, что не успели еще купить, зато все за столом едят, а не в тв смотрят, да и готовить в тишине можно, опять же настроение лучше, а то как посмотришь новости порой не знаешь куда бежать :))
14.12.2013
Ответить
Анна
Площадь всего тауна не большая каждый этаж по 50кв.м. У вас наверно большой дом и вам наверно нужен большой котел, а у нас настенный с принудительным отводом и всасыванием.С одной стороны это конечно плюс, когда все общаются, а не в тВ смотрят))) мы и сейчас всегда с выключеным кушаем если все вместе, ну а если я одна готовлю или кушаю, то это же тоскааа))))) Привычка наверно))
14.12.2013
Ответить
Татьяна Специалист по недвижимости
у нас этаж 49 квадратов, этажей тривот планировка первого этажа
лестница за санузлома вот так выглядит котельная 
лестница за санузлома вот так выглядит котельная 
14.12.2013
Ответить
Анна
Хмм, ну примерно такой же у нас котел другой фирмы, но никто с самого начала не говорил ни о какой отдельной комнате для него. Вот мужа сейчас спросила, он сказал, что когда газовщики приходили единственное сказали что вентиль перекрытия газа никуда прятать нельзя, но я там придумала для него закрытие уже, а про фасады на котел и счетчик ничего не сказали, но я позвоню ради интереса застройщику еще раз спрошу.
14.12.2013
Ответить
Татьяна Специалист по недвижимости
я так поняла у вас и конфигурация этажа примерно такая же. а вода этим же котлом греется? у меня на фотографию все коммуникации не поместились, там еще по стене к санузлу всякие фильтры и насосы стоят.а газовая труба у нас идет под натяжным потолком, а к плите спускается в стене, под кран и шланг газовый сделаны выпилы в шкафчике
14.12.2013
Ответить
Olga.Willem.wrkt
У нас в загородном доме вообще газовый котел в специально построенной котельной отдельно стоит (правда у нас и отопление газовое). Плюс котел приобрели, не помню какой фирмы, с возможностью топить дровами там переключатель есть. Как в воду глядели, пару лет назад горе-строители отрубили весь поселок от газового отопления - и это зимой. Благо газовщики оперативно успели перекрыть трубу, НО..... подключили только через 2 или 3 дня. Тепло было только у нас, а соседи электрический щиток сломали от перегрузки, т.к. обогревать большой дом электричеством им ФАЗ не хватило.
14.12.2013
Ответить
Диана
не парьтесь , есть котлы коаксиальные , которые без проблем можно ставить где угодно , тем более на кухне.Дама просто не в курсе.
16.12.2013
Ответить