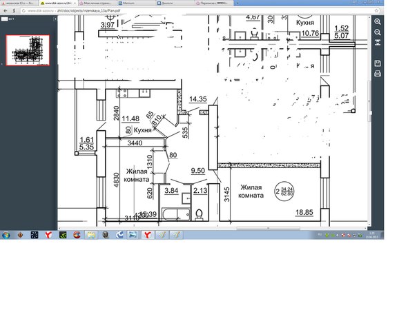
Помогите с перепланировкой распашонки 64,8 м.
Перепланировки стен. Согласование перепланировки квартир и нежилых помещений.Пока наша квартира строится я задумалась о перепланировки. Хотелось бы переделать в трешку.Но идеи пока приходят смутные, помогите советом. Спасибо заранее! 
Elena 
Набросала 2 варианта. В обоих зоны гостиной и спальни отделяет стена, стоящая посередине. За ней прячется кровать, а со стороны гостиной на ней может быть телевизор, можно разместить какую-то мебель и может быть даже декоративный камин. Кухня может отделяться от гостиной стеклянными раздвижными перегородками, а может и не отделяться.В первом случае спальная у окна коридор не проходной.Во-втором у окна гостиная, но коридор проходной.

Набросала 2 варианта. В обоих зоны гостиной и спальни отделяет стена, стоящая посередине. За ней прячется кровать, а со стороны гостиной на ней может быть телевизор, можно разместить какую-то мебель и может быть даже декоративный камин. Кухня может отделяться от гостиной стеклянными раздвижными перегородками, а может и не отделяться.В первом случае спальная у окна коридор не проходной.Во-втором у окна гостиная, но коридор проходной.
11.01.2014
Ответить
T@тьяна
Мое предложение такое. Детская - команата 16 метро. Юкомнату 18 метров поделить. Во-первых, перенести двери из Кухни правее, в сторону коридора или вовсе заложить проем. И построить стенку, чтобы спальня 10-11 метров получилось. Остальное по возможности снести стену с кухней, а может без сноса получится, надо рисовать с размерами. Еще посоветуют распашные двери в комнату 18, заменить на одностворчатаю, часть стены сэкономите.
08.01.2014
Ответить
@ленушка
у нас похожая планировка квартира 63м и то же дом все не сдан... только справа помещения в виде 2кв.м. у нас нет, коридор 10 метров. Будем двигать стенку между кухней и спальней до окна. Будет студия и 2 спальни 

06.01.2014
Ответить
эля
У нас такая же квартира в люберцах тоже хотела трешку ...но в итоге просто объединила кухню и гостиную ...
06.01.2014
Ответить
Татьяна Специалист по недвижимости
- заложить вход в кухню и проход между кухней и комнатой- уменьшить комнату (18 м2) и сделать из нее вход в кухню и эту комнату-расставить мебель кухонную начиная от того места где сейчас вход в кухню и около балкона сделать столовую
06.01.2014
Ответить
Дарья
Интересное решение. Можно в нишу поставить кровать. Спасибо за идею. Минус в том, что съедантся жилая зона.
06.01.2014
Ответить
Елена Дизайнер интерьера
Объективно хорошую трешку сделать не получится из-за количества окон - одна из комнат получается без окна, что тоже является нарушением при согласовании, поэтому как минимум её надо будет отображать не жилой. Планировка крайне неудачна для выпиливания третьей комнаты.
06.01.2014
Ответить
Кристина роспись одежды и вышивка
А зачем вам трешка?хорошая квартира,я бы так оставила
06.01.2014
Ответить
Катерина
А что за дом? Реально кухню перенести? Крутиться идея в 16,32 перенести кухню и задействовать как кухню-гостиную....... Но тогда сложновато гостям ночевать будет.... Вообще у подруги похожая квартира в дмитрове. Помню, что кухня просто огромная мне показалась и лоджия у неё как прачечная функционирует. Очень удачная квартира и планировка супер. Если расковырять стены, то трёху сделать можно довольно комфортную, но опять же вопрос)))))Какой дом?
06.01.2014
Ответить
Дарья
Дом монолитный, в жк Царицыно. Тоже думала о переносе кухни,но говорят сложно переносить "мокрую зону" в жилую. Вот теперь думаю.хочется, сделать и гостинную и спальню и детскую.
06.01.2014
Ответить
Катерина
)))) Мы тоже рассматривали этот район. И 3 знакомые семьи по дочкиному детсаду купили там квартиры. Отличные планировки, 3-ки и 4-ки вообще шоколадные. Мы бы потянули 4-ку там, но муж категорически был против, я уломала съездить на 1 просмотр, но на покупку так и не смогла уговорить((((((((((
06.01.2014
Ответить
Катерина
Промзона и жд. В итоге купили на Борисовских прудах квартиру, вообще не надеялись тут что-то нарыть, цены не подъёмные. Сложились так обстоятельства, что у хозяев сроки горели и они скинули больше миллиона. 

06.01.2014
Ответить
Дарья
Да мне этот район тоже не нравится, я вообще в СВАО жила всю жизнь, а это совсем другой конец Москвы. Но предложений за такие деньги не было в Москве, Только за МКАД.
06.01.2014
Ответить
Катерина
Так мы вообще соседи были. Я тоже всю жизнь в Южном медведково прожила. Да и сейчас прописана там, получаем уже ордера, дом сносят в марте. 3 года назад муж уломал переехать от мамы из хрущёвке на съёмную квартиру в Зябликово, он работает тут и родственники его в Братеево. Но я вопила, что вернусь обратно, на родную полярку. И с дуру ляпнула, что если и останусь на Юге Москвы, то только если в Новом посёлке квартиру купим............даже и не думала, что так и получиться.
06.01.2014
Ответить
Катерина
В вашем случае не очень сложно, у Вас су смежен с комнатой и проблем с кональём не будет, да и насосы не понадобяться дополнительные. Так что у Вас простор действий полный.
06.01.2014
Ответить
irishka
Перенос кухни в жилую зону не согласуют. Если захотите потом продать квартиру,будут сложности. Я б обратилась в соответствующие инстанции, если бы соседи сверху над моей спальней кухню за бабахали. Сто раз подумайте..
06.01.2014
Ответить

