Перенос входной двери возможен?

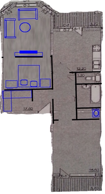
Предлагаю 2метра отсечь под спальню до самой гостиной (голубым-раздвижные двери). Справа все-таки нужно поставить прихожую и она будет отгораживать комнату детей, либо размещать ее на оставшиеся полметра вдоль стены спальни (от этого и зависит где будет располагаться дверь в спальню), тогда детскую от входа можно отгородить банкеткой, либо полочкой для обуви . 
30.01.2014
Спасибо. Интересный вариант. Только надо что-то с вентиляцией думать. 
31.01.2014
Спасибо. что оценили. стену можно не до потолка поднимать-по всей длине оставить см 30-40. Двери ночью можно и не закрывать
31.01.2014
А дом у вас уже сдан? Просто мы тоже хотим сделать небольшую перепланировку в только что сданной новостройке, причем у нас все стены несущие. Муж ездил к конструктору к офис застройщика, показал, что мы хотим, ему сказали, что все реально, они это рассчитают, ни в какие сторонние организации обращаться не надо. А паспорт БТИ получим уже с новой законной планировкой. И мужа уговаривайте на спальню!!! Гостей и на кухне принять можно, а вам личное пространство важнее. 
29.01.2014
Дом еще не сдан, но уже на стадии приемки разных инстанций. По поводу спальни у нас война в самом разгаре)
29.01.2014
удачи!!!!!!!!!
29.01.2014
оч. интересно! а скажите, сколько застройщик за это взял? потому как такой вариант очень приятный! нежели сачала получать план БТИ, региться собственность, потом городить и узаконивать или же разрешать и потом городить, уф...
31.01.2014
Пока еще не знаю. Мы в процессе оформления ))))  Вы позвоните своему, а лучше съездить и на месте все обсудить
31.01.2014
Удивительная планировка. Я бы даже сказала удивительно неудачная, но не хочется расстраивать :) Все стены у Вас монолитные, проёмы возможно устраивать только с усилением, официальным согласованием и расчётом по проекту. Это как известно сложно дорого и долго. Но не значит, что невозможно. Понятное дело, что ни о каком демонтаже и речи быть не может.Всё, что вы можете сделать - это применять декоративные приёмы работы. К примеру, отделить входную дверь от прохода к детской невысоким ограждением типа как у лестниц или балконов. Для скамейки или банкетки там недостаточно глубины и всегда будет хотеться её подвинуть. А невысокий стационарный "заборчик" поможет направить линию движения в нужное направление и при этом визуально не будет отягощать помещение.
29.01.2014
Спасибо за ответ. Наверно так и придется сделать. Огородимся заборами))) 
29.01.2014
скажите, а если всё-таки стена из блоков (не несущая), то передвинуть входной проем реально?я так поняла, что вы в курсе немного)))
31.01.2014
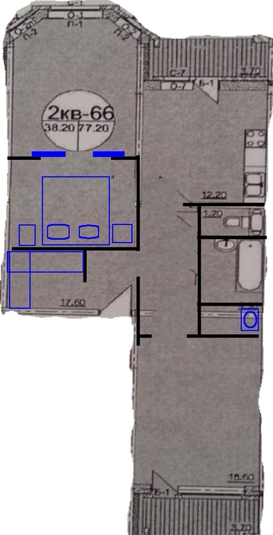
Как вам такой вариант? Отодвинули вход в детскую от входной двери, построили стену. Немного уменьшилась ванную, но рядом с детской нарисовала хозяйственную комнату для стиральной машины и хранения средств уборки: гладильная доска, пылесос и пр.Спальную зону отделяют от гостиной распашные двери.Или такой вариант отделения от гостиной: стена с входами с двух сторон. За стеной кровать.
28.01.2014
стены как раз не несущие, несущей конструкцией являются монолитные столбы
28.01.2014
Двушка-распашенка Возможно ли узаконить перепланировку?