Elena
По вашим размерам эта идея получилась вот так:
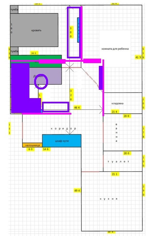
Только мне не совсем понятно где вы нарисовали колошницу. Она в квартире?Если да, то какая длина стены, по которой вы разместили в своей идее телевизор гостиной зоны? Мне кажется вход в квартиру некорректно нарисован.
По вашим размерам эта идея получилась вот так:
Только мне не совсем понятно где вы нарисовали колошницу. Она в квартире?Если да, то какая длина стены, по которой вы разместили в своей идее телевизор гостиной зоны? Мне кажется вход в квартиру некорректно нарисован.
12.02.2014
Ответить
Анна
калошница находится в квартире, размер стены в коридоре 206 см, стена в гостинной где весит телевизор равна 254 см
13.02.2014
Ответить
Elena
Я сначала не разобралась с вашими размерам и нарисовала варианты (см. выше). Потом поняла, что вы часть коридора вне квартиры задействовали.Ваш вариант неплох, только диван лучше развернуть, а то и так узкое место получается и диваном мы его еще удлиняем.Посмотрите вот такой вариант: 

13.02.2014
Ответить
Анна
вот этот вариант мне нравится))) только в спальне хотелось бы иметь тоже телевизор, а куда его поставить? 

13.02.2014
Ответить
Elena
У вас может быть:Высокий пенал для одежды одного из вас, потом комод с ящиками для белья и пастельного (на нем стоит телевизор), потом снова высокий пенал. Над телевизором могут быть полки.
13.02.2014
Ответить
Анна
комната 18,3 хотим разделить на спальню и гостиную, комната 16,3 сделать спальню и кладовку.
12.02.2014
Ответить
Ирина
А зачем , если не секрет? у вас шикарная квартира в плане планировки, зачем "калетушечки" городить?
12.02.2014
Ответить
Ирина
Если честно, то наверное проще, без ущерба, для метража, сделать доп спальные места в комнате ребенка (типа тахты поставить или выдвижная кровать), и вам туда спать уходить, когда гости, а 18 метровую комнату уступать гостям, просто поделить 18 метров на 2, что вы туда впихнете, места вообще не останется. но это мой взгляд, я просто этим же вопросом озадачивалась 2 года назад, в итоге нашу больш комнату делить не стали, и при мин мебели (диван, шкаф, комп стол и телек), уже места в ней мало
12.02.2014
Ответить



есть еще вот такой вариант