Куда поставить сушильную и стиральные машины?
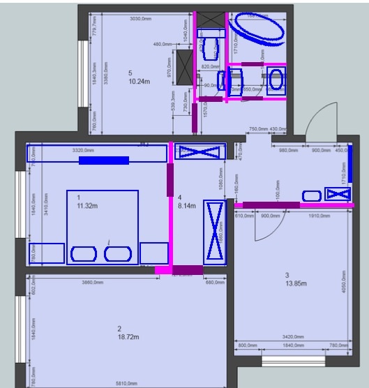
Интерьерное решение ванной комнатыДобрый вечер ББ-ки. Всю голову сломали куда поставить машины, электрикам надо план проводки делать, а мы с мужем никак не можем место для техники найти. Помогите пжл советом. Хотелось бы чтобы не просто в коридоре стояли, а где-то спрятаны были, т.к. планируем стирать ночью. Может как-то перепланировку сделать... План квартиры прилагаю. Заранее благодарны откликнувшимся.

Anna Korr
у Вас такя замечательная ниша около ванной. Там можно сделать кладовую-прачечную.сделать полки и заказать двери раздвижные/перегородки.стиралка и сушилка 120 см общ, и остается место для полочек или для корзины, или даже пылесоса. и не нужно заморачиваться с перепланровкой.или же, если не хотите нагружать коридорчик, можно обыграть эту же нишу, в виде "комода"/полу-шкафчика, а над ним картину/зеркало

26.02.2014
Ответить
Elena
Вот еще один вариант нарисовался.Идея: увеличить площадь ванны и туалета за счет коридора, ванную поделить на предбанник (разместить раковину и стиральную/сушильную машины) и помещение с самой ванной.В результате имеем возможность принимать ванную и кому-то умывается или заниматься стиркой. В туалете тоже можно разместить маленькую раковину.Ванну можно подобрать угловую 160 на 100. 

25.02.2014
Ответить
Светлана
Спасибо за совет, но объединить туалет с ванной у нас не получится, т.к. сейчас живем пока в другой квартире с совмещенным санузлом, по утрам война за туалет))
25.02.2014
Ответить
Elena
В очень маленьких ванных комнатах можно разместить компактную сушильную машину глубиной всего 42 см (например, модели Electrolux EDC3150 или EDC3250). Эти приборы допускают крепление к стене с помощью кронштейнов, входящих в комплект поставки.
Вы какую хотите?
Вы какую хотите?
25.02.2014
Ответить
Светлана
Мы хотели сименс поставить, нашли их только 60 см. На счет комнат, самую большую себе для спальни, самую маленькую -детской сделать хотим, в коридорчике -помещение 4 - хотим турник поставить, т.к. хочу вместе с ребенком на нем заниматься. А дальнюю комнату сделать гостинной-гостевой.
25.02.2014
Ответить
Elena
Да, там можно и тренажер поставить... Только смущает отсутствие окна и замкнутое помещение. Я бы сделала проходной гардероб для верхних вещей, санок, коньков, чтобы коридор не загромождать большим шкафом. А в гостиную там широкий проход (можно распашные двери). В коридоре только вешалка для текущей одежды и гостей.И тогда поменяться с ребенком комнатами, и в его большой комнате сделать спортивный уголок (зонировать пространство: уголок, зона игр, спальная зона, у окна зона для занятий).А себе маленькую комнату для спальной. Зато дети, которые будут приходить в гости в его комнате будут чувствовать себя просторнее. И на случай, если в вашей семье еще появятся дети.
25.02.2014
Ответить
Джулия
Я б сделала сушку в ванну. Там где обычно стиралки ставят. А стиралку встроила б в кухню, чтоб не видно было. А колонну делать из сушки и стиралки - мне кажется громоздко и высоко, что в ванной, что в кухне.
25.02.2014
Ответить
Олеся (Лесёнок)
Оооооо))) Какой просто для перепланировки)))) 11,32 можно стену снести и будет большая зала)))) А в 18 стальня или детская)))) Ну это не по теме, извините)))) А про стиралку и сушилку - покупайте штабелируемую и ставьте друга на друга. Я бы вообще объеденила ванну с кладовкой. Но стиральную надо ставить подальше от стены жилой комнаты, Т.е. реально по той стене, где выступ 66 см.
25.02.2014
Ответить
Светлана
Д.д., так и хотим установить на стиралку сушку но где поставить не знаем, а по поводу "объеденила ванну с кладовкой", а кладовка это где подскажите пжл.
25.02.2014
Ответить
Светлана
10,24 это кухня, а серенький прямоугольник с крестом это вентиляционный короб, если вы не про него, то я честно не поняла про что вы говорите((
25.02.2014
Ответить
Вика
Странный такой план...2 коридора...зачем? И снести стену не выйдет, т.к. она несущая... Единственное, что я вижу, это можно дверь в ванную перенести максимально влево, увеличив простенок, который сейчас 66 см (стиральная и сушильная машина примерно 70х65 см) и сделать в этом углу короб для стиралки и сушилки из гипсокартона с дверью (+10 см на стены) должно поместиться.
24.02.2014
Ответить
Светлана
Спасибо за отзыв, если я правильно поняла, то вы советуете в коридоре снаружи этот короб сделать, тогда вентиляцию надо делать и если по этой стене шкаф делать, то угол будет торчать. А большое количество коридоров это конечно беда(
24.02.2014
Ответить

