Планировка
Перепланировки стен. Согласование перепланировки квартир и нежилых помещений.Стоит ли что-то изменить?
для увеличения площади комнат:-)

На кухне окна нет, в гостиной окно потолочное 2*2 метра
Хотим сделать из гостиной в кухню стеклянную перегородку с прозрачными дверьми разддвижными, чтобы проходил свет
Elena
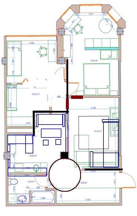
Немного порисовала на вашей планировке. Может быть какие-то идеи вам понравятся.
Пока убрала второй туалет, который был у вас рядом с детской.Я бы в вашей детской сделала спальню с личным туалетом/душем.Вашу спальную отдала бы под детскую.Кухню увеличила за счет бывшего коридорчика и там разместила бы диванчик и стол. Между кухней и гостиной можно сделать витражную стену. Это может быть стеклянный витраж или воздушная перегородка или комбинация мебели и витража... Главное, чтобы в кухне и в гостиной это был декоративный элемент. Может быть со стороны гостиной на этой стене будет телевизор.Можно продумать освещение.Предложила бы немного поработать над ванной, чтобы было более удобно.А еще объединила круглым холлом кухню, гостиную, ванную и коридор. Это может быть полукруглые стены (но в данной конфигурации это будет не очень заметно) или просто покрытие пола (мозайка из плитки или геометрический рисунок).
Пока убрала второй туалет, который был у вас рядом с детской.Я бы в вашей детской сделала спальню с личным туалетом/душем.Вашу спальную отдала бы под детскую.Кухню увеличила за счет бывшего коридорчика и там разместила бы диванчик и стол. Между кухней и гостиной можно сделать витражную стену. Это может быть стеклянный витраж или воздушная перегородка или комбинация мебели и витража... Главное, чтобы в кухне и в гостиной это был декоративный элемент. Может быть со стороны гостиной на этой стене будет телевизор.Можно продумать освещение.Предложила бы немного поработать над ванной, чтобы было более удобно.А еще объединила круглым холлом кухню, гостиную, ванную и коридор. Это может быть полукруглые стены (но в данной конфигурации это будет не очень заметно) или просто покрытие пола (мозайка из плитки или геометрический рисунок).
14.03.2014
Ответить
Elena
Марианна, очень интересно на каком варианте перепланировки для себя вы остановились? ;-) (просто из любопытства)
20.03.2014
Ответить
Lika
Ну если только вход в детскую сделать ниже, вровень со стеной. Вход в спальню - из гостиной. Правда тогда гостиная будет проходной. Это уже дело вашего вкуса :)
13.03.2014
Ответить
Elena
Замечательная планировка.Единственное, что я бы подправила (только сугубо из удобства):1. У входа сделала бы туалет с душем и хозяйственную комнатку со стиральной машинкой и хранением хоз. принадлежностей.2. Туалет возле детской сделала бы ванной с туалетом.Мне кажется, что в той части квартиры образуется спальная зона и удобно сразу из ванной в спальную. В случае гостей удобно. Ребенок спокойно помылся и пошел спать, и не нужно ходить через кухню (ведь в это время могут быть там гости).Получается: передняя часть квартиры "общественная", далее идет "интимносемейная".
13.03.2014
Ответить
Elena
Скорее не из комнаты... А вообще, про какой именно туалет вы меня спрашиваете?Если про тот, что рядом с детской (про него я писала, предлагая сделать из него ванную с туалетом), то увеличив его немного за счет детской и прохода к спальным, он создаст коридорчик и вход в него из коридорчика. Возможно, вход в гостиную придется сделать немного уже, чтобы прикрыть вход в ванную/туалет.Но эта моя рекомендация чисто практичная... У вас и так все хорошо спланировано.Хотя, если бы в маленькой комнате была ваша спальная, то можно было бы сделать ваш личный туалет с душем с входом из вашей комнаты.
13.03.2014
Ответить
Елена
Простите что не по теме. А в какой программе вы этот проект сделали? Я все от руки сижу рисую. СвитХоум как то не понравился. Не знаю теперь где еще порисовать планировку себе.
13.03.2014
Ответить
марианна
я в свитхоум тоже рисовала, эта планировка плод совместных трудов с архитектором, не знаю в чем рисует, если расскажет-напишу:-)
13.03.2014
Ответить
Елена
очень правильно хотите сделать. ну и удобство выключателей, так как кухня все равно будет темным коридором.
13.03.2014
Ответить
марианна
В кухне действительно нет, в гостиной потолочное окно 2*2 метра :-) так что не все так плохо как вы подумали :-)Хотим сделать из гостиной в кухню стеклянную перегородку с прозрачными дверьми разддвижными, чтобы проходил свет
13.03.2014
Ответить
