Мама двоих (4 года, 1 год)
Минск
Однокомнатная квартира. Дизайн-проект.
Как обычно хвастаю. Жду коментариев)

Кухня-студия. И отделенная спальня. Для молодой пары без детей.






Прихожая. Шкаф - до потолка, по другой стене - Тронес.


Столб - несущий. Была идея сделать его колонной античной, вместе с заказчицей решили облажить кирпичем в цвет общих стен.

Мама двоих (15 лет, 13 лет)
Руза
Лена, мне больше всего бросается в глаза столб напротив входной двери. И я бы прикрыла гостиную зону от коридора, соединив столб со стеной, сделал коридор изолированным. На рисунке соединив стеной, мои размышления пошли дальше и у меня нарисовалось вот такое предложение:
Может быть что-то вы найдете в нем полезное.Моя идея в том, чтобы места хранения были незаметны, встроеные шкафы, которые являются продолжением стен.
Может быть что-то вы найдете в нем полезное.Моя идея в том, чтобы места хранения были незаметны, встроеные шкафы, которые являются продолжением стен.
0
29.05.2014
Ответить
Мама двоих (16 лет, 13 лет)
Минск
класное решение, особенно со столбом!!! вполне! тут единственное, что меня смущает, это удаленность шкафа от всего, но тут личное ело и пристрастие. Я думаю, заказчица даже почитает ваши идеи, вполне возможно, что она загорится ею!)спасибо, спасибо)
0
29.05.2014
Ответить
Мама двоих (15 лет, 13 лет)
Руза
Шкаф есть в прихожей, небольшой, но для верхней одежды и обуви текущего сезона достаточно.Появляется небольшой в нише рядом со столбом. Система хранения в виде телевизионной композиции и встроенный шкаф в спальной. Мне кажется, что для каждой зоны шкафы присутствуют.В коридоре можно разместить еще что-то из мебели: комод, ниши с зеркалами по стене от входной двери, чтобы визуально расширить коридор и он выглядел бы симметрично.
0
29.05.2014
Ответить
Мама двоих (16 лет, 13 лет)
Минск
ля обуви — куча мест справа, это идея галошниц на всю стену, вся обув влезет))твообще, да, может быть, абсолютно правы.!
0
29.05.2014
Ответить
Мама двоих (16 лет, 13 лет)
Минск
Елена, да вы кладезь идей!! Здорово, тот ммомент, который меня, смущал , вы компенсировали!!!Хозяюшка, присмотрись!! Здесь меньше коридор, зато поольше гостинная! И бюджетнее, шкаф зеркальные, поди, не дешевы!.Я аотом хочу сделать второй вариант, где кровать уже у окна, а гостинная у входа. Поиграем над ним?! Мне нра ваши мысли)
0
29.05.2014
Ответить
Мама двоих (15 лет, 13 лет)
Руза
Хорошо ;-)Но мне этот вариант нравится ;-), мы сами живем в подобном.
0
29.05.2014
Ответить
Мама двоих (16 лет, 13 лет)
Минск
Да, посмотрела и вспомнила вашу красавицу))Мы тогда еще не были избалованы красивыми картинками, я было под великим впечатлением.Да
0
29.05.2014
Ответить
Мама четырех (от 3 года до 17 лет)
Москва
Диван надо бы тогда поменьшще подобрать, потому что тут маленькое расстояние получается, меньше метра между ним и шкафом. и можно не шкаф, а просто стеллаж со шкафчиком снизу с дверками.
0
30.05.2014
Ответить
Мама четырех (от 3 года до 17 лет)
Москва
=)) уже кто-то написал про расстояния)) соррии))
0
30.05.2014
Ответить
Мама двоих (15 лет, 13 лет)
Руза
Я бы сделала вообще открытые полочки в нише для книг, сувениров или фотографий.
0
30.05.2014
Ответить
Мама двоих (16 лет, 13 лет)
Минск
туда вообще подсветку можно, стену картину вытянутую повесить. Сохранмися минимализм помещения)
0
30.05.2014
Ответить
Мама двоих (15 лет, 13 лет)
Руза
Я просто представила... проходя мимо с кухни, берется с полочки любимая книга, садимся на диван... Надо, конечно, продумать разное освещение: торшер, светильники...
0
30.05.2014
Ответить
Мама двоих (16 лет, 13 лет)
Минск
место для книг в проекте не нужно было, предположу, что молодые люди успешно пользуются телефонами))Меня вообще улыбнуло, когда парочка лет 20 на пляж с ноутом пришла — кино хотели сильно смотреть, в итоге плюнули на все попытки укрытся от палящего солнца))
0
30.05.2014
Ответить
Мама мальчика (27 лет)
Москва
Честно, не очень. Это не дизайнерская работа, так может сделать, практически, каждый. Деньги за это брать как- то не серьезно. А если Вы еще и удаленно работаете- то совсем безобразие.Я понимаю, что Вы берете намного дешевле наших дизайнеров, но так нельзя. ИМХОНе обижайтесь, посидите на форуме дизайнеров, повыкладывайте свои работы. Думаю, у Вас со временем все получится. Удачи.
0
29.05.2014
Ответить
Мама двоих (16 лет, 13 лет)
Минск
нет, абсолютно адекватно отношусь к чужому мнению. Скажите, а что в проекте нет такого, что его нельзя назвать дизайнерским?
0
29.05.2014
Ответить
Мама мальчика (27 лет)
Москва
В том то и дело, что совсем ничего в этом интересного нет. Плохо, что Вы этого не видите.Выложите ( конечно, если не испугаетесь) его на форуме дизайнеров и послушайте мнения профессионалов. Я, думаю, они все лучше, чем я объяснят. Извините, я как заказчик рассуждаю. За такое нельзя брать деньги.
0
29.05.2014
Ответить
Мама двоих (16 лет, 13 лет)
Минск
вы правы, я вижу картинку , которую нарисовала в голове, и не могу понять, почему другим она не нравится.Специально посмотрела в Википедии, что такое дизайн интерьера, там негде нет слова о некой "изюминке", которая должна удивлять зрителей.А вы выкладывали работу своего дизайнера, которого нахваливали, любопытно оценить своим взглядом?Скажите, вы может знаете сайт, куда действительно можно выложить работу, чтоб оценили специалисты?
0
29.05.2014
Ответить
Мама мальчика (27 лет)
Москва
http://forum.homeideas.ru — это сайт дизайнеров, оценивают они жестко, но, достаточно объективно. Я два года сижу на этом сайте- учусь :). Наш дизайнер http://r-deco.livejournal.comКвартира первая " из однушки в двушку".Понимаете, в дизайне для простых людей не надо " изюминок", нужно грамотно спланированное пространство, в котором удобно жить, которое согласуют БТИ, и которое будет соответствовать твоим финансовым возможностям ИМХО.И Вы молодец, что нормально реагируете, я представляю, как обидно, когда хают, то, что тебе дорого. Думаю, что у Вас, действительно, все получится. Просто, не надо брать мало денег за плохую работу. На эту квартиру посмотрят люди и скажут, ну и правильно, что дизайнера не наняла, так я и сама могу. А вот это обидно. Ремонт обычный и с дизайнером две огромные разницы.
0
29.05.2014
Ответить
Мама двоих (16 лет, 13 лет)
Минск
Знаете, "так я сама могу", это мне может сказать дизайнер или человек, глубоко увлекающийся этим делом. Все остальное, это — фарс. Работа моя хорошая, я как строгий критик могу и себя оценить строго, просто то, что вижу я у себя в голове , плохо приподносится, из-за этого и весь сыр бор.Посмотрела я вашу квартиру и девушку -дизайнера, она красавица)
0
29.05.2014
Ответить
Мама мальчика (27 лет)
Москва
Спасибо, на тоже нравится:)И квартира и Руслана :)
0
29.05.2014
Ответить
Мама двоих (16 лет, 13 лет)
Минск
скоро жезаканчиваете, похвастаете потом! это же у вас свет на потолке, я правильно поняла?
0
29.05.2014
Ответить
Мама мальчика (27 лет)
Москва
Мы уже с нового года живем:)Правда, на мебель денег уже не осталось. Фотографии есть только на телефоне, но у нас все очень близко к визам. Только детская другая. Мы, изначально, другой вариант одобрили. Почему Руслана старый выложила не знаю.На потолке свет такой, Вы правы. Мы старались очень уложиться в небольшой бюджет.
0
29.05.2014
Ответить
Мама двоих (16 лет, 13 лет)
Минск
Я вам объясню, почему выложила такой, потому учто он ей по душе больше)Ой, ремонт -это вечная штук, это только у алигархов денег на все сразу хватает) а может и нет?!)
0
29.05.2014
Ответить
Мама мальчика (27 лет)
Москва
Про то, что он ей больше нравится- не совсем так:)Но, там сложная история:)
0
29.05.2014
Ответить
Мама двоих (17 лет, 10 лет)
Пхукет
Визуализации просто атас... Вы за них деньги дизайнеру платили?
0
29.05.2014
Ответить
Мама двоих (16 лет, 13 лет)
Минск
это визуализация в программе свит хоум. Это я ее делала людям.
0
29.05.2014
Ответить
Мама двоих (17 лет, 10 лет)
Пхукет
Ого, и что люди сказали? Или Вы бесплатно визуализации делаете? Я просто уже 10 лет работаю в дизайн студии и таких картинок для заказчика никогда не видела...
0
29.05.2014
Ответить
Мама двоих (16 лет, 13 лет)
Минск
ну вы же ее делаете в 3д максе, правильно я понимаю? и вы ее делаете бесплатно для людей? или деньги все таки берете?вот и я также.
0
29.05.2014
Ответить
Мама двоих (17 лет, 10 лет)
Пхукет
Просто из такого проекта абсолютно не понятна конечная цель, а если конечный результат не понятен то за что платить деньги? Я лично не понимаю.... И да конечно я работаю в максе... Может лучше рисовать в ручную и не мучать ни кого? Приведу пример, для наглядности из своих работ:Визуализации:
Фотографии сделанного интерьера:
Фотографии сделанного интерьера:
0
29.05.2014
Ответить
Мама двоих (16 лет, 13 лет)
Минск
Что вы имеете ввиду — непонятна конечная цель?Визуализация ваша — на пятерку.
0
29.05.2014
Ответить
Мама двоих (17 лет, 10 лет)
Пхукет
Я имею ввиду что на визуализациях непонятны ни материалы, ни цветовые решения да и планировка не до конца понятна... Хотя считаю саму идею такой планировки удачной мы пару раз делали подобную, правда есть и минусы, основные в плохой звукоизоляции в спальной зоне и в том что при прибавлении семейства возникает проблема куда поставить детскую кроватку...
0
29.05.2014
Ответить
Мама двоих (16 лет, 13 лет)
Минск
это правда, что вы описали, и я уточнила это у хозяюшки.Теперь понимаю, про что вы. Многи е моменты я объясняю на словах, так как возможности программы ограничены. Там нет возможности нарисовать напрмер кирпич и покрыть его любым цветом.Есть еще у меня второй вариант на бумаге, буду попозже пробовать в программе, что получится.
0
29.05.2014
Ответить
Мама двоих (17 лет, 10 лет)
Пхукет
Да, если не получается нарисовать приходится много болтать))) а потом ещё и у заказчика могут появляются претензии... В общем риск попасть в не очень приятную ситуацию... Некоторые мои коллеги рисуют белые стены в любой программе распечатывают а потом в ручную раскрашивают, иногда очень эффектно получается...
0
29.05.2014
Ответить
Мама двоих (16 лет, 13 лет)
Минск
интересная идея, я об этом не слышала еще)нет, я не сильна в перспективном рисовании, еоторое еще и от визуала не отличишь.
0
29.05.2014
Ответить
Мама двоих (16 лет, 13 лет)
Минск
Юля, про визуализацию вы мне все таки помогли, тепрь я и сама вижу со стороны броские недочеты) Спасибо, буду исправлять)
0
29.05.2014
Ответить
Мама двоих (17 лет, 10 лет)
Пхукет
Я рада))) Хороший сайт 3ddd.ru для дизайнеров, там и уроки есть и форумы и отличные работы выкладывают каждый день и бесплатные 3д модели можно скачать...
0
30.05.2014
Ответить
Мама двоих (16 лет, 13 лет)
Минск
отлично!! почитаю, посмотрю))Я вон первую фотку поменяла, згачительно лучше чтало. Жаль, времени сейчас на другие не осталось.
0
30.05.2014
Ответить
Мама двоих (14 лет, 11 лет)
Ростов-на-Дону
Пространство для кухни гостиной отличное. Но использовано нерационально. Можно же сделать кухню с полуостровом чтобы не было этой нелепой барной стойки? Кому нравится сидеть за столом спиной к окну?
0
29.05.2014
Ответить
Мама двоих (14 лет, 11 лет)
Ростов-на-Дону
Чаще всего если диван стоит спиной к обеденной или кухонно группе то за ним ставится что то вроде серванта или низкого стеллажа.
0
29.05.2014
Ответить
Мама двоих (16 лет, 13 лет)
Минск
вы говорите как специалист в данной сфере? я решила поставить цветы)
0
29.05.2014
Ответить
Мама двоих (14 лет, 11 лет)
Ростов-на-Дону
У диванов сзади абсолютно гладкая как правило одноцветная поверхность.На нее смотреть сомнительное удовольствие.
0
29.05.2014
Ответить
Мама двоих (16 лет, 13 лет)
Минск
я понимаю, но также знаю, что для диванов такого плана выбырают специально красивую "спину".
0
29.05.2014
Ответить
Мама двоих (14 лет, 11 лет)
Ростов-на-Дону
Такая красивая спина будет у диванов от 70 тыс и выше. Поэтому и есть такие простые классические решения.
0
29.05.2014
Ответить
Мама двоих (16 лет, 13 лет)
Минск
по другому диван не станет, и загромождать его сзади тоже не выход, если с целью прикрыть — этих денег хватит на хороший диван)
0
29.05.2014
Ответить
Мама двоих (16 лет, 13 лет)
Минск
лицом к окну посидеть бы не получилось в данной истории. Можно стоять, сколько угодно)Высокая барная стойка — желание заказчиков.Спасибо вам!
0
29.05.2014
Ответить
Мама двоих (15 лет, 12 лет)
Москва
согласна. или за диваном.еще очень не нравится когда спальн в кладовку запирают.
0
29.05.2014
Ответить
Мама двоих (16 лет, 13 лет)
Минск
у вас есть другие мысли для размещения спальни?
0
29.05.2014
Ответить
Мама двоих (15 лет, 12 лет)
Москва
нет, ей там и место, только не огорождать полностью, а со стороны гостинной повесить легкую штору или что-то типа того. ну чтоб было хоть чем там дышать к утру
0
29.05.2014
Ответить
Мама двоих (16 лет, 13 лет)
Минск
так там дверной проем остался, туда даже естественный свет будет поступать) Шторку пусть хозяйка вешает, если это нужно)
0
29.05.2014
Ответить
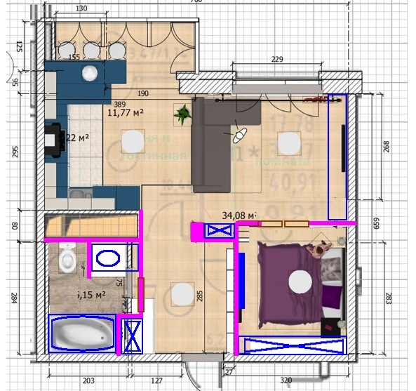
Мама девочки (14 лет)
Москва
Поделюсь полезными схемами для проверки ширины проходов. Проверить бы расстояние от колонны до дивана и от окна до барной стойки.Это в дюймах:
Это в см:
Планировка нуждается в шлифовке. Зонирование вопросов не вызывает.Без техзадания от хозяйки квартиры советы давать трудно. Возможно, барную стойку можно было бы сделать за спинкой дивана. Тогда можно будет, сидя на кухне, смотреть тв.У окна поместится обеденный стол. Чтобы колонна не смотрелась одиноко можно сделать из гкл на стене воздуховода выступ той же ширины, "пилястру", облицованную, как колонна. А можно всю соседнюю стену облицевать кирпичиками.Будет лучше без декора за TV и растения.Насчет рендера, понимаю, что программа не удобная. Но для работы в стадии эскиза то, что нужно. Советую не стремиться как-то приукрасить проект. Рисунком для текстиля и тому подобное. По опыту вижу, что с хорошими текстурами и естественным освещением проект смотрелся бы совершенно иначе. Основа верная. Есть лаконичность и цельность идеи.
Это в см:
Планировка нуждается в шлифовке. Зонирование вопросов не вызывает.Без техзадания от хозяйки квартиры советы давать трудно. Возможно, барную стойку можно было бы сделать за спинкой дивана. Тогда можно будет, сидя на кухне, смотреть тв.У окна поместится обеденный стол. Чтобы колонна не смотрелась одиноко можно сделать из гкл на стене воздуховода выступ той же ширины, "пилястру", облицованную, как колонна. А можно всю соседнюю стену облицевать кирпичиками.Будет лучше без декора за TV и растения.Насчет рендера, понимаю, что программа не удобная. Но для работы в стадии эскиза то, что нужно. Советую не стремиться как-то приукрасить проект. Рисунком для текстиля и тому подобное. По опыту вижу, что с хорошими текстурами и естественным освещением проект смотрелся бы совершенно иначе. Основа верная. Есть лаконичность и цельность идеи.
0
29.05.2014
Ответить
Мама двоих (16 лет, 13 лет)
Минск
Спасибо большое за шпаргалочки, утащила себе)Расстояние от дивана до колонны — 75 см, расстояние от барной стойки до стены лоджии — 95 см.Я правильно поняла про колонну дополнительную?
Мне понравилась идея дополнить стен кирпичем, стену с воздуховодом.И тогда , даа, картина излишняя под телевизором, так хотелось что-то добавить)) Хотя хозяюшка рвется в бой повесить красные шторы, думаю ,пусто не будет))По поводу барной стойки было пожелание.В тех задании -был оюбразец барной стойки — картинка, где объединяли лоджию , ну и на том месте стойка соответсвтенно, высота тоже выбрана ее. Еще по цвету — серые, правда хозяйка хотела понасыщеннее, но у нее солнышко толкьо утром, ну и спальня — тоже определенные желания, ну и побольше мест для хранения))Спасибо вам огромное, приогромное!!!
Мне понравилась идея дополнить стен кирпичем, стену с воздуховодом.И тогда , даа, картина излишняя под телевизором, так хотелось что-то добавить)) Хотя хозяюшка рвется в бой повесить красные шторы, думаю ,пусто не будет))По поводу барной стойки было пожелание.В тех задании -был оюбразец барной стойки — картинка, где объединяли лоджию , ну и на том месте стойка соответсвтенно, высота тоже выбрана ее. Еще по цвету — серые, правда хозяйка хотела понасыщеннее, но у нее солнышко толкьо утром, ну и спальня — тоже определенные желания, ну и побольше мест для хранения))Спасибо вам огромное, приогромное!!!
0
29.05.2014
Ответить
Мама девочки (14 лет)
Москва
Пожалуйста).Пожалуй, лучше сделать кирпичи на весь простенок. Я имела в виду, именно пилястру. Выглядит как колонна утопленная в стену. Вынос макс. 5 см. Но по новой картинке сразу видно, что сужать проем не надо.Поняла про присоединенную лоджию. Тогда с расположением барной стойки все логично.
0
29.05.2014
Ответить
Мама двоих (16 лет, 13 лет)
Минск
у меня была идея этот столб превратить в колонну — круглую, со всякими завитками , листиками вверху))
0
29.05.2014
Ответить
Мама девочки (14 лет)
Москва
Пропорции неподходящие у колонны. Ордера лучше по всем правилам использовать, либо не трогать. Классика — это продвинутый уровень, с крепкой теоретической базой.
0
29.05.2014
Ответить
Мама двоих (16 лет, 13 лет)
Минск
не поняла только про ордера?!Наталья, скажите, а можно я вам завтра в личку скину одну комнату, чтоб вы наложили свою резолюцию?)
0
29.05.2014
Ответить
Мама девочки (14 лет)
Москва
Колонна — часть ордера. Присылайте, посмотрю)
0
29.05.2014
Ответить
Мама двоих (13 лет, 7 лет)
Москва
белый пол в зоне готовки- жесть. поменять на что то менее маркое. гостинная очень серая. просто атас. очень темно и все таки квартира молодых людей хочется красочности
0
29.05.2014
Ответить
Мама двоих (16 лет, 13 лет)
Минск
тут просто поленилась исправлять))красные шторы — не яркие? очень мало помещение.спасибо за советы)
0
29.05.2014
Ответить
Мама двоих (13 лет, 7 лет)
Москва
Штор не хватает. Я люблю большие светлые помещения. С большим количеством искусственного света, если такого мало. Лучше пускай колонна пройдет темной нитью по интерьеру,чем затемнять помещение в котором они будут большую часть времени проводить!((( По так. И ещё мне кажется мало места у барной стойки между стульями и подоконником???
0
29.05.2014
Ответить
Мама двоих (16 лет, 13 лет)
Минск
1 метр — между барной стойкой и стеной балкона.я что-то сегодняплохо понимаю людей, что занчит " Лучше пускай колонна пройдет темной нитью по интерьеру,чем затемнять помещение в котором они будут большую часть времени проводить!"??
0
29.05.2014
Ответить
Мама двоих (13 лет, 7 лет)
Москва
ну это значит,что в гостинной у ребят будет много гостей. Помещение должно быть светлым, наоборот сделать освещение,подобрать такой цвет,чтобы оно(помещение) смотрелось больше, а не меньше. И не подгонять общий стиль комнаты под колонну, а сделать ее отдельным элементом. (эдакой темной нитью). Понятно стало?
0
29.05.2014
Ответить
Мама двоих (16 лет, 13 лет)
Минск
цвет стен выбран хозяйкой, точнее она дала направление, а я максимально старалась сделать их не темными. А в гостинной шкаф стоит зеркальный как раз напротив окна, он и дает больше света естественного.А что колонна, я не поняла, решшили ее делать не заметной? а какой нужно?
0
29.05.2014
Ответить
Мама двоих (13 лет, 7 лет)
Москва
Ну нет. Оставить колонну в покое. Поменять цвет стен и пола на яркие. А то все темное. Диван то уж точнее посветлее можно. Но раз хозяйка хочет тогда все
0
29.05.2014
Ответить
Мама двоих (16 лет, 13 лет)
Минск
ну стены яркими я могу понять, а пол ярким это как?! оранжево-рыжее дерево?! или ты имеешь, положить ковер яркий?н
0
29.05.2014
Ответить
Мама двоих (15 лет, 13 лет)
Руза
Лена, а не хотели снести остатки оконного проема при присоединении лоджии?
0
30.05.2014
Ответить
Мама двоих (16 лет, 13 лет)
Минск
теоритически очень хотелось, но практически мы не можем понять , можно сносить или нет этот простенок. И, посоветовавшись, заказчица сказала, оставляй)
0
30.05.2014
Ответить
Мама двоих (15 лет, 13 лет)
Руза
На самом деле его сносить можно, он не несет никакой нагрузки. Точнее, если предположить, что он несущий, то что он может держать? На нем стояло окно, которое не может держать стены. Убирая его мы облегчаем давление на стены снизу.Это просто размышления ;-).Архитектор нашего дома это подтвердил. Если это возможно, то можно попробовать рассмотреть и другую расстановку мебели в кухне. Например, у окна два кресла, столик... Уютное местечко ;-)
0
31.05.2014
Ответить
Мама двоих (16 лет, 13 лет)
Минск
я бы тогда и стены не ломала, ведь они там будут уже внутри.Я потом потом план сюда размещу, там эта стена интересно сделана.
0
31.05.2014
Ответить
Мама девочки (14 лет)
Москва
Под окном располагается радиатор, который при демонтаже простенка переносят на ближайшую стену или на балкон. Это требует дополнительного согласования.
Проблемы возникают из-за стыков труб. Чем больше поворотов, тем выше риск протечки. Еще пример со спрятанным радиатором и трубами:
Проблемы возникают из-за стыков труб. Чем больше поворотов, тем выше риск протечки. Еще пример со спрятанным радиатором и трубами:
0
02.06.2014
Ответить
Мама двоих (15 лет, 13 лет)
Руза
Наталья, вы правы! Я забыла, что есть дома, где отопление идет по трубам. У нас в доме просто отопление на входе в квартиру и по квартире разводится гибкими трубами и перенести радиатор на полметра вправо или влево, или даже на другую стену не представляет особых трудностей, только согласование.
0
03.06.2014
Ответить
Мама двоих (13 лет, 8 лет)
Минск
Скорее не понравилась, чем понравилась...1. Спальня и так малюпасенькая, так еще и серо-черная. Будешь спать и думать, что ты майский жук в спичечном коробке. Тёмные цвета еще сильнее уменьшили и без того маленькую каморку2. Серая цветовая гамма квартиры тоже не впечатлило — уныло, тускло, грустно...3. Барная стойка у окна — совсем не понравилась! Совсем неудачная идея!
4. Лицо+ТВ — тоже не удачно! Тут и декор и ТВ и всё в одном! Кто посмотрит на "лицо", когда есть ТВ. А от просмотро ТВ будет отвлекать это "всевидящее око". И еще вот эти три кружка — красный, синий и розовый... вообще не поняла, что и к чему? 
4. Лицо+ТВ — тоже не удачно! Тут и декор и ТВ и всё в одном! Кто посмотрит на "лицо", когда есть ТВ. А от просмотро ТВ будет отвлекать это "всевидящее око". И еще вот эти три кружка — красный, синий и розовый... вообще не поняла, что и к чему? 
0
29.05.2014
Ответить
Мама двоих (16 лет, 13 лет)
Минск
я в вами пожалуй соглашусь в 4 пункте, он меня тоже смущает, там по задумке пара — либо фигуры либо лица, и они должны быть не контрастно броскими. А шары — это нейкое подобие картины))Спсибо за такой понятный и развернутый ответ. У меня даже вопросов не осталсоь.
0
29.05.2014
Ответить
Мама двоих (13 лет, 8 лет)
Минск
Пожалуйста! Мне понравилась цветовое и стилевое решение кухни
.Вот картинка (не моя, из интернете). Мне кажется барная стойка здесь очень удачная!

0
29.05.2014
Ответить
Мама двоих (16 лет, 13 лет)
Минск
за диваном, даа, не вы одна мне про это пишите) там все равно останется скорее проем от присоединенного балкона, я лишь по этому вторую стойку не делала.. вообще, можно поговорить, подумать)
0
29.05.2014
Ответить
Мама двоих (16 лет, 14 лет)
Москва
Ну, мрачновато, уже писали. Барная стойка ваще не катит в таком расположении: неприятно сидеть лицом к свету и кушать, пялясь на кухню. Спальня оч маленькая да еще и темная — похожа на каморку.
0
29.05.2014
Ответить
Мама двоих (16 лет, 13 лет)
Минск
а если сбоку падает свет и окно сбоку, может уже не так плачевно?!)спасибо вам за мнение и отзыв.
0
29.05.2014
Ответить
Мама мальчика (15 лет)
Москва
Елена, а какая-то вентиляция в спальне предусмотрена? Я бы, конечно, поменяла расположение гостиной и спалтни. Спать все-таки лучше с воздухом, на мой взгляд.
0
31.05.2014
Ответить
Мама двоих (16 лет, 13 лет)
Минск
да , конечно, дверной проем напротив окна.Я хочу попробывать сделать второй вариант именно так. Хотя, если рассуждать, считаю, что день проводить лучше при дневном свете.
0
31.05.2014
Ответить
Мама троих (17 лет, 12 лет, 10 лет)
Москва
Себе бы сделала именно так. Только на диван еще подушек разноцветных))) цвет кухни отпад)))
0
29.05.2014
Ответить
Мама двоих (16 лет, 13 лет)
Минск
это мелочи, оставим для хозяйки) спасибо)
0
29.05.2014
Ответить
Мама троих (13 лет, 12 лет, 8 месяцев)
Новосибирск
в целом нравится, кроме одного, что в спальне нет окна
0
01.06.2014
Ответить
Мама девочки (10 лет)
Орел
Я правильно поняла, что между диваном и телевизором посередине столб? Это не понравилось бы ни моему мужу, ни папе, ни любому другому мужчине которого я знаю)))
0
30.05.2014
Ответить
Архангельск
Видно что вы старались и подошли с душой к делу. У вас пока опыта мало, но для начала очень даже достойная работа. Мне показалось что слишком много углов хочется как то уюта больше, идея с барной стойкой понравилась. А вот фотообои в спальне уже наверное надоели в каждой второй квартире город. Может еще не хватает прорисовки деталей
0
29.05.2014
Ответить
Мама двоих (16 лет, 13 лет)
Минск
да, стараюсь, мне очень нравится это дело) Опыт нарабатываю!)Да, углы увидела. А что фотообои, есть же нейкая точка отталкивания)Спасибо за поддержку)
0
29.05.2014
Ответить
Мама двоих (22 года, 30 лет)
Иркутск
понравилась спальня и то только потому,что я такие люблю,а вообще похоже на съемную квартиру без лица
0
29.05.2014
Ответить
