Помогите советом!

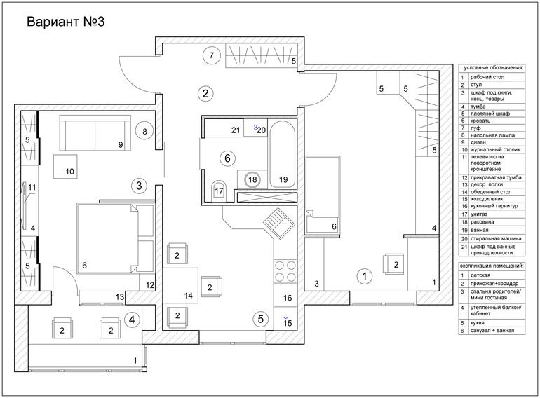
кухню переносите в комнату 18 м., а на месте бывшей кухни делаете спальню.В 18ти метровой кухне разграничиваете пространство под приготовление пищи и под посиделки.Раковина и плита ставится в стене санузла, для выведения канализации, воды, и вытяжки.
20.06.2014
Спасибо. На этом варианте мы, наверное, и остановимся.
21.06.2014
Увидев проект тоже хотела предложить этот вариант + я бы пожертвовала маленьким санузлом, чтобы увеличить кухню-гостиную... А можно и оставить)
24.06.2014
Говорят, что много проблем с переносом мокрой зоны. Самой мне очень нравится этот вариант. Не могу определиться.
24.06.2014
Вода есть в маленьком сан узле.... В чем проблема ее протянуть в гостиную...
24.06.2014
Квартира в ипотеке. Читала здесь на бб, что узаконить это необходимо. 
24.06.2014
есть два варианта точно ,как можно добиться Вашей целиvmr_design@yahoo.comvmrstudio comс радостью поможем Вам с этим!
19.06.2014
Анна, можно сделать кухню с небольшой гостиной. а комната будет полностью в Вашем распоряжении или ближе к окну поставить кровать и отгородить ее светопропускающей перегородкой (стеклоблок или полупрозрачный пластик, можно и перегородку сделать из ГКЛ. но не глухую) 8937eaf421a5135da1b3b406fadc0c3b.jpg e9c15c4fbaeee1dbefaad57904f25769.jpg это  гостиная в кухнеb2b691fd1605c49dceeeeaecf3203c6d.jpg
19.06.2014
Спасибо за ответ! Я рассматривала оба варианта., но в голове крутятся мысли  о расширении кухни. К примеру, снести часть стены между кухней и комнатой, сделав там полноценный уголок для отдыха с просмотром телевизора. А у окна организовать спальню с глухой перегородкой. Прошу совета, стоит ли так делать?   Возможно ли это? Может быть, у кого-нибудь есть реальные фото подобного?
19.06.2014
А у Вас между кухней и комнатой не несущая стена? По плану выходит что несущая и ее не получится снести. Можно использовать раздвижные двери между спальней и гостиной или, если отгородить глухой перегородкой, использовать дополнительный свет.
19.06.2014
Стена несущая, но между ними есть проем ( волнисты линии), так  задумано проектом. Вот можно ли воспользоваться этим проемом? Увы, точных размеров стены и данного проема я пока не знаю. Но судя по имеющейся схеме, для спальни места достаточно. 
19.06.2014
Да, можно. Это одна из наиболее напрашивающихся перепланировок.
19.06.2014
Хорошо бы было посмотреть фото подобных решений. Может быть, кто-то делал подобное? Переживаю, что в зоне гостиной будет недостаточно света.
19.06.2014
У меня в дневнике есть обзор нашей квартиры. Только мы сделали спальную в глубине, а гостинную зону у окна.Если вы оставите достаточно широкий проем в кухню и в спальную (которая будет у окна) сделаете раздвижные двери максимально комфортно широкие для вас (2-3 полотна) (днем они могут быть раскрыты, а вечером дневной свет не так актуален), то света будет достаточно. У нас спальная немного в тени, но для спальной это хорошо... Хорошо для нас :-).
19.06.2014
Спасибо. Приму к сведению.  
19.06.2014
Здравствуйте,в месте проёма между кухней и гостиной можно выстроить нишу в глубину кухни и разместить там кухонное оборудование (мойку и плиту),формально кухонное оборудование остаётся на территории кухни,но нужен будет насос.Получится кухня-гостиная,а на месте кухни спальня,назвать кабинетом.Мне так предлагали на форуме ивд,закон не нарушается,но требуется проект перепланировки и разрешение.
19.06.2014
Спасибо за совет. 
19.06.2014
Совмещаем туалет и ванну Как сделать из двушки трешку?