Разработаю Дизайн комнаты.
Интерьерное решение спальни

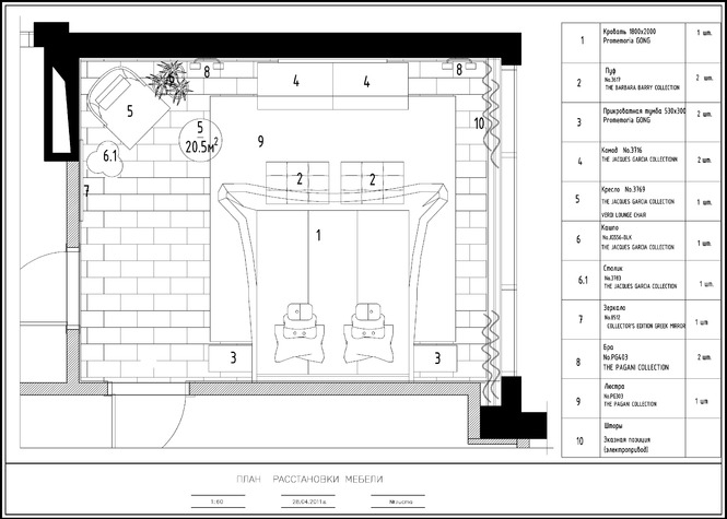
Стандартный набор проекта комнаты. Здесь есть все для ваших строителей и для дальнейшего выбора текстиля , мебели.
Цена вопроса : от 10 000 рублей за проект.
Проект , так же дополняется 3Д фотовизуализацией за отд.плату 200 р.кв метр
Звоните: 8 915 3935170, дизайнер Дарья
почта: evd.darya@gmail.com
Диана
а смысл? есть дизайнеры на бб , прекрасно работают удаленно , результаты отличные , за 250 рэ за м2 и с визами и с чертежами...
20.06.2014
Ответить
Елена
вообще конечно не дорого. Но я бы с моим уровнем жизни никогда бы не обратилась к дизайнеру.. поэтому, все сама))класные чертежики!!)
19.06.2014
Ответить
Елена
Не понятно каким выключателем что включается из освещения, почему так мало розеток, что за отметка 2.75 рядом с дверью
19.06.2014
Ответить