планирую
Посмотрите, мож кто что еще подскажет
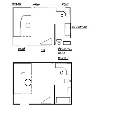
Вот, что предложила Юлия, я сначало тоже также примерно думала.
Вот что еще можно, токо я схематично нарисовала, не судите уж


Ксения
Полностью согласна с Татьяной,комп стол нужно менять местами с кроваткой для ребенка ,вл-первых ребенку нужен свет и воздух,во вторых получается у вас как бы отдельная зона рабочий кабинет!! и замерять все нужно в метрах,чтоб занть где что станет и какое расстояние между мебелью будет!!!знать быразмер...может так: угол где комп.стол оборудовать для ребенка (можно со ступенькой),в угол где кроватка и деткские игрухи -ваш диван,от входа сделать перегородку-стелаж и туда поставить телек, а в угол где диван уже ставить комп и прочее,а по левой от входа стене можно комод поставить (если нужно)!!получается,что зона отдыха закрыта от входа,а рабочая зона не в центре комнаты!!!
24.12.2008
Ответить
цв
я вот думала, думала, и все равно мне кажется что кровать возле окна ставить как то....не очень...ребенок у меня годовалый уже и в кроватке он только спит и то ночью. а играть и все такое , я думаю врят ли он будет именно в том углу, сами знаете какие дети.а окно я часто открываю, я просто сужу по ситуации как сейчас у нас(в другой квартире) я часто открываю окно проветривать, например, когда ребенок спит и стояла бы кровать у нас возле окна, он бы простужался бы. У нас стоит возле окна диван и дале летом бывает нас продует, а если не открывать , то духота ужасная, особенно летом. не знаю как будет на новой квартире.-----------------не все прочитала, сейчас подумаю как вы сказали
24.12.2008
Ответить
Ксения
то,что ребенок уже не совсем крошечный,конено немного меняет дело,а вы в принципе как долго планируете жить в 1-комнатой? и размеры стен не знаете?
24.12.2008
Ответить
цв
размеры стен узнаю, пока нета жить....да, думаю долго, это новая квартира и думаю, на следующюю мы не скоро заработаем
24.12.2008
Ответить
Ксения
значит нужно продумать по-максимуму отделение зоны детской от взрослой!!! ребенок то растет,а маме с папой жить хочется полноценно!!!! с размерами буде все намного проще продумать,жду размеров,а пока так подумаю!
24.12.2008
Ответить
Ксения
Отлично,будем думать, а мебель есть уже?размеры дивана б и кроватки детской комп.стола?
25.12.2008
Ответить
Ксения
а ну тогда в принципе нужно определится,что где стоять будет и потом уже подбирать!!! исходя из всех факторов,я конечно тоже склоняюсь к вариантам на картинках(.т.е. правый нижний угол детская часть),НО я считаю,что обязательно нужно делать гипсокартоновую перегородку(не сплошную стену,а с дырками.,нишами ,.окошками, подсветками и пр...),так что б она шла волной,или "ступеньками",но как бы закруглялась к правой стене..там за перегородкой сделать детский уголок(кроватку,стульчик,игрухи и прочее), а со стороны двери т.е. где взрослая территория эту же гипсокартоновую стенку использовать как обычную мебельную стенку..посавить,рамочки с фото,книги,.статуэточки, телек возможно тоже туда...конечно хорошо бы отделить детскую часть от взрослой цветовым решением и потолок можно тоже сделать "зональный" т.е опять же придумать на свое усмотрение гипсокартонвый короб,и естественно продумать проводку,так чтобы свет включался в разных зонах,что б можно было в детской выключить, а во взрослой включить и т.д.!!
25.12.2008
Ответить
цв
у нас где диван на кртинке потолог будут делать ввиде крышки рояля с подсветкой, будет включатся отдельно. с перегородкой здорово вы подсказали, а я думала какой стелаж ставить
25.12.2008
Ответить
Ксения
вот-вот, я сама удивилась,думаю,может я уже ляпнутьчто успела,что человек на официоз перешел!

25.12.2008
Ответить
цв
вот с цветами я не знаю как сочетать, у нас кухня будет в желтых тонах, оранжевого будет тоже чуть, ванная комната зелено-салатовая, а в комнате хочется что-то светлое, вот нравятся постельные оттенки бирюзы, а как в какой части и что....мы вроде обои хотели...
25.12.2008
Ответить
цв
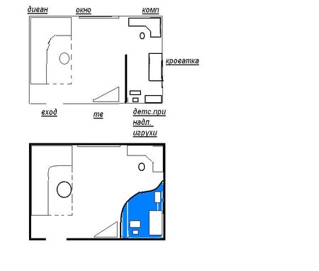
в принципе вариант мне нравится, но сейчас напишу из чего я исхожу:вот детская кроватка пока маленькая, потом надо будет ее менять на другую, я уже об этом заморачиваюсь, может и зря, может рано. потом у нас практически всегда включен телевизор, хочется чтоб кроватка была отделана как то.еще исхожу из того, что вот например, придут к нам в гости кто, может вечером, когда ребенок спать будет, чтоб тоже не мешать, вообщем я исходила из того, чтоб отделить детскую, а не другую зону.Мне нравился вариант, когда диван напротив окна, то посмотрев комнату, получается, что он будет занимать много места, осбенно если разложить
24.12.2008
Ответить
Бабомать
Если это еще актуально, то я, пожалуй, выскажусь.Мне кажется, что правильнее было бы кроватку передвинуть на место компьютерного стола, т.к. она, иначе, оказывается в углу, где никакого движения воздуха. А ребенку нужен свет и воздух. Да и спальное место сразу напротив входа меня бы напрягало.
23.12.2008
Ответить
цв
актуально, актуально.тут дело такое, квартира однокомнатная и я вот уже мучаюсь как и что поставить, дело в том, что я и стол с кроваткой сто раз меняла уж местами(в уме). с одной стороны, хорошо, когда стол рядом с окном, чтоб освещение естественное, а с другой кроватка. а на счет дивана, я изначально хотела его поставить напротив окна, но тогда он займет пол комнаты, а если разложить так вообще.
23.12.2008
Ответить
Бабомать
А если точнее? Т.е. длина, ширина, расстояние от левого нижнего угла (как на плане) до двери, ширина окна.
23.12.2008
Ответить
Бабомать
)))))Смело. надо до сантиметра вымерять. Иначе что-нибудь не пройдет, или проходы будут мизерные.
23.12.2008
Ответить
цв
да мы ж ничего еще не покупали, я просто в уме заранее продумываю, там пока стены делают и проход там широкий, его наполовину заделывают кстати потолог решили не делать так как я рисовала.
23.12.2008
Ответить
цв
все правильно, я и хочу чтоб было какое то отдельное место, я хочу еще както изрисовать на стенах...диван только я хотела ставить так, чтоб длинная часть была по другой стенке, а короткая как раз до окна. Перегородку не буду ставить, потому как не функционально, только ели какой то стелаж.а что вы посоветуете? и в какой вы програмке так сделали?
23.12.2008
Ответить
Бабомать
Ногами к двери спать не рекомендуют.Сейчас вот сижу и думаю над твоей комнатой)))) А программы такие нам прислала МФ "Столплит". У них, кстати, с сайта можно скачать.
23.12.2008
Ответить
цв
ой, а если вам не трудно подумайте, а то я похоже, чем больше думаю, тем все запущенней(((просто детского еще по мимо детской кроватки, еще будут всякие игрушки, наверное комод стоять и детский столик со стульчиком........да и у меня уже в уме что потом надо больше кровать покупать.....единственное шкаф для одежды, у нас можно в корридор поставить , там большой поместится, чтоб в комнате еще и шкафы не ставить
23.12.2008
Ответить
Бабомать
Вот грубый набросок. Мне кажется, что у крохи какой-то закуток выходит. Еще и без окна
23.12.2008
Ответить


