нужна помощь в оформлении дизайна кухни,недорого
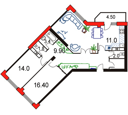
Подскажите как оформить кухню-гостиную в новой квартире. планировка такая
Я уже писала пост на эту тему http://www.babyblog.ru/community/post/housedesign/3135997, пока в голове одна сплошная каша.Нужна помощь в расстановке мебели и подборе цвета,бюджет ограничен,рассмотрю советы начинающих дизайнеров за символическую плату,территориально-Подольск.
bkola
Я бы объединил кухню , зал, холл только чтобы небыло препядствий в виде шкафа и стола. перепланировка квартир в
москве
30.08.2014
Ответить
Marinella
Спасибо! Если дверной кухонный проем заделывать не будем то будет один из ваших вариантов.холодильник точно у входа стоять будет, пока больше некуда его поставить
21.08.2014
Ответить
Marinella
Сначала хотела но потом передумала, кухня не проссматривается из за холодильника, получается как бы" мертвая зона" .уже думала его к окну переставить, но там батарея и морозилка открываться не будет (( в общем в печали я..
21.08.2014
Ответить
Aleksandra www.aleks-design.ru
Добрый день!Я почему Вы решили начать с кухни-гостиной? Первое, что нужно сделать — это планировочное решение всей квартиры, а уже потом думать над дизайном, цветовыми схемами, материалами и т.д.Где хранить вещи? Огромный неработающий коридор — зачем? Нужна звукоизоляция от стояков в меньшей комнате. При наличии отдельного туалета второй СУ надо совмещать. Сейчас на плане все линии изломаны, как линии стен, так и линии движения. С этим надо что-то делать!
20.08.2014
Ответить
Aleksandra www.aleks-design.ru
Возможно, как вариант рассмотреть такое решение. Очень схематично изобразила, но смысл ясен.
20.08.2014
Ответить
Marinella
Можно я добавлю вас в друзья, чтобы контакт не потерять, подскажите, сколько будет стоить дизайн -проект квартиры?вы все расписали так подробно,на самом деле у нас коридор огромный и в гардеробную все вещи не уместятся(((
26.08.2014
Ответить
Aleksandra www.aleks-design.ru
Ответила в личном сообщении.Да,площадь квартиры очень хорошая, но сейчас совершенно нерационально распределена.
26.08.2014
Ответить
Marinella
Здравствуйте,Александра! С кухни-гостиной решили начать,потому что не знаем как мебель расставить ,чтобы было гармонично.для хранения вещей есть гардеробная-справа от входной двери. подскажите, зачем санузел совмещать?
21.08.2014
Ответить
Aleksandra www.aleks-design.ru
У Вас площадь 96 метров. Прямо скажем, квартира не маленькая. А размеры коридоров при этом просто ужасающие. У Вас 23 метра составляют коридоры! Это больше любой из Ваших жилых комнат. Для чего такая непозволительная роскошь? И при площади 96 метров у Вас совершенно не продуманы системы хранения. Крошечная гардеробная при входе — это просто смешно. Она на столько маленькая, что в неё ничего не влезет. И снова весь коридор будет заставлен шкафами. Зачем это делать, когда можно заранее изменить планировку и сделать скрытые функциональные гардеробные комнаты. В квартире всё должно выглядеть пропорционально общей площади. Для квартиры 96 кв.м СУ должен быть не меньше 5-6 кв.м., чтобы пространство ощущалось не зажатым. Обратите внимание на мой вариант планировочного решения — общий объём кухни-гостиной остался точно такой же, какой и был. Кроме того, визуально пространство выглядит намного гармоничнее из-за отсутствия лишней перегородки, которая раньше закрывала кухню. То есть площадь смотрится ещё более свободно. И при этом 23 кв.м. бывших коридоров работают! Каждый кв.м. задействован. К этому и нужно стремиться.
22.08.2014
Ответить
Абрикосик
Интересная планировка! Подкину пару вариантов, может пригодится:
или так (второй более интересен):
или так (второй более интересен):
20.08.2014
Ответить
Marinella
понравились ваши варианты планировки.Просто муж категорически против кардинальных перемен-сноса стен.. и тд.мне ии самой казалось, что дверь из кухни ни к чему, только пространство съедает.теперь думаем, какой из вариантов выбрать.
21.08.2014
Ответить
Олеся (Лесёнок)
Наверно уже советовали про перепланировку? Скину на всякий случай. Были бы размеры, я бы визуализировала. На самом деле, там где стоит стол, там он не будет так громозко выглядеть) И мешать проходу со всех сторон тоже не будет.
20.08.2014
Ответить
Marinella
размеры есть, ходили мерили))если честно, пока смутно представляю как выглядит ваш вариант
21.08.2014
Ответить
а так не хотите?
не знаю, нужен ли вам телек. Для себя я бы поставила там книжный шкаф.
вот дверные проемы вживую